查看完整案例

收藏

下载
上海,风情万种、大气包容,十里洋场、极尽繁华。
金融街美兰金悦府项目落址于上海宝山,EH DESIGN GROUP 易和设计集团旗下棣品软装陈设团队,于沪上繁华处,造一方深情缱绻的艺术栖居地。
艺术使建筑与情感相连,设计师将创造性冲动具象为颜色、体块、建筑,赋予静止的空间以灵动的线条,给予固态的色彩以舞动的美感,整个售楼处浪漫氛围荡漾,艺术气息浓厚,处处彰显精致生活的美学态度。参观者不知不觉走进设计者营造的艺术氛围中,随着散落的红色自然开启奇幻之旅。
步入接待区,充满矛盾的物体几何理性美由舞动的线条抽象而来,展现了蓬勃的生命力。
蒲公英状的主装饰灯唯美浪漫,寓意倾听自然之声,接待台正上方的金属,给思绪飘忽的参观者以支撑点。
行至洽谈区,米白色与正红色交错排列的沙发椅形成奇特的视觉韵律感,整面落地窗引入最佳自然光线,整个空间精妙、优美、轻快,彰显着热爱生活的审美力。
酒红色花朵的点缀,让户外艺术品与室内家具之间形成巧妙连接,在观者眼前呈现了一个富于艺术情趣的新景观。
水吧位于洽谈区和深洽区中间位置,兼具美感和功能性。大理石吧台,金属酒水架,精致而实用,红色系花艺,红色高脚椅背呼应空间主情绪,形成精致、工整、和谐、通透的理性美。
深洽区为应和空间本身的线条感,两组沙发在色彩和线条上都形成对称美,精心又顺应建筑本身的设计让软装与硬装达到完美的奇异和谐。
在柔和的奶白与淡灰的基色上,主体红色在沙发、花艺、饰品之间轻快跳跃;跳出窠臼的对称透明隔断设计,让空间倏然灵动自由呼吸。
儿童区打破了以上所有,线条稚气圆润,配色五彩缤纷,成为丰富而独特的存在。正是这种“打破”,为孩子们保留了那份应有的童真,视觉上的“异类”反而让整个空间的情绪更为和谐。
旋转楼梯装置让色彩随体块旋转而上,如飞旋的红绸舞袖凝固为艺术雕塑。置身一楼仰观向上之力,强烈的视觉冲击赋予柔和的线条以震撼人心的力量美。
楼梯对面设置了由金属亮片层叠而成的互动多棱镜,与俯瞰视角的线条艺术相映成趣。抬眼是无限可能的灿烂未来,俯视是如鲜花般绽放的美好生活。
跟随旋转楼梯来到二楼阅读室,红色家居依然亮眼,自然清新的花艺让生活气息扑面而来,仿佛走入一个沉浸式生活体验馆。
艺术气质浓厚的正红色注入生活感,营造更舒适轻松的空间场景,娓娓道来地展现生活潮流与未来的想象力。
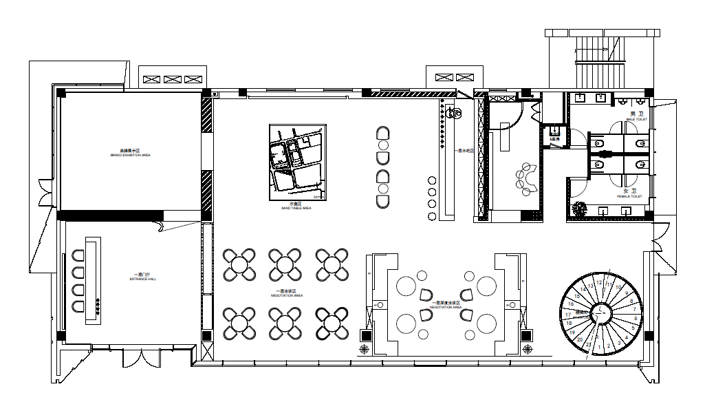
<售楼处一层平面图>
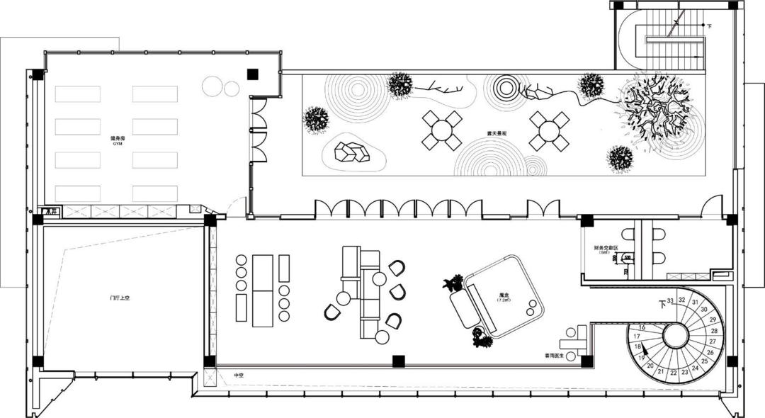
<售楼处二层平面图>
爱马仕橙 现代雅奢
A户型-102㎡
质感暖橙,活力优雅,从玄关流向每一个房间,为简约注入温度,让家的温馨感变得完整。
客厅底色柔和干净,橙色沙发椅与氛围品错落呼应,皮革温暖、木质沉稳、玻璃清透,同样的橙色,在不同材质上表现出风姿各异的质地,丰富了空间视觉感受。
客厅茶几模拟生活场景,突出男主人喜好品酒的个人风格;极具传统工艺的手工沙发,展示着主人对生活品质的独特追求。
金属餐具,银色餐碟,琥珀色,透明酒杯,餐桌上也是艺术品一般的配色,生活也如这餐桌的布置一般精致,值得细细品味好好享受。
餐厅氛围灯通过操纵光、色与透明度的关系,以最简洁的形状和颜色营造出奇妙的体验。
主卧延续客厅基调,在优雅的底色中适当搭配橙色物品,从装饰画到抱枕、织物、花艺,疏朗有致的色彩点缀,让整个空间更显舒适大气。
次卧略去过多装饰,选取素净柔和的灰做底色,灰度增强的橙色恰到好处地点缀在空间各处,给人温温柔柔的舒适感。
女孩房以绘画与植物为主题,清新微甜的蜜桃色与细腻温厚的奶白色让女孩被浓浓的爱意包裹,白夜童话系列装饰品与水晶灯,如女孩的心思一般敏感脆弱,满目皆是少女的纯真澄澈。
鲜花盛放,植物葳蕤,一张小几一把舒适阳台椅,在明朗的阳光中静坐,阅读或品咖啡,惬意享受下午茶,这就是梦想中的阳台了吧。
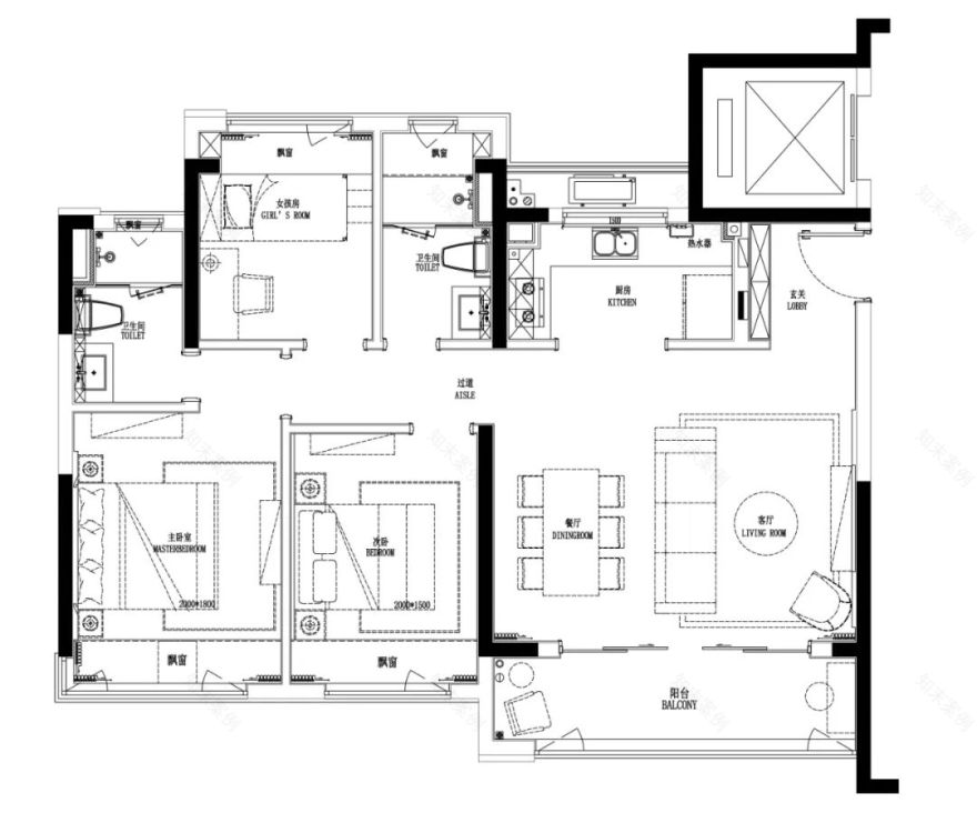
<样板间A户型平面图>
克莱因蓝 都市潮流
B户型-89㎡
纯净之蓝,自然之色。受波兰先锋派艺术家爱德华·克拉辛斯基的启发,设计师将蓝色注入家的每一个角落,在空间往来穿梭,描绘出“快时代”里的精致“慢生活”。
客厅在灰白的基调上对主题蓝色信息展开延伸和追溯,并通过灯饰、织物图案、家具的几何元素来提升艺术感,浪漫气息与艺术氛围缓缓流淌。
蓝色作为点缀色,提亮了整个空间,玻璃器具与装饰品晶莹剔透,在不同光线下折射瞬息万变的光感,消解了蓝色的沉郁,让整个空间更加精致通透。
餐厅延伸客厅的灰白基调,皮革餐饮与白大理石餐桌干净养眼,清清爽爽的玻璃餐具令人心旷神怡。艺术化的餐桌腿部,如同行为乖张的主人一样,总能适时张扬不流俗的个性。
相对于其他空间,卧室对舒适性的要求更高,主卧用大面积高级机会与柔和的奶白色营造松弛的氛围,以玛莎·杰克逊画廊的凯斯勒雕塑为灵感,做飘窗和边几点缀,保持了空间的整体艺术性。
次卧更为简洁,柜体局部镜面设计与金属灯饰和玻璃花器互相映衬,让简约的空间精致起来,几何装饰画与蓝色体块饰品,增加了空间现代艺术感。
在与家人相处时,如果需要一隅私密独处空间,那么书房最合适不过。具有纪念意义的游戏手柄,超长带鱼屏游戏电脑,在灰白色背景下更凸显科技感。疲惫时来此给予精神片刻喘息,以便休整身心重拾爱生活的自己。
<样板间B户型平面图>
项目信息
项目名称:
金融街美兰金悦府
地理位置:上海
完成时间:2022.01
项目面积:售楼处630㎡,A户型102㎡,B
户型89
㎡
软装设计:EH DESIGN GROUP-棣品软装陈设团队
项目摄影:三像摄
客服
消息
收藏
下载
最近






























































