查看完整案例


收藏

下载
项目地址| 金地世家风华
Project Address| Gemdale family style
项目风格 | 现代
Project Style |nowadaysy
项目类型|平层
Project Type|Leveling
项目面积 | 175m²
Project Area | 175m²
主创设计 | 张骞
Chief Designer|Zhang Qian
晕染自然悠闲的生活质感
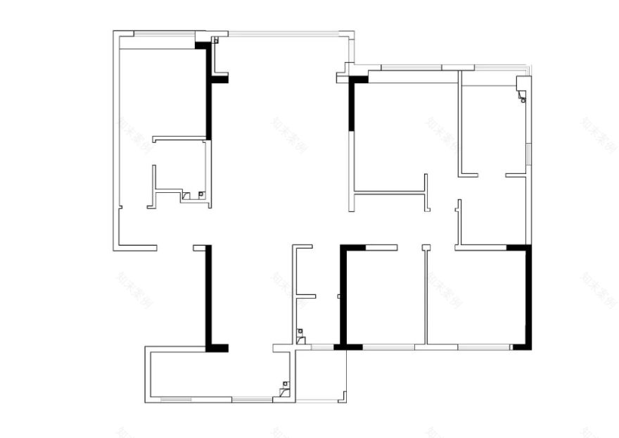
原始平面图
平面布置图
门厅 ·|岁月绵长|
foyer
入户原木与白色的经典搭配,淡雅色彩、线条舒缓,营造静谧质朴的格调,还原生活温柔细腻的肌理,让空间呈现惬意安然的氛围。
客餐厅·
|从容自若|
Guest restaurant
用极简的笔调抒写空间的基调,客餐厅一体布局,略微挑高的吊顶,搭配落地窗的设计,给予阳光肆意洒落的自在与惬意,在时间的年轮里蔓延幸福的气息。
空灵优雅的纯净空间,在阳光的照拂下披上一层灿金色的柔情,赋予生活宁谧温馨的意蕴。餐厅|暖调时光|restaurant
餐厅抛却繁冗装饰和斑斓色彩,于简洁的底调之上勾勒家最本真的模样,光的律动和流动的肌理交织出柔和慵懒的烟火感。
主卧·静谧韶华|Recreation area
温润木调与温柔白色相糅合,调协成素雅安适的起居空间,柔和的日光透过窗洒进屋内,将空间的肌理描摹得静谧温柔,抚平杂乱喧嚣的心境,觅得心灵的宁静与自在。
卫生间不同材质肌理相互碰撞,带出强烈的空间层次感,悄然间划分空间,彼此相连又互相独立。
女儿房·|温柔时光|Daughter’s room
女儿房用温柔可爱的色彩和童趣的元素,勾勒出一方自在天地,一张粉色软包床+定制通顶衣柜,是完成的“公主梦”,在有限的空间里绽放无垠的幻想。
张骞
从业 11 年
国家注册设计师
西部网特约设计师
「 所获荣誉 」
2013 年“筑巢奖”复式类优秀创意奖
2014 年“松下杯”优秀设计奖
2015 年“三星杯”设计银奖
2017 年“逸舍网”评选为逸人物
2018 年“京瓷杯”最优秀设计奖
2019 年“锋尚杯”最佳空间布局奖
2020 年 亚太设计师大赛优秀奖
「 设计理念」
以人为本,一切围绕生活及生产活动,注重空间运用,将现代与传统元素相融合,创造恒久而有质感的生活环境。
「 代表作品」
住宅代表作品:融侨城、新兴玉园、永和坊、紫汀院、梧桐苑、曲江六号、河与墅、曲池东岸、天字一号、金地风华、唐顿庄园、香榭御城、中海城与墅、临潼德御天下、河南颐和园诸子阶、曲江八号地、和众城阅、鸿基紫韵、龙湖香醍、龙湖源著、赛高悦府、国金华府等
商业代表作品:陕建物流办公室、咸阳国家电网展厅等
|往期精选
PAST SELECTIONS
///
▼BANNER ·
李佳慧 / 人间烟火 于心之所居感时光律动
▼BANNER·杨文标/空灵素雅 至简至美直撞心灵
▼BANNER · 杨磊 / 雅澹温柔 赴一场诗意绮梦
▼BANNER ·赵振庭 / 沐光之境 奏响自由灵动的乐章
▼BANNER ·王海东 / 时光清浅 生活慢慢亦满满
客服
消息
收藏
下载
最近





















