查看完整案例


收藏

下载
旗盛 新作
BANNER
NewCase
- Address:科为城墅
- Project Type:叠墅
- Project Style:现代轻奢
- Area:206㎡
- Designer:赵振庭
- 空间呈现 Spatial Presentation
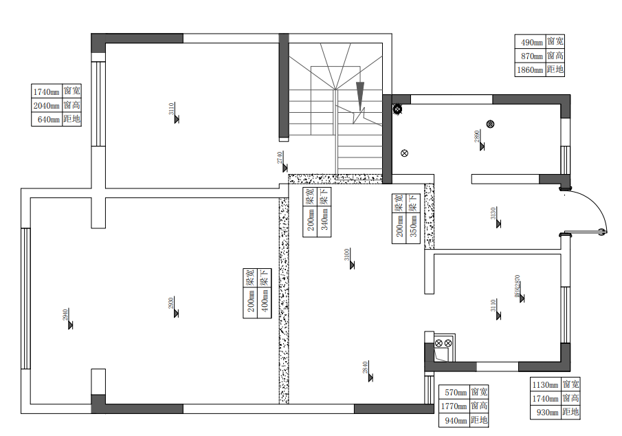
一层·平面布局
First floor layout plan
客厅是体现房屋风格核心的部分。此客厅既有豪华动感多变的视觉效果,又有唯美律动的细节处理元素。白色带灰色条纹的背景墙、金属色的落地灯、浅色点缀的沙发、现代化的科学布局,让高级感、层次感和豪华感扑面而来。
一体化的客厅厨房能够最大限度利用空间。优美科学的线条营造出井然有序之感。整个风格和色调以白色和原木色为主。墙体地面的白色瓷砖夹杂着灰色条纹,使得整个空间看起来更加活泼灵动。
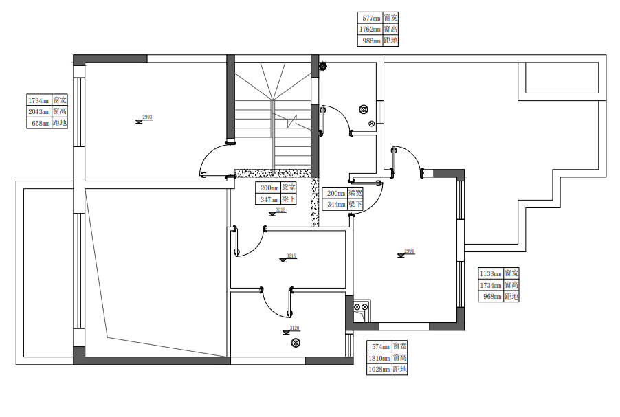
二层·平面布局 Second floor · layout plan
卧室是人生度过三分之一时光的场所,舍气养神,均在于此。空间的线条简洁对称突显沉稳,功能的空间划分和位置布局体现严谨的态度。整体没做复杂造型,色调清爽高级,舒适温暖。用吊灯进行点缀,更显奢华与品位。灰色的地毯、白色的背景墙、原木色的家居,显得平实而精致、低调而奢华。
现代轻奢之美,简约而不简单。动漫主题的背景墙以及玩偶手办,使整个空间充满着童真的气息。床柜相连使得空间利用最大化。房间的主色调以白色为主,搭配原木色的地板,而绿色的盆栽则点缀着整个空间,维持着整个空间的平衡感以及温度感。
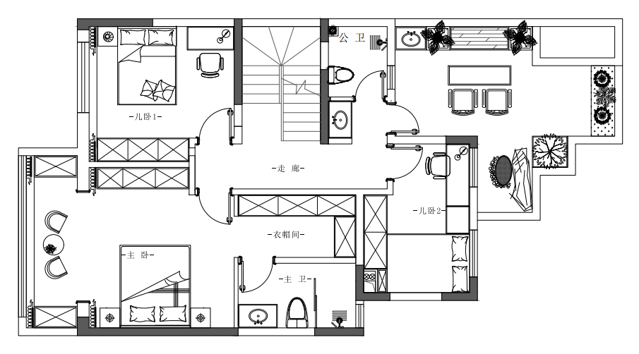
三层·平面布局 Third floor · layout plan
选择生活,而不是被生活选择。暗红的墙砖、披着红衣的人偶,与地砖为一色的月亮模型,还有使阳台充满生机的绿植,将整个休闲阳台打造的极具美感,将现代轻奢风的本质表现的淋漓尽致。
品酒区用暖色的灯光调节气氛,暖色灯光在这里好像变成了生活的哲学。酒柜上用各种美酒和饰品进行装饰,使空间充实感、层次感蕴意而生。坐在高脚椅上,倒上一杯佳酿,酒香在嘴中和空间中共同荡漾。
茶室和品酒区的空间相互畅通,当享受完美酒带来的感官刺激,可以再尝试清茶带来的精神享受。古色古香的茶具搭配着现代轻奢的茶桌,两种风格却在茶室这一方天地中出奇的合适,奢华却不过度,每一处都体现着低调的贵气。主案设计师。
赵振庭
从业 17 年
毕业于西安建筑科技大学
-所获荣誉-
中国建筑装饰协会设计委员会会员
西安青年设计俱乐部会员
亚大酒店设计师联盟会员
参 2015 年度意大利米兰留学
2016 年第三届“京瓷杯”新中式设计大赛最佳功能布局奖
2017 年第四届“锋尚杯”新中式设计大赛全案实景奖
2018 年 2018 亚太设计师大赛 豪宅空间(方案类)钻石奖
2018 年 2018 亚太设计师大赛 卓越人物
2018 年 2018 年 年度 40under40 中国设计杰出青年
2019 年 2019 年度亚太设计师大赛 方案类《别墅空间》金奖
2019 年 2019 年 亚太设计师典范人物
2019 年上海国际设计周金梁中国设计奖省际奖
2019 年上海国际设计周金梁中国设计奖城际奖
-设计理念-
赋空间予灵魂,温暖每个家,作为一位专业室内设计师,个人认为室内设计最根本的原理或原则是:在确保满足使用功能的前提下达到审美功能的最大化,对空间潜心专研、注重细节设计
-代表作品-
紫楹台、曲江公馆·和园、天字一号、曲江大城、湖城大境、鸿基紫韵等
客服
消息
收藏
下载
最近





















