查看完整案例


收藏

下载
家宅是生活的镜子,
基于居住者核心的自我开展运行,
照见根植于心的文化认同。
雍容、深邃、宏大、豁达,
一幅水墨山岳图,
是空间的灵魂。
模拟自然,
线条与物品质感相互匹配,
从有形到无形,
从有界到无疆,
给予人丰沛的想象空间。
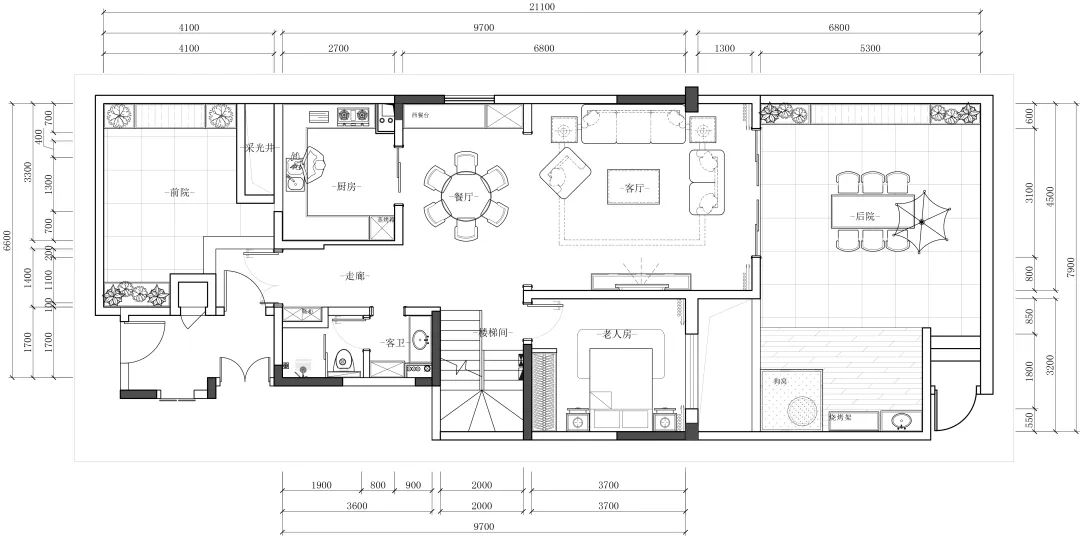
PLANE LAYOUT
平面布局图
▽ -1L
▽ 1L
▽ 2L
落地窗、纱幔微动,
已可想见夏日里乍起的微风,
想见晨曦与黄昏时分温柔好看的自然光影。
自然光线、室内光线,
在与物品的交接、嬉闹中,
缝会出无限风雅,
无限欣然、无限雀跃生机。
空间因艺术而富有诗意,
因想象而富有张力,
生活的创意和乐趣也因着无限张力
而得以无所穷尽。
对色块、材质的有序排布应用,
让各个空间形散而神聚。
极致纯粹的细节、
无处不在的设计语言
串联出空间的连贯性,
呈现出更具层次感的美学形态。
赵振庭
/
ZHENTING ZHAO
从业15年
首席设计师
西安旗盛装饰工程设计有限公司
个人简介:
作品遍布西安湖城大境、永和坊、曲江公馆等小区及各商业区,曾获得行内各类奖项,曾经历国外及欧洲游学
设计理念:
赋空间予灵魂,温暖每个家。作为一位专业室内设计师,个人认为,室内设计最根本的原理或原则是:在确保满足使用功能的前提下达到审美功能的最大化,对空间潜心钻研、注重细节设计。
擅长风格:
法式、新中式、美式
擅长领域:
家装:复式别墅、大平层等
工装:会所及办公场所等
部分奖项:
2016年 第三届“京瓷杯”新中式设计大赛 最佳功能布局奖
2017年 第四届“锋尚杯”新中式设计大赛 全案实景奖
2018年 2018亚太设计师大赛 豪宅空间(方案类)钻石奖
2018年 2018亚太设计师大赛 卓越人物
2018年 2018年年度40under40中国设计杰出青年
代表作品:
鸿基紫韵、御湖一号、曲江公馆、湖城大境、金地芙蓉世家、兰亭坊等
客服
消息
收藏
下载
最近



















