查看完整案例


收藏

下载
现代清雅
让生活回落到本质、优雅且亲近。
设计公司:尚层装饰(广州分公司)
Design company:is adornment layer (guangzhou branch)
项目地址:广州黄埔科学城开源大道沁园
Project Address:Qinyuan,Open Source Avenue,Huangpu Science City, Guangzhou
楼盘名称:沁园(270㎡)
Real estate Name: Poly Luhu (270㎡)
户型格局:叠院别墅
House pattern: stacked courtyard villa
设计团队:倪梦琪
Design team: Ni MengQi
项目主案设计师
倪梦琪
华夏杯设计大赛优秀作品奖
广东美居杯第二届作品银奖
金腾室内设计大赛优秀奖
艾特奖优秀奖
广东省室内设计大赛优秀设
黄埔飞晟·沁园
岭南中式纯墅
———
High quality, low density,
Latin villas along the river of Liuxi
—飞晟沁园—?位于广州黄埔科学城开源大道沁园(广州创新公园旁)
飞晟沁园位处广州科学城核心地段,周边拥有 8 条公交车线路、地铁 6 号线香雪站,以及四横五纵密集交通路网,交通便捷。距离项目 3 公里拥有 400 万方繁华商业配套,8 大公园环绕,出则繁华,入则静谧。
项目总占地面积 8 万平方米,总建筑面积 25 万平方米。社区配套有 6000㎡文化中心的沁弦馆,匠心刻画 4 重园林,9 大精工品质、重金选材。把宅院大门、花格窗、青石雕刻等传统的岭南元素与现代建筑、自然环境完美融合,打造中国特色的岭南院墅。
• 距广深高速出入口 2 公里,距广园路 5 公里,自驾 25 分钟到天河,30 分钟至珠江新城达天河商圈;
• 紧邻 1350 亩植树公园,附近 8 大公园环绕,出则繁华,入则静谧。
• 广州东部最大三甲医院中大岭南医院项目仅 4 公里
宅中有园,园中有屋,屋中有院,院中有树,树上见天,天中有月。——林语堂
项目团队深入调研诠释尚层专业服务———Conduct professional survey and research on housing/尚层将各个专业环节串联,有一套标准化、流程化、模块化分工体系,可确保别墅项目有序推进。尚层多年的发展,已积累出一套严格的全案设计服务体系,各专业岗位紧密配合,高质量、高简化度的流程,让项目有条不紊进行。
▲主案团队对项目楼盘进行调研
———
现代元素融入华丽淡雅
置身品悟人生,感悟生活
———
Design inspiration
设计思考
“宁静雅致
一屋一园,有花有景,与家人一起置身舒境,闲情养心。
业主是一对 60 来岁精致随和的夫妻,早前一直在上海生活,现在打算回到广东定居养老。真正的生活是不受束缚的心境,业主夫妇虽到花甲之年,但对生活有着自己精致的追求目标。在聆听业主的需求与习惯后,设计师以实用性和宁静雅致为主题,米白色和棕色为主色调,营造出一种华丽优雅的休闲空间档次。
—
#宁静雅致
生活是不受束缚的心境#
NEWS
﹀
﹀
﹀
WALK ON
“从你本心的生活诉求出发,带来精神富足。”——致别墅生活
floor plan
现代轻奢
‘’空间布置
——
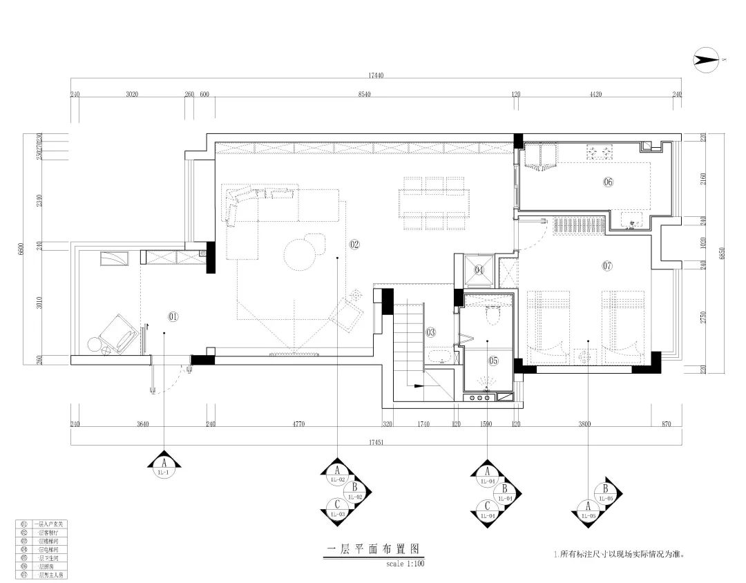
▎一层空间
追求精致的生活,从来与年龄无关~
▲入户玄关
玄关,完美嵌入的鞋帽收纳柜体,底部悬空为入户提供方便的换鞋收纳,配置自动灯光+中空收纳格,米白色的定制门板与整体色调完美融合交汇。
▲一层客餐厅
以米白色为基调,顶上简化的石膏线造型,搭配无主灯设计走向,整体干净利落,为空间勾画出简洁大气的韵味,打造现代轻奢感。
大理石造型的电视背景墙,优雅的雾化壁炉,与整体客厅的搭配并没有喧宾夺主,而是高贵气质的一种衬托。
浅灰色条纹地毯用的恰到好处,略带白色的条纹与沙发交相呼应,真皮沙发显得简洁有质感又不失温馨的气质。沙发背景的收纳墙与棕色玻璃门搭配,在内饰灯光的加持下让空间看起来不再单调,呈现出一种自然优雅的奢华与高级感。—
▲餐厅
餐厅设置在客厅旁边,同时靠近厨房,动线合理。靠墙设置的橱柜和餐边柜,金属线型的吊灯结合大理石餐桌,简单直接的设计既保证了餐厅的美观性,又很好得表现现代风格的独特和个性。
▎二层空间
归家,是顿感放松的方式,是暖意的“动词”
▲二楼
主卧
灰白色的皮质床靠在咖色的软包床头墙上,两边咖色床头柜加上金属床头灯具线条,还有木饰面的装饰,整个空间充满了浪漫优雅的气息。主卧采用柔和的低饱和基调,吊灯、床头阅读灯和柔和灯带,完善的灯光系统是老人卧房的必备设计。
还有一个舒适的飘窗区域,可以欣赏到窗外别致的风景,简约雅致,能够拥抱生活中的那一份静谧和安然。—
▲ 二楼主卧卫生间
卫生间,墙地面通铺同款灰白色石纹瓷砖,悬空浴室柜+透亮镜柜,精心设计的细节只为最佳的使用感受。—
▲二楼女儿房
在女儿房中以淡雅格调为主,侧边衣柜底部悬空提供方便的收纳设计,留出了较宽的活动空间,也保持了流畅的动线。从而营造出简洁大气又不失高雅情调的睡眠氛围。
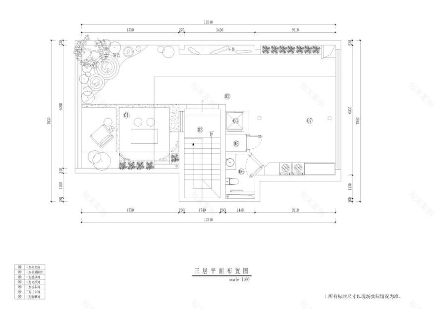
▎3 层空间
一园一水,一花一石,闲情舒境。
▲三楼花园
对顶层空间进行园林设计,休闲区正对屋顶花园最美景观,在无敌的自然光和良好的通风下,闲看花开花落,伴着淡淡花香来品悟人生。
一一
350㎡现代轻奢 | 掀起一阵轻松惬意的罗马假日风情
400㎡现代时尚轻奢 | 呈现暖系舒适而富有质感的生活场景
300㎡现代风格 | 以浅色淡雅格调 呈现自然的高级感
450㎡假日半岛现代简约 | 暖白色系描绘最悠然的品质生活
让艺术融入生活
在这里勾勒出生活的质感
400-046-0898
公司地址:广州市海珠区广报大厦北塔 22 楼(阅江西路 370 号)
如有家装、公装、软装需求,想预约设计师、参观工地、获取报价,可点击下方“阅读原文”欣赏更多案例,进行报名哦!
点击这里阅读原文
客服
消息
收藏
下载
最近












































