查看完整案例


收藏

下载
在杭锦旗“未来草原”民宿创意设计项目中, Penda China 受邀担任设计其中的公共建筑。设计构思受场地环境启发,以“陨石”为概念原型,希望创造一个携带文明的自然原石,矗立于广袤的草原与天空之间。该建筑不仅是文化功能的载体,同时希望成为文化的符号将鄂尔多斯草原的品牌传播更广更远。
建筑采用框架结构体系、混凝土和钢框架结构的方式,以达到经济、美观的可实现目标。该建筑强调现代建筑回归自然,用艺术的形式语言将建筑融于自然,创建充满活力的空间,以寻求未来草原生活方式,重新诠释草原建筑形态。运用现代技术与草原传统生活模式融合,引领新型度假生活模式。
建筑主要材料为混凝土,并在混凝土中掺入沙砾形成粗粝的表面效果,呼应了场地沙土的主色调,整栋建筑与场地完美融合,营造出温馨的舒适感。
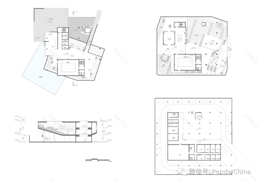
建筑内部的形态利用台地形式营造出了具有向心性的文化空间,满足未来内部活动、展览和沙龙等文化交流功能的需要。
建筑内部包含了展览、阅读、休闲等功能,各功能之间通过连贯的参观动线串联起来,形成亦动亦静、可观可游的空间体验。
评委点评
|青锋
该方案主题鲜明,基于陨石的概念组织建筑形态,充分呼应了人们对草原天然和神秘的联想,将建筑隐藏在自然主题之中,在草原环境中具有很好的协调性。作为整个片区的标志性建筑,该文化中心能够很好的起到凸显整个片区建筑特色的作用,建筑形态富有冲击力,利用强硬的折角、局部悬挑以及部分外露的结构,刻画出岩石所具有的坚实与沉重。
在设计语汇上,该方案已经较为成熟,面对的主要挑战可能是在功能策划上,这一片区是否需要图书馆或者咖啡馆这样的设施,还是更需要其他的公共服务设施。在不改动设计主题的情况下,这些问题可以结合甲方要求进一步细化,使得方案能够为整个片区做出更大贡献。
孙大勇,万书言
Penda China建筑事务所创始合伙人、主创建筑师,RIBA英国皇家建筑师协会会员,中国建筑文化研究会民宿产业分会常务理事。
曾荣获美国Architizer+Awards、英国Dezeen Awards、Global Future Design Awards、World Design Awards、意大利The plan、意大利 A’、德国Iconic、Wallpaper、AD100等国内外建筑奖,曾受邀作为Evolo、Dezeen Award等国际竞赛评委。被《时尚家居》、《罗博报告》评为年度人物和年度建筑师等荣誉。
星空图书馆
项目概况:
名称:杭锦旗“未来草原”民宿创意设计
地点:鄂尔多斯市
类别:公共文化建筑综合体设计
时间:2022
项目主创:
孙大勇、万书言
设计团队:
Penda China
*本次活动最终解释权归杭锦旗人民政府所有
Penda China 受邀签约2022鄂尔多斯杭锦旗“未来草原” 民宿创意设计工作营
快讯 | Penda China 将亮相2022可持续设计中国峰会
美宿中国专访 | 孙大勇和万书言:LESS IS LOVE,从东方智慧中生长出的创新建筑实践
论坛 | Penda China 受邀参加SDS可持续设计峰会2022
客服
消息
收藏
下载
最近



























