查看完整案例


收藏

下载
不用华丽的文字来表达项目,平白实在才是真理!!!我是 KOL“勾勾手刘志广”,用“粤语”来写作!看不明白,请多看香港电视或多唱“粤语”歌。。。
No fancy words to express the project, plain is the truth!!! I am Kol, “gogohands Liu Zhiguang”, to write in “Cantonese”. Do not understand, please watch more Hong Kong TV or sing more “Cantonese” songs...
佛山本土最大的的移动房产品制造管理机构
Foshan, the largest domestic mobile housing products manufacturing and management institutions.
勾勾手刘志广生活记录
Gogohands Liu Zhiguang Life Records
“美国咖啡书亭”
项目要安排落地了!准备先拿个 10-15W 来开发个样板,然后运过去美国加州那边,然后开始一边做经营数据一边做融资,我觉得这样的项目第一次的融资只要 10-15W 美刀就可以了,做一个成功的案例后,再 COPY 这样的商业模式来对接佛山制造与北美市场!
“American Coffee Book Kiosk” project to be scheduled to land! I’m going to take a 10-15 W to develop a model, and then ship it to California in the United States, and then start doing business data and financing at the same time. I think the first financing for such a project will only cost 10-15 W dollars, do a successful case, then COPY such a business model to connect the Foshan Manufacturing and North n market!
该项目重新诠释了该地区农业住宅的传统,这些住宅位于该地区的最高点,主导着该地区的景观。
The project reinterprets the tradition of the agricultural houses of the region, which are located dominating the landscape, on the highest points of the territory.
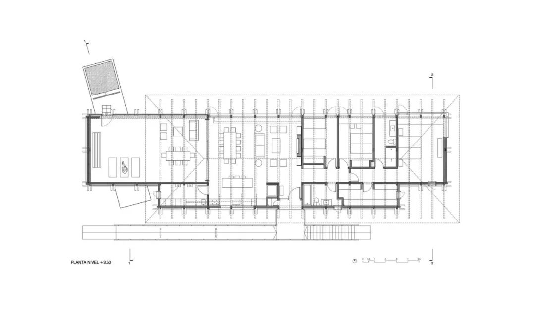
架空屋平面布置图
首层平面布置图
这所房子分成两个朝北的体量。第一个是底座,位于地面,是用钢筋混凝土建造的,在这里我们可以找到一个地窖、一间卧室和一个游泳池。第二个体量在离地面 3 米的高度,以便能够俯瞰周围高达 3.5 米的樱桃树的顶部。这个体量的结构基于层压木柱和梁,它们位于地面和较低体积的混凝土上,构成了房子的主要地板。在这里我们可以找到卧室、客厅、餐厅和厨房,以及一个大阳台,从那里你可以进入游泳池。
The house is organized in two volumes facing north. The first, as a plinth, is located at ground level and is built in reinforced concrete; here we can find a cellar, a bedroom, and a swimming pool. The second volume is 3 meters above the ground in order to get views over the tops of the surrounding cherry trees, which grow up to 3.5 meters high. This volume is structured based on laminated wood pillars and beams, which rest on the ground and on the lower volume of concrete, constituting the main floor of the house. Here we can find the bedrooms, living room, dining room and kitchen, as well as a large terrace from which you can access the pool.
-关于我们-
我从现有的蔚来花园、常州项目、桔子小镇、大新文创园、高明商业街项目、正在上马的屋面商业项目中,提出城市商业(商):蔚来房屋、乡村文旅(旅):景墅建筑 IP、新农村住宿(宿):微住宅三种分类作为我们农村地产的核心产品类目,在后面的文章中,我会慢慢地用这 3 个分类来介绍产品,请大家留意了!
-欢迎来图订制-
往期专辑 Past TopicsClick
PC 泡屋体系
▽
泡泡屋专辑
常规酒店配套家具专辑
集装箱住宅专辑
微住宅品牌
玻璃屋
镜屋
太空屋
帐篷
业务联系人(移动房主号)
业务联系人(泡屋主号)
移动房订制流程
产品的订制流程:
1-找设计单位或请我们将想要订制的移动房款式设计图纸完成→发图纸给我们制作产品成本清单→确定价格并签定订制合同
2-收到预付款后确定图纸及材料后我们就会开始制作。
3-成品验收合格后运到现场进行安装。
商业运作方案
勾勾手|中国,是为解决设计者及中小型工作室、设计公司、民宿宿主及项目投资者等对设计、建材、灯具、家具、民宿、施工等产品的落地公司,一站式问题的解决者。集策划设计、产品开发、品牌运营、施工等的综合体。。END
客服
消息
收藏
下载
最近































