查看完整案例


收藏

下载
旧石器时代,或是人们所认知的石器时代,对都市人而言变得遥远,似乎成了一种注定被忽视的存在。它既古老又前卫,像一块古老的板岩,蕴藏着历史的秘密。
山海连城,位于广州番禺区连海路 39 号。设计师在这里为一位多年海外旅居的时尚女性创作一间极简私宅——Karie 的家。在本案中,我们将会看到设计师如何逐本溯源的应用到空间中,使我们这个不断变化的时代稍稍提供喘息的机会。
曾经很努力的在有限的空间内炫耀设计技巧,而这次我们试图用更加开放自由的设计理念来创造一种全新可能,用简单的空间故事叙述一个城市的人文、一个空间的内涵,让一切都刚刚好。
△客厅仿佛踏入石器时代的某处洞穴,抬头即可眺望窗外的孤独奇境,空间中的隐秘,促使人们完成情绪上的演化。
下沉式的会客厅、粗壮的柱子和高挑的门洞,设计师利用建筑语言描述室内空间,就像在石器时代人们手工建造带给居者赋有节奏韵律的剧场变化;将客厅墙面凹凸起伏的水泥饰面挤压变形的夯土墙面。有机形态随处可见,但主题和特征却完全不重复。
△餐厅
与天光同眠,同草木共生。光线通过落地窗倾泻,由自然光线营造的超现实感和朴拙的表皮带来的肌理感形成两种不同趋向的力量,光与影的秩序美抚慰在外奔波的内心。设计师通过结构空间,携带光和影,在空间自由穿梭,弥散在家的每一个角落。
△
1F 花园
一花一世界,一叶一菩提。
行进一层花园,利用建筑体块的起承转合、层高不一的组合,展演出下沉水景空间丰富的层次感、转折自然的秩序性。
△下沉户外空间
“在整个设计过程中,我们希望通过开放的室内空间与户外景观实现无缝连接,确保房子实现最大的自然融合度,扩大视野提升居住的舒适感。”
主案设计师 刘浩文
在这个弥散着宁谧的居所里,似乎有着城市喧嚣完全不同的可能性。透露着都市的水泥丛林纵使朝向世俗,人们骨子里对安然与平静的趋往却是永恒的。
△B1 泳池
从一层过渡到 B1 泳池需要经过一个艺术前厅,在设计师的笔下,浪打风吹的岩石戈壁化作墙壁与天花上形成对比层叠的建筑体块;微微翘起的水磨石墙面,与地面的浅灰色在灯光淋落之下,突显锐角边缘,简洁有力,相互辉映,质感层层递进又相似和谐。
空间不断变形和扩张,将居者引入更深邃的 spa 生活馆,他们被包裹着,仿佛已经进入的是温暖的溶洞,感受吹佛过脸庞的徐徐威风,绿色的苔藓植物在空间中自由地汲取着自然给予的能量,空间大量的留白与室外围合的大片水景呼应着,协奏出一曲看似无声却辽远而撼动人心的交响乐。
出了洞口,走几层石阶便豁然开朗。清风悠然擦过,捎来清甜的兰草香。斑驳阳光透过橡树林,我更想用我的双脚去探索每一寸湿润的土地。
△2F 卧室
相较于一层四平八稳的空间布局,设计师试图在起居室与卧室之间一分为二,巧妙的利用 BOX 划分解决空间功能的边界感与秩序性。
通过对尺度的把握,尽可能地去减少设计的刻意性,把空间退到了视觉感知之外,却又放进精神领域之中,抹掉了“痕迹”才能感知内心,大面积的浅色水泥质感使空间关系层层递进,适当的视觉留白才有足够的力量去兼容万物。
回到居住本身。皮草、石纹等材质的介入让细微的体验与流畅的空间结构形成和谐的整体。墙纸则一笔定调,如亨利卢梭的画作,在天真中藏着野性,静谧里涌动着生命力。
主人房开敞的衣帽间弱化了各个区域的界限,人随境而转,空间消弭了明显的界限,也舒缓了居者的心境,为日常提供了丰富的体验与想象。
就当下这个“后疫情时代”,人们逐渐意识到清朗的空气、原生的自然、洁净的水源以及分明四季的体验弥足珍贵,它们共同构成了现代人居的美好愿景。因此在本案中,设计师将花园与起居自然连续、有上下过渡衔接关系的空间体验,亦为相对私密的空间附上一层浪漫主义的唯美。▽本案设计师
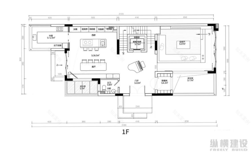
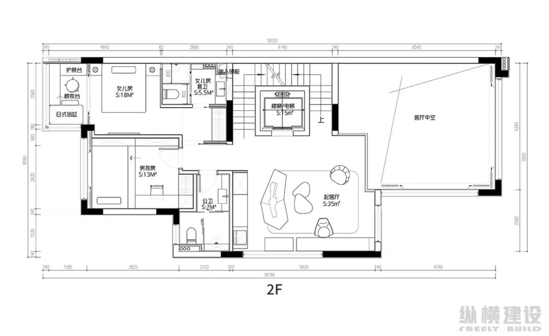
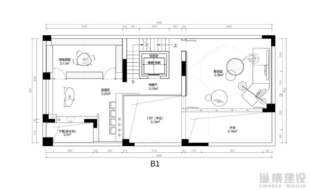
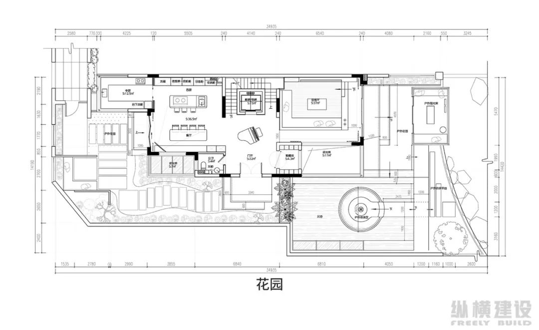
平面图
滑动查看更多
项目信息
项目名称 |广州山海连城别墅
项目地点 |广州·番禺区
设计时间 |2022 年
设计面积 |900㎡
主案设计师 |刘浩文
设计材料 |蘑菇石、微水泥、遮光板、砾石
设计团队
客服
消息
收藏
下载
最近










































