查看完整案例


收藏

下载

附件
在钢筋混凝土的城市森林之中我们犹如一个个挣扎求生的动物,每一次科技的革命,每一次潮流的迭代,我们仿佛一直在追赶着时代的脚步却始终追不上。买手店与品牌店、商场店不同的地方在于,你走进去之前里面的一切都是未知的,未知的品牌、未知的产品、未知的体验
——如同一个未经勘探过的宝藏星,正是这些未知在不断刺激着追赶潮流的人们从麻木的生活中去探索美的乐趣。
In the urban forest of reinforced concrete, we are like animals struggling to survive. With every technological revolution and every iteration of the trend, we seem to have been chasing the pace of the times but never catching up. The difference between a buyer’s store and a brand store and a mall store is that everything inside before you walk in is unknown, unknown brand, unknown product, unknown experience-like an unexplored treasure star, It is these unknowns who are constantly stimulating people who are catching up with the trend to explore the joy of beauty from their numb life.
一层平面布局
负一层平面布局
推导图
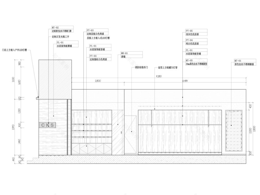
立面图
材料样板
建筑原貌
拆除后的空间回归到了钢筋混凝土的原始状态。
斜
10
°的门头保留水泥板的自然面,锐梵团队在设计过程中也在不断思索,奢华精致的美与原始粗旷的美究竟哪一个才是真实的自然状态。
The 10° slanted door retains the natural surface of the cement board. The Ruifan team is constantly thinking about whether the luxurious and exquisite beauty or the primitive beauty is the true natural state during the design process.
金属与水泥搭配的空间作为背景,每一套穿搭,每一个产品都展示着自己在最真实的城市生活中的魅力。
The space of metal and cement is used as the background. Each outfit and product show its charm in the most authentic urban life.
墙面的水泥板与蜂窝铝板同时诠释着都市的钢铁森林与
CKS
未知星球的双重意义。
The cement board and honeycomb aluminum panel on the wall simultaneously interpret the dual meaning of the urban steel forest and the unknown planet of CKS.
橙黄色与深蓝色的亚克力象征着我们都市生活中时常在不经意间出现的温暖和偶尔感受到的忧郁。
The orange and dark blue acrylic symbolizes the inadvertent warmth and the occasional melancholy in our urban life.
相比于一层的粗旷,负一层放佛我们城市生活的另一面,更多的秩序与精致体现在这里。
Compared with the roughness of the first floor, the lower floor puts the Buddha on the other side of our city life. More order and refinement are reflected here.
更衣室
洗手间
局部细节
CKS——潮牌买手店
设计时间:
年5月
完成时间:
年7月
项目地址:青岛
燕儿岛路17号3栋3号
建筑面积:
摄影:三景影像
客服
消息
收藏
下载
最近

































