查看完整案例


收藏

下载
曾涛设计案例
蓝湖郡花园别墅
2016
这是一个三口之家的花园别墅。宽阔的格局条件,加上采光与利落的风格,整体空间十分有气度。业主夫妻两人均从事多年建筑设计相关工作,女儿在大学也就读于景观设计专业。对于自己的家,他们想法很简单,不要奢华富丽,也不要只是好看却没有家的味道。
或许一个不经意,就能窥见日光从落地窗筛下条条光束,编织出如梦境的影像,让光影与空间的深层对话,是刻意也是不刻意营造的惊喜。以质感品味响应居者对未来生活期盼,打造出一个质感舒适空间。当满满的日光涌入,便能沉浸于静谧阅读时光,生活就是如此轻松而享受。
项目信息
项目名称:蓝湖郡
项目地址:重庆渝北区
服务类型:新房设计
全案设计:曾涛
项目面积:240平米
总共花费:136W
完工时间:2016年5月
所获荣誉
本案曾获得第十一届中国国际建筑装饰及设计艺术博览会——2016-2016年度国际环艺创新设计作品大赛华鼎奖别墅空间类一等奖。这是对设计师工作的肯定与鼓励,今后将会用更加贴心的服务,为每位客户打造理想的居所。
方案分析
滑动查看更多图片
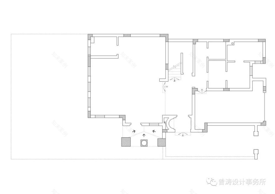
△
一层平面布置方案&原始结构
房子虽然是近十年前的户型,但对于一个简单的三口之家居住而言,并未大改动。
原结构的客厅只是和餐厅为一个独立空间,但经设计师改了结构后,客厅与餐厅、玄关,阅读区、过道在空间上完美延伸,使用方便,视觉通透。营造出空间的延伸感和立体感。
滑动查看更多图片
△
二层平面布置方案&原始结构
将二楼主卧、次卧以及客房都设计为独立的套房形式。配备了卫生间、衣帽间等,满足日常居住生活。
△
玄关以及阅读区草图
原本只是客厅的鸡肋边角,经设计师精心改造后多出来一个独立的读书阅读空间。
△
餐厅草图
餐厅位于厨房入口,不影响其他空间使用,从入户到客厅、餐厅、楼梯入口流动性顺畅无阻。
实景展示
△
玄关实景
进门步入玄关,穹拱天花板加之拱形的窗和鞋柜背景墙,简单直接地诠释出了美式乡村的风格特征。
诗人海子曾写下“我有一所房子,面朝大海,春暖花开”。虽然重庆没有海,设计师把天花板设计出大胆而又线条流畅的吊顶造型,像海边的形状,配上木质假梁,又采用引景入门的表现手法,多面开窗,使屋主可以多角度地享受室外花园的美景,又呈现出通透轻盈的感觉和度假惬意的居住环境。
本案整体空间以米黄色为基调,配上色彩同样素雅的布艺沙发、充满质感的美式实木家具,又用蓝色的抱枕、茶具、花瓶进行色彩点缀,让整个质朴的空间充满了一种魅惑感。客厅的三户窗子配上通透飘逸的白色十字麻纱,让窗外花园美景展现的一览无余,营造出一种雅致、开阔的大气之象。
△
客厅实景
单纯的皮质沙发显得太硬,搭配上蓝色的布艺抱枕、颜色素雅的棉麻沙发显得更休闲柔和。古铜色的三脚架复古台灯、木马书立架、金属雕花高脚杯、不锈钢茶具、金属骷髅头摆件、孔雀蓝矮花瓶……随便一个摆件足以给美式风格的居住空间加分。客厅与餐厅虽在一个空间内,但使用性又相对独立,互不影响。设计师为了避免那么生硬的转角,设计出装饰摆台,成为一个视觉亮点。
△
阅读区实景
客厅通往书房的门洞造型特别,让人忍不住眺望阅读区,将书房彻底融入生活。与庭院衔接,两户落地窗为读书提供了充足的采光条件,强烈的日照通过窗幔折射会变得温暖舒适。窗外的美景也让书房更添一些情趣,娇艳的鲜花配上蓝色玻璃花瓶,也有几分淡雅和清新。
△
餐厅实景
大多数人对美式家具直观的第一印象是体积大、厚重、舒适。而实木餐桌和皮质的餐椅恰好诠释了美式家具的这一特点。美式家具可以说是更讲究格调、欣赏和舒适性的继承。舍去华丽和过分的装饰,厚重的实木餐桌配上质朴的棉麻桌旗,陶质餐具,使用起来更舒适。而蓝色的玻璃花瓶及清雅脱俗的花艺点缀了整个空间。
△
主卧实景
午后、阳光、明亮的光线、美丽的窗框,即便是寒冷的冬季,在卧室里也有属于自己最温暖的阅读角。这样一款舒适度百分百的阅读角呈现眼前,阅读累了即可躺下小歇,这样的午后,是多么惬意。
△
次卧实景
如果说哪样家具是专属女人的话,那就是梳妆台了。屋主女儿已经成年了,在大学读的也是设计专业,偶尔回家小住也需要做作业,所以梳妆台亦是书桌。儿时的玩具熊,海洋风的床品和挂画也彰显出一个少女的浪漫情怀。
△
客房实景
即使是不常使用的客房,也设计得清爽而又宽敞。独立卫生间,嵌入式衣柜,还有休闲座椅,一切应有尽有。即使躺在床上也能观望窗外美景。留给客人最多的就是温馨和舒适。
△
卫生间实景
设计师改变了主卫生间的入口,避免了卧室床正对着卫生间的不雅格局。改造后有独立的淋浴间,浴缸也设计在窗子旁,无论白天或黑夜,躺在浴缸内感受着窗外的美景和微风徐徐,也是一种惬意的享受,也正中美式的舒适和浪漫情怀。
——the end——
长
按
关
注
解 锁 更 多 精 彩 内 幕
曾涛设计工作室
客服
消息
收藏
下载
最近



































