查看完整案例


收藏

下载
与家的相遇
将生活归还自己
四季轮转更迭,无言的漫漫时光
在花器、雕塑留下的痕迹
为平凡的日常注入生动的情感
归家
是一场洗涤心灵的修行
《维纳斯的崇拜》
提香 Titian 在 1518 年创作,文艺复兴盛期作品,这个作品由马德里市普拉多美术馆 Museo 保管。提齐安诺•维伽略,英语系国家常称呼为提(Titian)他是意大利最有才能的画家之一,是威尼斯画派的代表画家,也是文艺复兴时期在色彩方面最有成就的大师。在提香所处的时代,他被称为“群星中的太阳”他对色彩的运用不仅影响了文艺复兴时代的意大利画家,更对西方艺术产生了深远的影响。
01项目背景
本案例是四口之家。
屋主对设计和落地有着严格的要求。
家是还原自己的家。
在本案的空间里释放着理性、低调、高级、精致;弥漫着自然、柔和、舒畅、温暖。
这正是屋主对生活品质的要求与延申。
家承载了一个家庭的能量场。
设计师是否能快速准确的抓住业主的需求,并把这种需求、品质、能量贯穿到空间中,是设计总监徐振一直秉承的设计理念。
02建筑 不只是建筑
艺术与生活交汇
家脱离了空间的界限
设计的意义在于呈现高于生活的精神追求
从世界到中国,不同时代的豪宅,都代表着这一时期人类建筑技术和生活哲学所能达到
最完美的境界。时移世易,奢华生活的概念不再深植于物质享乐主义,而是转向于一种非物质性的维度
我们希望
创造一个与自然与人能交流的空间
无论哪种设计,最后都会回归于人和自然
最初的原点才能让一切事物回归于最好的状态
03 设计欣赏
这次设计以享受生活的理念设计。设计总监徐振通过对原有结构大刀阔斧的改造,突破传统空间布局,把采光、通风、灯光做到了极致。简约的几何线条贯穿整个空间,透露着理性。高级、圆润而自然的装饰又释放出从容的舒适感。点、线、面的精准构造,以及色彩的层层把控,营造了一个空间与心灵的对话的家。
设计师着重空间的透视感。从入户玄关开始,深色哑光岩板材质电视背景墙分割客厅和门厅动线,既保证客厅私密性,又让空间体现出沉稳厚重的感觉。
整体空间
选择深色木饰面柜体和浅色肤感油漆墙板结合,既现代又融入法式低奢的元素。
客厅、餐厅、厨房与进门过道里外呼应,在满足空间功能需求的基础上,通过丰富的材质变化,营造了浪漫和颇有情趣的空间氛围,将设计内涵带入空间的气氛当中。
空间中,楼梯、门窗、家具、窗帘等细节元素,以清新淡雅的颜色为主,营造出人文感和温馨感,空间气质高贵不凡。
在软装设计上,各种饰品和艺术收藏将装饰性和实用性完美地结合在一起。水晶灯、软包、家具、油画、台灯、雕塑以及植物,不仅为家庭营造了艺术氛围,同时表达了一种优雅的生活态度,并赋予空间浓厚的法式风情和艺术气息。
个性的单椅沙发和角几,让客厅的生活方式温馨且放松。斑马纹的图案一直都是时尚界的宠儿,创意十足,优雅且经典。
室外的阳光透过窗户洒落到洁白的石材台面上,就像牛奶与咖啡的融合。深色收缩空间,白色提升亮度。在餐厅煮上一杯咖啡是那么的惬意。
对称美在餐厅中体现的淋漓尽致。餐厅设计和客厅风格呼应,配套一个功能性的西厨餐柜,完美的解决客厅的功能性和便利性,让生活方式惬意十足。
金属质感的玻璃吊柜,提升了餐厅的档次。酒柜作为艺术与收纳的存在,足以让焦点聚集于此。创意十足的水晶金属吊灯,在恰当的位置提供温馨的灯光。
空间与空间的链接
通过一组楼梯的设计,是设计师平衡之后的诠释。
不同层次的情感,将空间解构、重塑,空间变得鲜活有生命力,也是屋主自我角色的演绎。
地下室天井墙面选择石皮装饰材料。让这个休闲空间回归到大自然的生活状态。复古的石材肌理和这把休闲椅呼应,在韵律中带来安宁。散漫光影,也是空间情绪的表达。
负二层是品酒区,主要满足商务接待社交需求。这里既适合一个人的高质量独处,也可容友人会面、品酒畅谈的相聚时光。
大自然的石材、木皮有序的在空间里呈现。琉璃的水晶吊灯记录斑驳、扑朔的光影层次。在这里感受下午茶的时光。
灰色的美式风格,墙板与顶面衔接处,墙面做了一些留白处理。质感的皮革,古铜色的台灯,灰色的棉麻窗帘,让这个老人房宁静、柔软、回归。
女孩子的心思都比较细腻。作为父母,为女儿打造粉嫩的公主房,是屋主和设计师反复沟通强调体现的风格。冰雪奇缘的主题融入到空间,粉色的涂料作为主色调,结合一部分法式线条,营造了浪漫的梦境。粉红色的点缀遍布房间各个角落,打造独属于女孩的甜美感觉。
公共卫生间
在设计上选择米白色系,温馨、清爽、明快、简洁,功能分区明确。
私域空间
主人房没有过多的设计语言,质感的硬包饰面和木质格栅墙板的床头造型联起设计主线,搭配雅致的布艺和微小物件,渗透出休憩之所的柔软与舒适感。
偶得幽闲境,遂忘尘俗心。始知真隐者,不必在山林。
一个人拥有此生是不够的
他还应该拥有诗意的世界,和温暖的家
人生到达一定阶段
不再追求繁华的生活
而是做减法的智慧
闲暇时,倚卧在躺椅上听乐声婉转回旋,看窗外景色一览无遗。回转步入超大衣帽间,华美礼服璀璨首饰亦归置有序。
每一处细节背后
都隐藏着关于人与空间关系的探索
见多了人生风浪
更独爱这一方天地
举杯品茗,生活中有酒香,酒中有人间清欢
生活的浪漫不应被世俗的繁杂打败。注重细节,用时间去沉淀自我,让勇气和热忱在我们心中盛放出永不枯萎的花朵。我们裹挟生活的理想一路前行,仍会因时间流逝而稍顿脚步。在时光的缝隙中,慢慢正视心中那份久违的宁静和对世界的热爱。阳光恣肆,向海而生。
▲负一层原始结构图
Original structure drawing of the first basement
▲负一层平面布局图
Ground floor plan
▲一层原始结构图
Original structure drawing of first floor
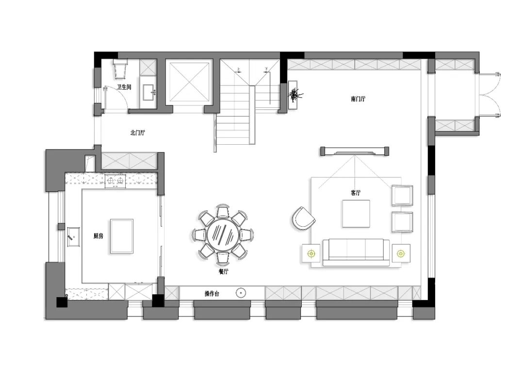
▲一层平面布局图
First floor layout plan
▲二层原始结构图
Original structure drawing of second floor
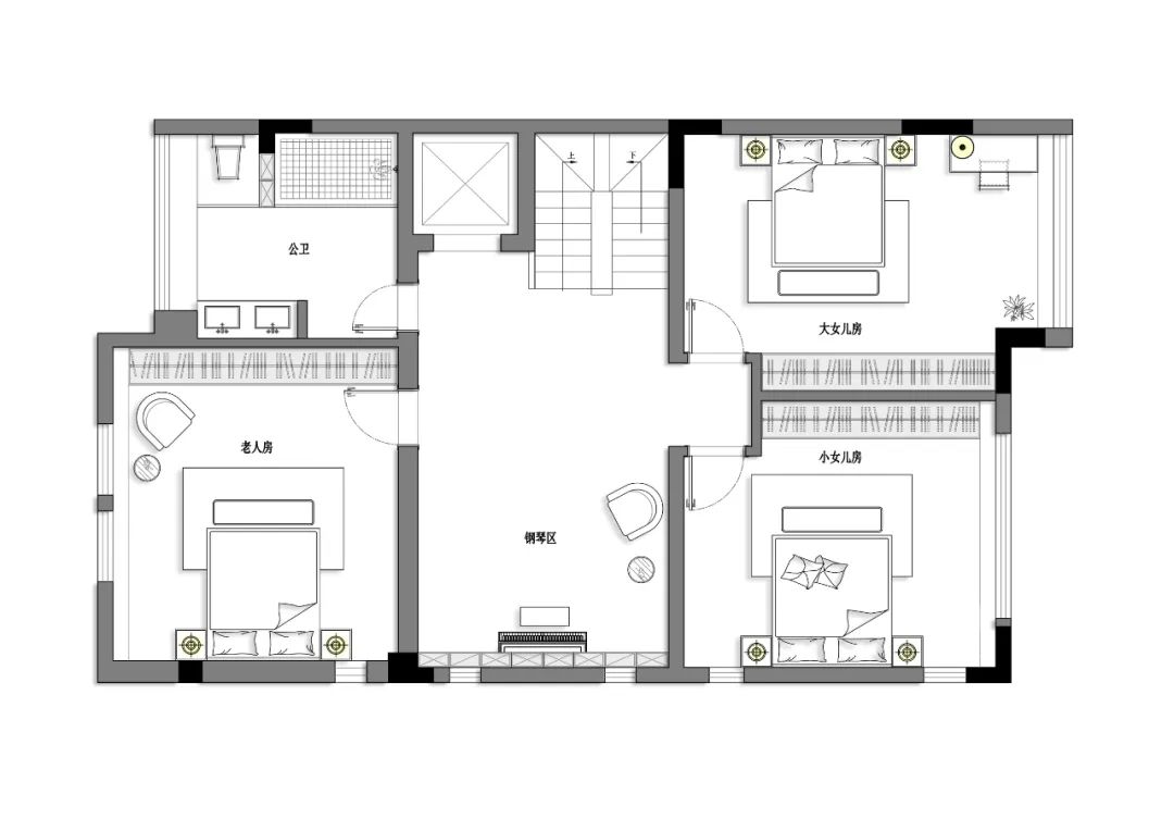
▲二层平面布局图
Second floor layout plan
▲三层原始结构图
Original structure drawing of the third floor
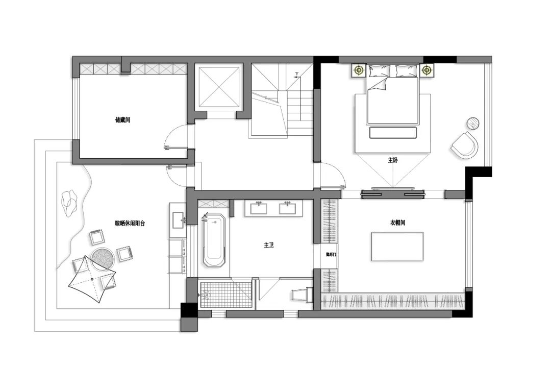
▲三层平面布局图
Third floor layout plan
项目信息
Information
━
项目名称 | 维纳斯的崇拜.黑白格调
项目地址 | 中国 江苏 徐州
项目面积 |520m²
设计主创 | 徐振
设计参与 | 王飞 姜飞鸿
施工团队 | 曦曜施工
软装设计 | 合一 U+
空间摄影 | X P.VISION
主材品牌|
LA CASA 拉卡萨 西克曼定制 图森木作
欧派橱柜 夜舟灯光
简一瓷砖 西顿照明
高仪卫浴
设计时间 |2020.05
徐振
上海阅界空间设计有限公司创始人/设计总监
国家注册室内设计师
中国室内装饰设计协会会员
荣誉奖项
2021/2020/2019 年度淮海设计奖专家评审
2020 年 G+设计精英大赛全国四强(创新设计奖)
2019 年 40UNDER40 中国(江苏)设计杰出青年
2019 年 M+中国高端室内设计大赛年度影响力 TOP100
2019 年 M+设计创客空间战略合作创始会员
2019 年 M+中国高端室内设计大赛江苏赛区 TOP50
2018 年徐州广电·无线徐州签约设计师
-END -
阅界空间设计
上海阅界空间设计是一家以全案设计和大工程全托管管理模式组成的一家资源整合能力突出,权威室内设计师领衔的别墅室内设计机构。包含系统化家居整体架构设计、庭院设计、别墅家居产品私人定制、智能一体化设计、后期可移动空间软装搭配等服务项目。
地址:江苏省徐州市鼓楼区苏宁广场 C8-1902
家居整体设计 |庭院设计|私人订制 |软装搭配
原
往期回顾
PreviousReview
阅界设计 | 冬日 • 融
阅界设计 | 光影 · 而居
阅界设计 | 极简原木自然住宅
设计师徐振 | 做最好的设计,在最好的时代
客服
消息
收藏
下载
最近




































































