查看完整案例

收藏

下载
该项目是Jordan品牌商店TOKYO 23的室内设计,该商店位于东京街头文化的中心——原宿猫街的后街。商店从附近的原场所搬迁并扩建,作为日本最大的Jordan品牌零售空间,为男子、女子和儿童提供全套服装。由于将运动鞋引入流行文化而广受赞誉,Jordan品牌希望创造一个空间,让人们在其中可以体验篮球世界和品牌根源。在这里,粉丝社区可以自然形成。
An interior design project for the Jordan Brand store TOKYO 23, which opened in the backstreets of the Cat Street in Harajuku, an area well established as the centre of Tokyo street culture. Designed as the largest Jordan Brand retail space in Japan, the store that offers a complete range of apparel for men, women and children was relocated and expanded from its previous nearby premises. Widely credited for introducing trainers into popular culture, the Jordan Brand wanted to create a space where people could experience the world of basketball and brand roots. A place where a community of fans would naturally form.
▼店面概览,overview of the front
该项目位于原宿地区常见的、有着30年历史的租赁建筑群中的其中一栋。商店入口略微远离主街,室内设计需要跳脱以吸引路人的目光。一个大型LED显示屏覆盖了后墙一部分,一个室内篮球场从显示屏中向前延伸出来,占据了空间的中央位置。
Located in a 30-year-old rented building amongst other units, typical to Harajuku, and with an entrance set slightly back from the main street, the interior design needed to stand out to passersby. A large LED display that covers a portion of the back wall was installed with a basketball court that spreads out from it and into the centre of the space.
▼商店入口,entrance of the store
▼室内篮球场从显示屏中向前延伸出来, a basketball court that spreads out from the LED display
在店内,Jordan品牌产色彩丰富的展品被精心陈列,致敬原宿街头文化的活力。在设计室内时,我们特别关注了材料和细节的选择,以表达东京景观的灰色调特征的深度。
Inside the store, a variety of coloured Jordan Brand products are sophisticatedly displayed, an ode to the vibrancy of Harajuku street culture. Particular attention was paid to the choice of materials and details when designing the interior to express the depth of grey tones characteristic of the Tokyo landscape.
▼室内的灰色调特征, grey tones characteristic of interior
当站在入口区域,抬头望向LED显示屏前的篮球框时,你会注意到篮球场长约7.5米,宽约6.5米。场地高出地面0.2米,并以混凝土砖块标识轮廓。三排透明的装置固定在球场,定期展示一系列漂亮的运动鞋。
When standing at the entrance area, looking up towards the basketball goal set in front of the LED display, you will notice the basketball court measuring approximately 7.5 metres by 6.5 metres in length and width. The court is raised 0.2 metres above the ground and marked out by concrete blocks. There are three rows of transparent fixtures on the court that regularly display a range of beautiful trainers.
▼零售区概览,overview of the retail area
▼透明的固定商品展示装置,transparent products displaying fixture
▼混凝土砖块标识篮球场边界,concrete blocks mark out the basketball court
▼混凝土砖块细部,detail of the concrete blocks
除了用作零售空间外,该商店还被设计为活动举办场地。因此,回收材料制成的家具和固定装置是模块化和可移动的,展示架则像是用从街道拉到商店的围栏建造的。
In addition to operating as a retail space, the store was designed as an events venue. Therefore the furniture and fixtures, made from up-cycled materials, are modular and movable, with display shelves that appear to have been built from fences pulled from the streets into the store.
▼模块化与可移动家具,modular and movable furniture
店内的艺术品经过精心策展,为东京创造了一个文化中心,其中展示了包括来自定居洛杉矶的日本艺术家Reina Koyano的平面艺术,Kojima Shoten的灯具,以及Jun Inoue的从外部看像是灯笼的椅子。此外,室内还装饰有乔丹风格的大象母题、平面设计师Kohei Sekida的怀旧商店标志,赋予空间以“乔丹x日本”之感。
Artworks have been carefully curated inside the store to create a cultural hub for the city of Tokyo, featuring graphic art by LA-based Japanese artist Reina Koyano, lighting by Kojima Shoten and chairs by Jun Inoue that look like lanterns when viewed from the outside. In addition, the interior is decorated with Jordan-inspired elephant motifs and graphic designer Kohei Sekida’s nostalgic shop signage that give the space a ‘Jordan x Japan’ feel.
▼Reina Koyano的平面艺术作品,graphic artworks from Reina Koyano
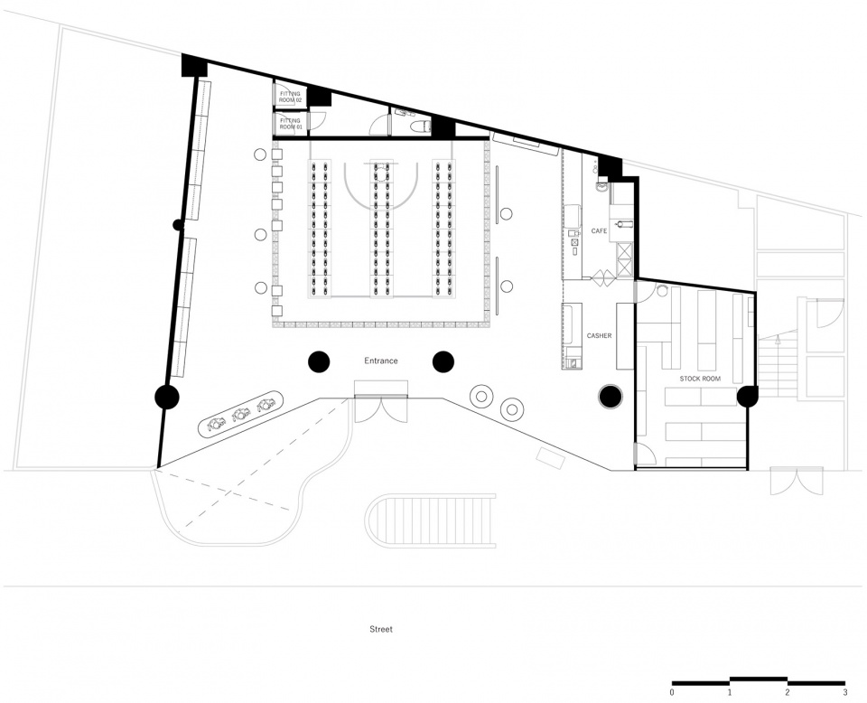
▼平面图,plan
▼剖面图,section
Project Name: TOKYO23
Office Name: SAKUMAESHIMA
Office Website:
Social Media Accounts: instagram : @sakumaeshima_
Firm Location: 4F, 2-19-8 Jingumae,Shibuya-ku, Tokyo-to 150-0001, Japan
Completion Year: 2021
Gross Built Area (m2/ ft2): 204.5m2
Project location: Chiyoda-ku, Tokyo
Program: Retail store (trainers)
Photo Credits: Masaaki Inoue / BOUILLON
客服
消息
收藏
下载
最近















