查看完整案例


收藏

下载
Houses, Hashimoto, Japan
设计师:Ryuichi Ashizawa Architects & associates
面积: 96 m²
年份:2019
摄影:Kaori lchikawa
建造商: Vectorworks, Adobe Systems Incorporated, Arauno S, Graphisoft SE, Inax Yawl, Kakudai, Koizmi Lighting, Lighting factory, Panasonic Japan, Swan, T-form, TOSHIBA
Lead 设计师:Ryuichi Ashizawa
设计团队:Ryuichi Ashizawa Architects & associates
Structure Engineer:Takuo Nagai
Construction Company:Nishimura Constructions
Site 面积:433.26㎡
Gross Built 面积:84.91㎡
Far:22.18 %
Total Floors:2
Maximum Height:6.516 m
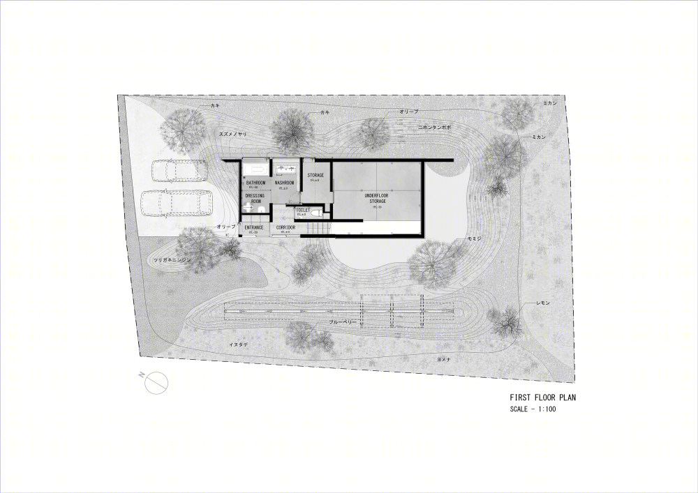
It is a single family residence located near Kinokawa in Wakayama prefecture. One can feel the rich terrain that extends from the Kino River, with a rich mountain range spreading around. The surroundings are persimmon fields, along with farmhouses, private houses, and barns for farm equipment, thus creating a very calm scenery. A thought about creating a modern barn on the site that was originally a persimmon field and to create an environment for living there, crossed the architect’s mind.
The barn has a simple construction and form. In this design, a simple wooden frame construction method and a simple form with a gable roof were adopted. The outer wall is made of corrugated cement board, wood wool cement board, etc. Most of the internal finish is plywood with the barn having simple structure made using the industrial products. As a space where humans and nature confront each other, it was decided that half of the barn would be inside and half would be outside. The architecture and the surrounding environment should be able to respond positively to one another was another intention of this design.
Environment and topography response of Kinokawa.This area has a history of flooding the Kino River in the past, and the surrounding private houses have been hit by flooding on the first floor. Therefore, we considered to raise the main living level above the assumed level of inundation. Instead of simply raising the floor level, we thought of creating topographic features inside and outside the site by repeating the rich terrain of the surrounding mountains on the site. Warehouses and water supply areas are planned at the bottom of the terrain (areas that may be flooded). It was designed to create a vague interior and exterior space by introducing terrain uplift to the outside of the half of the barn, and to draw the wind blowing in the east-west direction into the semi-external space and into the internal space.
An ambiguous space is created that can be said to be semi-internal and semi-external, setting up an environment where residents can face the nature and make extensions in the future. The rainwater that falls from the roof will flow through the site, and the sewer will be planned so that it will permeate the entire site, and the other soil will be gradually planted with local plants. The rainwater that falls from the roof will flow through the site and will be planned in sewer so that it will permeate the site, and other soil will be gradually planted with local plants.
When designing a home, RAA always considered incorporating a "small environment" that stimulates the resident. After this corona vortex, the time at home and the role of the house must be re-considered, but also the nature weaved into the homes will add even more meaning to human life. The architect thinks it is important to create a “big consciousness” for people who continue to ask what nature and the earth are in everyday life through the small environment of architecture.
项目完工照片 | Finished Photos
设计师:Ryuichi Ashizawa Architects \u0026 associates
分类:Houses
语言:英语
阅读原文
客服
消息
收藏
下载
最近

























