查看完整案例


收藏

下载
项目名称:曲江大城
项目面积:210㎡
设计风格:现代简约
主案设计:武登高
深化设计:叶阿强
项目专员:王宇 易高
案例
Plane structure chart
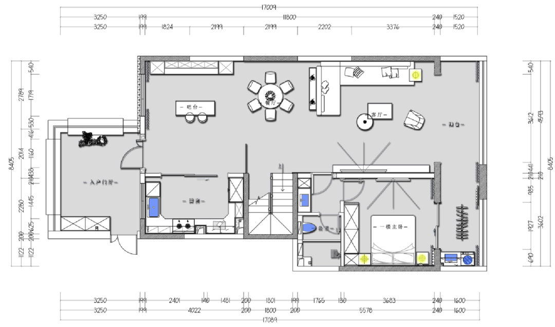
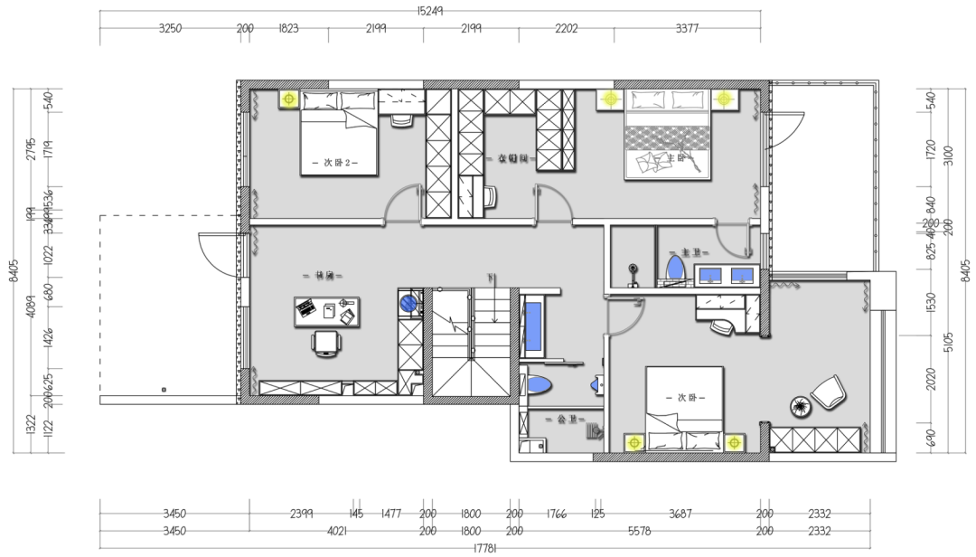
平面结构图
▲一层平面图
▲二层平面图
Rendering display
效果图展示
▲ 门厅
从门厅开始精简,生活的仪式感从这里开启。两面大面积采光窗充分的保证空间的采光,配合哑光地板空间通透鲜明,利用景观小景在家中筑出专属小院点缀生活。
▲餐厅
▲餐厅
▲厨房
用白色与暖黄色来装饰一家人幸福的时光,餐厅简雅素净。融入西厨加强空间功能性,以岛台为空间分割划分动线配合西厨,让业主有更便捷的生活体验,圆形餐桌围坐一堂享受三餐四季。
▲客厅
▲客厅
客厅打通阳台,让阳光畅通无阻装点室内,扩大视觉空间让家庭活动更加自由。悬浮背景板让客厅更显高级感。延续家中简约主题注重对格调的营造,点点绿植是生活中的小确幸,分泌多巴胺让居者更加快乐。
▲一楼主卧
▲一楼卫生间
一楼主卧简化色彩、装饰元素和照明,浅色系床品也与整个空间形成呼应,用含蓄而简单的百搭韵味,强调出“时尚、实用”的设计理念,睡眠氛围轻松而舒适。
▲二楼书房
将二公区改造成书房,承载业主的精神世界,墙面设置壁龛,让书房整体效果更加统一美观,背景墙改造成书架装载心中向往。
▲二楼主卧
▲主卧衣帽间
▲主卧卫生间
主卧摒弃冗杂的装饰,选择黑白灰等高级质感的色彩装饰,提升空间气质突出卧室的格调。注重对细节的勾勒,采用木质地板营造空间氛围。对空间进行合理划分,衣帽间、卫生间共同打造舒心的起居地。
▲二楼次卧
▲二楼次卧
▲二楼公卫
次卧延续主卧的设计风格,营造出舒适纯粹的休憩氛围。人性化设计与现代元素的结合,让居者在其中享受快乐。
▼主案设计
武登高
中国室内注册设计师
注册号:ZB20803174
毕业院校:西安美术学院
设计理念:用艺术的眼光雕琢生活
设计风格:中式 简约 欧式极简
从业时间:17 年
易高国际创始人、设计总监
2017 年瑞典色彩学院 色彩专业结业
2004 年--2010 年北京元洲装饰首席设计师
2011 年--2013 年陕西九朝装饰首席设计师
2013 年至 2016 年北京峰上大宅装饰专家设计师
2009 美化家居设计大赛三等奖
2011 获陕西省优秀设计称号
2012 筑巢杯设计大赛优秀设计奖
2013 住宅装饰行业优秀设计师
2014 住宅装饰行业优秀设计师
2015 第三届【锋尚·京瓷杯】新中式设计大赛最佳功能布局奖
2016 第三届中国建筑装饰设计艺术作品展获铜奖
2017 居然顶层精英设计师
2017 年中国(陕西)设计杰出青年
2017 第四届峰尚杯新中式设计大赛 最佳方案奖
2017 首届禾记万佳杯设计设计大赛优秀奖
2017 创意生活设计金蝴蝶奖
2017 商业旅游地产年度优秀住宅公寓设计师
2017 评选为亚太空间艺术大师
2018 金楠奖设计大赛优秀奖
2018 获得第二届西安建筑装饰设计“青年设计师领袖”称号
2018 设计作品《中海百贤府》获得
第二届西安建筑装饰设计别墅类银奖
2018 设计作品《龙湖香醍》获得
第二届西安建筑装饰设计样板间设计优秀奖
2019 金堂奖全国百强先锋榜百强设计师
2019 年度腾讯家居搜狐焦点家居杰出设计师
2019 德国高仪住宅精英榜 TOP108 匠
2019 蒂森克虏伯杯别墅设计大赛经典设计奖
2019 第三届西安建筑装饰设计奖“年度青年设计师领袖”
2020 中国设计新青年评选“城市举荐官”
2020 设计作品《石中木》获得陕西地区优秀住宅软装设计
2021-2022 中国新地产设计大会年度优秀别墅设计师
2021 金住奖-中国百杰居住空间设计师
2022 中国国际空间设计大赛十佳设计师
成功案例:中华世纪城紫薇臻品
白桦林居中海华庭 中海国际 紫薇融侨就掌灯 中海东郡 曲江公馆 曲江尚林苑 曲江兰亭 曲江华府 枫林意树湖城大境 中海铂宫 中海百贤府 紫汀苑紫楹台曲江和园 中海曲江大城 .....
||
点击以下图片查看易高国际更多作品▼ ||
▼易高·案例 |凤凰池 421㎡欧式风格/欧式魅力空间
▼易高·案例 | 曲江大城 240㎡现代简奢/畅享生活小资
▼易高·案例 | 曲江大城 200㎡现代风格/感受色彩魅力
▼易高·案例 |
丽彩溪岸庄园 550㎡欧式风格/高级莫兰迪色搭配
▼易高·案例 |
万科大明宫
305㎡现代简约/感受家的温馨舒适
▼易高·案例 | 曲江九里 118㎡新中式 / 中式端庄大气
▼易高·案例 | 紫汀苑 248㎡美式轻奢 / 奢华雀语
易高国际工程直管
100%自有工人、零增项、零增量、诚信一口价
↓
中国设计百强品牌/专注别墅大宅设计/施工/软装陈设
易高国际秉承
【出于易高·必为精品】的施工理念
【受人之托·忠人之事】的服务理念
竭诚为您提供全案设计服务
·
关注我们,了解最新动态
还您一个独一无二的家居生活
客服
消息
收藏
下载
最近





























