查看完整案例


收藏

下载
九龙盘青山
松江映碧波
1979 年建成的十字路水库,别名九龙湖,湖周黛峰如眉,翠岭逶迤;湖中碧波如镜,岚影倒悬。波光蓝天一色,绿树修竹相映。
【九龙湖·观澜轩】便深藏于这江南水乡之大成之地。
项目地址:九龙湖·观澜轩
设计面积:1300m²
设计风格:现代
主创设计:史峰
设计机构:星杰国际设计
01/历经山水沉浸式生活。
归心·空间纵览
旋转手机,空间纵览巡游
02/居山野以顾内心。
归心·山水之乐
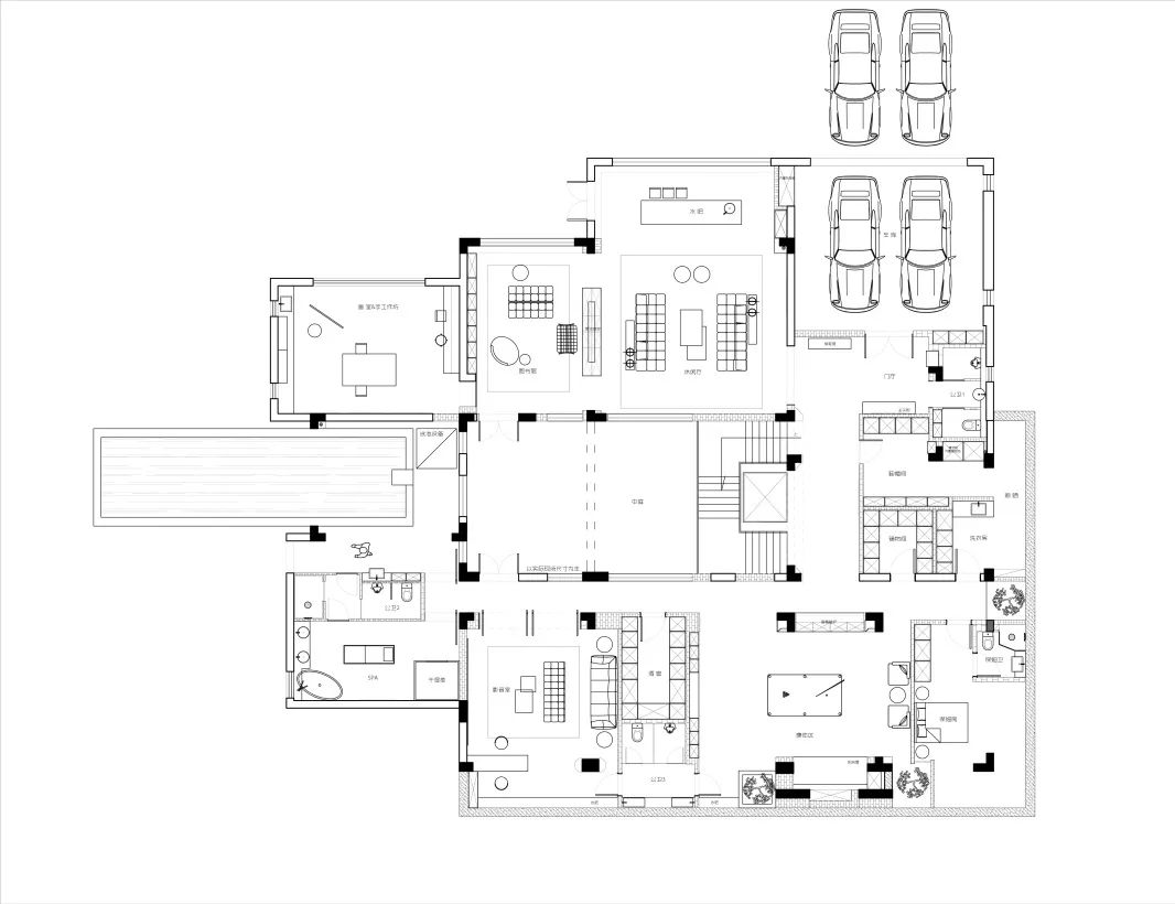
负一层
Ground floor
- 平面图
一个人的安静、两个人的浪漫、一家人的欢娱……
打台球、看电影、看书、弹琴……
每一个精心设计的细节,只为在此娱乐的每一刻!
【台球厅】
谁能拒绝在家开一把台球呢?没事的时候约上好友打上两球,在激情推杆中,尽情享受高雅愉悦的生活体验。
【影音室】
影音室的装修摒弃了物质的堆砌,少而精致的陈设还原生活本真。在这里,屋主可以畅谈闲聊、围坐观影。感知触觉、听觉、视觉上的大和。
【桑拿 spa】
头顶的天窗将房间之外的景色引入其中,让光透入房间,寄予一种仿若置身自然的惬意。
完美的配套设计,和谐统一的配色和细腻的材质,打造在家也能体验的高级、贴心 spa 服务。
【画室和手工坊】
这是一个充满活力的创意空间,集合了绘画天地和手工活动。白色和原木色的搭配,让艺术更贴近生活,舒适的环境,激发更多的灵感,让亲子之间更有乐趣。
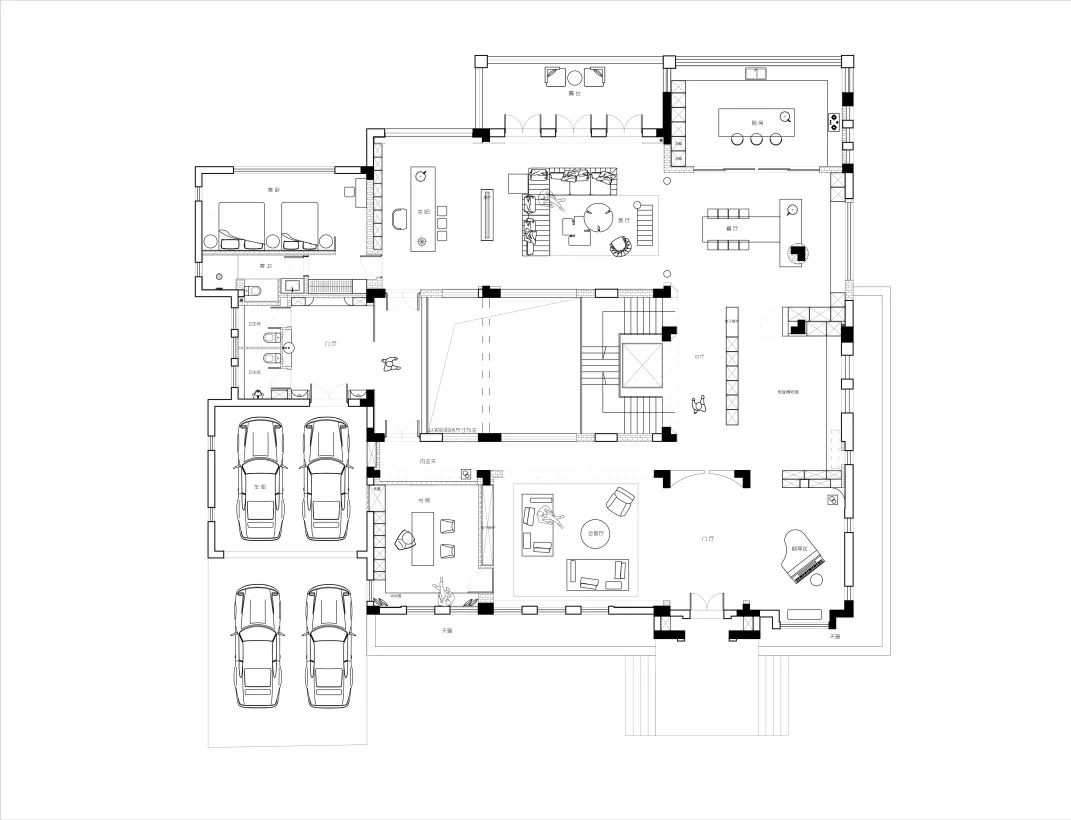
一层
First floor
- 平面图
生活的仪式感彰显于每日三餐之间,待人间烟火降临,光涌方寸间,可邀窗外温婉的风、闲适的光共处一室,再趁兴把酒微醺,予生活以明媚和仪式感。
【客厅】
客厅沙发都选择了大面积的白色,搭配低调又不失温暖的深色靠垫和异形大理石茶几,让空间的温度瞬间得到了提升。钓鱼灯的优美弧线和空间利落的线条感,趋于细腻、温柔。拱形窗的设计,打破空间的孤寂,简约又不失时尚感。
【茶室】
茶室不仅限于品茶,同样承担着社交的功能,"以茶会友”的待客之道也在不同的交际圈中逐渐风行,茶室成为越来越多中国人家庭中的必备生活功能空间。
【书房】
吾心安处是书香,打造一间专门的书房,安静的空间有助于居者思想与创造力集中,在沉静与放松中,让思绪沉浸在"黄金屋”中。
【厨房&餐厅】
锅碗瓢盆交响,汤粥饭菜香味,厨房里的烟火气,谱写家的温暖。U 型厨房的设计,三面依墙的规划布局,让烹饪、收纳两不误。中岛台的加入,让厨房成为比客厅更有意趣的休闲娱乐、交流感情的社交中心,是家人友人共享烹饪和美食的绝佳舞台。
开放式餐厅设计,通过功能的释放与变化,让公共区域更加宽敞大气,增加了流动性与互动性。
【钢琴室】
弧形的星空圆顶灯,悬挂式的壁炉,将整体空间变得有趣、舒适、新鲜和活力。
在平淡的生活中,多一丝情调与美好。
【家庭博物馆】
“家”与“收藏”的梦幻联动,串起生活中的温情回顾,让目光所及的每一处充满热爱生活的影子。在宁静的时刻追忆似水流年,有太多的东西需要仔细珍藏,有太多的东西需要细细品味。
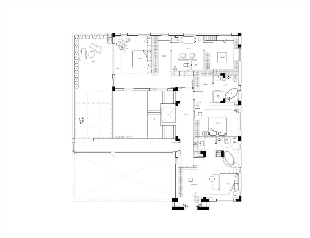
二层
Second floor
- 平面图
明亮又整洁的房间,让你忙碌的身体完全迷失,沉寂了一整天的气息,又渐渐苏醒过来。
这,就是家的魔法;这,就是家的魅力;这,就是家带给你的温暖。
- 主卧
「空间、丰富的光线、动线静线、细节把控」等每件事都很重要。
主卧套间设计以业主的生活习惯合理规划,让动线、区域、功能、视觉都充分满足需求,为居住者带来优质的生活体验。
- 大儿子房
以纯粹的概念去传递氛围的表达,内敛的色彩语言简约的装饰手法,赋予空间灵动多变的趣味感。不张扬具有微妙的「视觉感知力」,体现繁华中回归宁静的意味。
- 小儿子房
干练简净的线条勾勒出利落明亮的空间格调,梳理了功能需求的同时,纳入人与空间的沟通,同时塑造了空间,营造了氛围,也传递了空间表达的理念。
园林
gardens
是周末假日时亲朋小聚、栖息身心的“后花园”,是远离城市喧嚣的“世外桃源”。
星杰董事长杨渊先生的理念【园林】称得上理想中的第二居所
纯白环境里一抹绿意,在屋里,有阳光,有树,有花,光影斑驳,就算什么都不做,看看就已经很美好了。
每当夜幕降临,在一方庭院之中,温暖的灯光亮起,让人心生暖意。
03/
居山野以顾内心。
归心·其他空间
#关于设计师
About designers
史峰
社会职务
S 空间设计有限公司 设计总监
Design Director, S Space Design Ltd.
中国室内装饰协会 会员
China Interior Decoration Association, member
宁波市室内设计师协会 会员
Ningbo Society of Interior designers, member
IDG 金创意奖国际空间设计大赛——大学生导师
IDG Golden Award International Space Design Competition -- University student tutor
T.K HOME 德光居国际软装设计中心宁波公司 设计总监
T. Tokumitsu, design director, Ningbo Company, HOME
设计理念:用理性的思维逻辑,热诚的设计,有感情的创造属于甲方有温度的家
擅长:横纵空间规划,用故事化引入色彩的搭配,用灯光氛围影响空间的质感 ,具有全案项目运营管理以及通过全案,实现较高的项目竣工和效果实景落地。
曾获奖项:
WON AWARDS
2021 年度百度馨居奖百度家居行业设计师大赛最佳平面规划设计奖 全国 TOP30
2020 年度 Home Italia 全球接触年轻设计师奖
2020 年度上海国际设计周 金梁中国设计奖
2020 年度第八届 IDG 金创意奖国际空间设计大赛——大学生导师
2020 年度第十届国际空间设计大奖——艾特奖宁波赛区最佳别墅设计入围奖
2019 年度 Design Focus 空间设计大奖年度别墅豪宅空间设计大奖(实景类)
2019 年度法国双面神 GPDP AWARD 年度 TP100 国际影响力创新设计师
2019 年度中国室内设计青年 TP100
2019 年度 PCHOUSE AWARD 私宅设计大奖宁波 TP10
2019 年度亚太设计师大赛实景类·别墅空间·至尊奖
2019 年度亚太设计师大赛别墅空间·十大设计师
2019 年度亚太设计师大赛实景类·住宅空间·至尊奖
2019 年度第二届红创奖设计大赛·年度优秀作品奖
2019 年度 CYIDA 中国浙江青年室内设计奖·别墅豪宅空间优秀奖
2018 年度红创奖设计大赛·最佳色彩搭配奖
2016 年第十一届金外滩奖·入围奖
2014 年第五届中国国际空间环境艺术设计大赛筑巢奖·公寓类优秀作品奖
2011 年金堂奖·年度优秀住宅空间奖
2009 年中国室内设计论坛家居装饰设计大赛·提名奖
2008 年全国室内装潢设计大赛·优秀奖
Villa life starts from Singo
“别墅生活从星杰开始”
SINGO
星杰国际设计
成立于 2001 年
22 年专注高端家居服务领域
为别墅家庭提供“专业、时尚、省心”的一站式私宅定制服务
客服
消息
收藏
下载
最近











































