查看完整案例


收藏

下载
项目介绍
工程名称:
泊云尚院民宿酒店
Project Name: Boyun Shangyuan Hotel
坐落地点:
河南 开封
Location: Kaifeng, Henan
竣工日期
:
2018.10
Date of completion: 2018.10
设计单位:
稻禾设计
Design Unit: Daohe Design
摄影团队:
如初建筑空间摄影
PhotographyTeam:Ruchu Architectural Space Photography
酒店位置选在开封半亩园,御河南岸,往北就是负有盛名的清明上河园、天波杨府。客人出门去附近景区或是湖边游玩,只需从后院小门出去,沿河穿过廊桥,十分钟便到达目的地。
The hotel is located in Kaifeng Half Mu Garden, on the South Bank of the Royal River, to the north is the famous Qingming Shanghe Garden and Tianbo Yangfu. Guests go out to the nearby scenic spots or lakeside for a turn. They just need to go out from the backyard gate and cross the corridor bridge along the river to reach their destination in ten minutes.
|
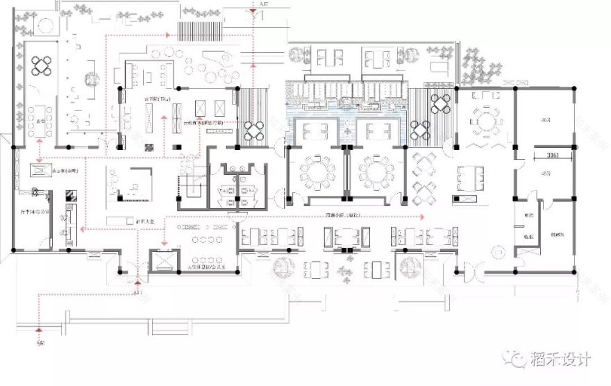
一 层 平 面 布 置 图
|
|
外 观
|
酒店一面临路,一面向河,为营造幽静的民宿氛围,我们在大门的设定和大堂布局上,采取“藏匿”的方式,在建筑西南角设置入口,拾级而上入院,前院布了不少盆栽和黄菊,只稍走几步,便到大堂正门。
The hotel is facing the road and facing the river on the one hand. In order to create a quiet residential atmosphere, we adopt the way of "hiding" in the setting of the gate and the layout of the lobby. In the southwest corner of the building, we set the entrance, step up and enter the hospital. There are many potted plants and yellow chrysanthemums in the front yard. Only a few steps, we go to the main entrance of the lobby.
|
入 口
|
|
大 堂
|
大堂内部也是一眼望不到底,琴室居中,酒店衍生系列产品,如茶叶「茶云阁」、书店「云书院」、特色餐饮「南湖小院」、酒店用品「云旅优客」,各安一侧。
The interior of the lobby can not be seen at all. In the middle of the piano room, the hotel derivatives such as tea "Tea Cloud Pavilion", bookstore "Cloud Academy", special catering "Nanhu Small Courtyard", hotel supplies "Cloud Travel Excellent Guests" are on each side.
|
走 廊
|
二三层为酒店客房,走廊曲折蜿蜒,墙面上挂了一些开封本地名胜摄影之作、清明上河图剪纸、朱仙镇木板年画等。
The second and third floors are hotel rooms with winding corridors. On the walls, there are some works of Kaifeng local attractions photography, paper-cut drawings of Shanghe River in Qingming Dynasty, and wood-board New Year paintings of Zhuxian Town.
|
客 房
|
客房延续大堂休闲自然的风格,在功能设计上,更贴近人性化,如卫浴、灯光智能控制、家具等,为入住者带来更好的体验感。
Guest rooms continue the natural style of lobby leisure. In terms of function design, they are closer to humanization, such as bathroom, intelligent lighting control, furniture and so on, so as to bring better experience to the occupants.
在材料选择上,既有老木头、稻草漆、竹、原石、瓦片这类粗粝又天然的材质,也有玻璃、金属这类现代材质,结合垂下的竹帘,清透且幽静。
In terms of material selection, there are not only coarse and natural materials such as old wood, straw paint, bamboo, stone and tile, but also modern materials such as glass and metal, which combine with the pending bamboo curtain, clear and quiet.
空间中以大量的白色为主,辅以木色,和少量黑色,悠然舒适之余又显古拙厚重。
Space is dominated by a large number of white, supplemented by wood color, and a small amount of black, leisurely and comfortable, but also show ancient and heavy.
|
后 院
|
一层各个空间皆有通往后院的小门,后院植许多花草,依餐厅墙下,一排浅浅的静水,微风徐徐,波光粼粼。坐在院子里,远远模糊传来河对岸悠扬婉转的豫剧唱腔,颇有一番雅士闲趣之意。
There are small doors leading to the backyard in every space on the first floor. Many flowers and plants are planted in the backyard. Under the dining room wall, a row of shallow pools are made, with gentle breeze and sparkling light. Sitting in the courtyard, far from being vague, the melodious and tactful singing tune of Henan Opera across the river has quite a sense of elegant leisure.
- E N D
-
郑 州 稻 禾 装 饰 工 程 设 计 有 限 公 司
Tel:186 3853 8955
地址:郑汴路英协广场B座8009室
客服
消息
收藏
下载
最近































