查看完整案例


收藏

下载
意式交错,形归自然
Three matches one by one struck in the night,
The first to see the whole of your face
The second to see your eyes
The last to see your lips
And the complete and utter darkness to remember them all,
While holding you in my arms.
、 设计理念 、
本案是现代感较为浓厚的作品,业主倾向性较为冗杂,但同时又想体现个人的生活理念。因此整体的设计是虚无与底蕴的碰撞,简单与深厚的交融,“沉”与“敛”是设计的中心概念。家居软装采用意式现代家具,形成本真但精致的空间环境,折射元素融合的品质生活。
车库
ASTON MARTIN 本身就是一件艺术品,设计师将地下停车场作为作品来展示,打造为独立的艺术空间。顶面采用黑镜来提升空间的层次,营造错综复杂的视觉感。墙面利用软膜天花搭配灯光来形成干净的灯光效果。
业主大部分从停车场入户,由此设计师将鞋帽间设置在停车场入户处,搭配艺术挂画,形成展厅艺术效果。
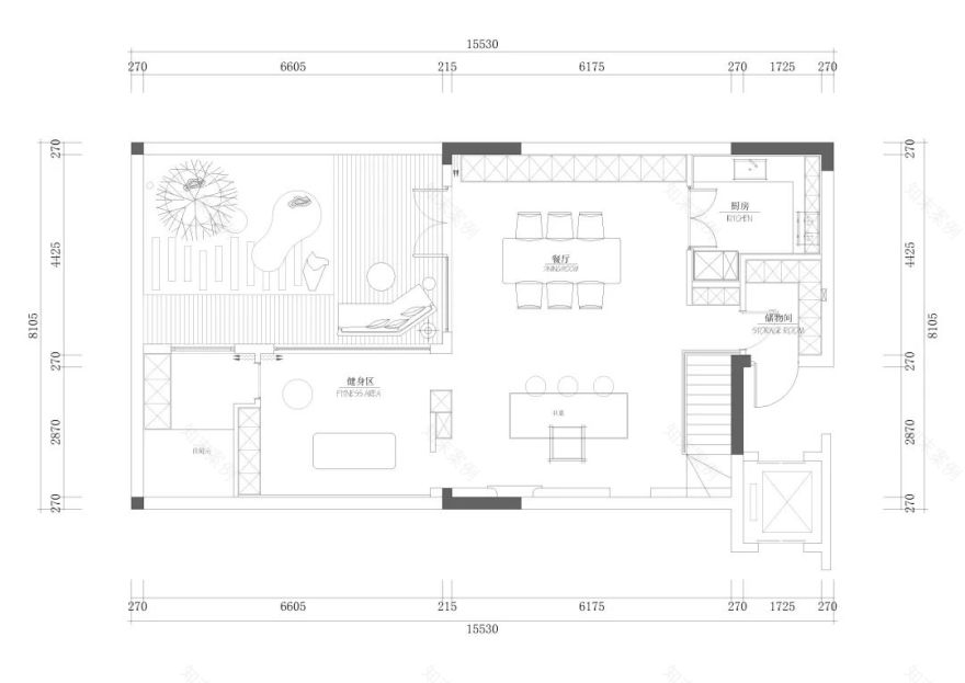
负一层
首先,潮湿是地下室的第一问题,设计师打破原本封闭的天井,形成室内上下通风,以此解决负一楼潮湿问题,同时在天井处设立独立景观,加强空间灵动感,打造天光乍破的盎然生机。旁侧的健身房放置通玻,可以看到景观全貌。
其次,地下室的采光较差,因此设计师地面采用 900x1800 素色大板砖来构成整体的采光感,使整体空间干净整洁。改变以往四层楼别墅的常态动线,将厨房、餐厅下移至负一楼,品酒区、钢琴区留至一楼客厅。访客到来时能极大扩展空间变动,提升每一层楼的功能使用性。
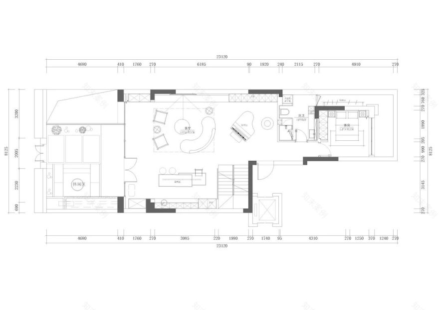
一层
电视墙的设置用弧面绕梁来柔化线条,消除了梁柱的视觉冲突,直线的横错交替,与现代主义碰撞后,形成了独有的精致简约,又高贵奢华的气质,弥漫出意式的理性色彩与人文关怀。现代意式拥有古典和现代两张迷人的面孔,左侧的钢琴和艺术陈设,把艺术与生活功能结合得十分紧密。
意式现代的风潮往往是一种生活态度,下沉式围坐环绕水景,符合当代人对生活环境的需求,低调内敛、有时喜欢独处和深邃思考,追求一个简单精致的生活空间。
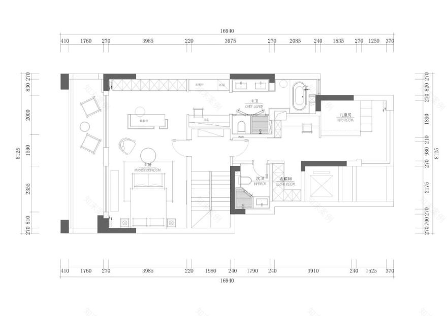
主 卧
二楼的私人空间与一楼的对外空间是风格区分开的两部分,一楼色彩明显区块化且色调偏暗,米黄与黑色营造克制与隐忍的氛围感,二楼将日常生活的合理需求与艺术的典雅浪漫并存。整个主卧空间,配合原木色,墙面选择,增加空间的层次感。优雅和舒适的设计,又适应于现代生活空间。儿童房
米色和暖棕色相得益彰,意式手法下用线条彰示孩童的灵动,艺术本身是不断变化的活物,孩童的灵动彰映艺术形态的变换。
GRAPHIC DISPLAY
车库
负一层
一层
二层
平面图
项目类型:私宅
项目地址:成都市
项目面积:432㎡
设计工作室:原色原宿空间设计
ABOUT DESIGNER:LIU WEN PING 刘文平
原色原宿空间设计
· 首席设计师 · 刘文平
AWARDING——————
2018 年金腾奖最佳室内设计奖
2019 年入选“中国室内设计 TOP100”榜单
2019 年中国未来空间设计概念大赛新南地区一等奖
2019 年成都市建筑装饰协会资深住宅室内设计师
2019 年第十四届“金外滩奖”最佳概念设计
2020 年第十二届银杏金鸟奖入围金奖评选
2020 年度四川省室内设计精英选拔赛 TOP10 人物奖
中国室内装饰协会全国委员
-END-
客服
消息
收藏
下载
最近
























