查看完整案例


收藏

下载
一个人的自由自在是诗和远方,比诗更生动、比远方更亲近的,就是一家人的其乐融融。
这个坐落在武汉老城区的设计项目启动于 2020 年,落成于 2022 年。
别墅≠豪宅,后疫情时代,我们对居家生活的理解,有了新的语境,家人的陪伴、独处的自由、以及生活中流动着的岁月静好。
我们希望在有限的空间里,延展生活的无限可能。而本期改造项目是一座二十多年的老房子,潮气重,采光差,层高错乱、每层空间出现高低错落的地板完成面,上下不方便且每层之间行动也不顺畅,细长的房型只在前后两端有窗。这些先天不足的条件已经限制了我们的想象。
01、方案:神奇的“H”
坐标:武汉·汉阳
项目类型:老房改造别墅
建筑面积:310m²
业主需求:三世同堂 日常居住
老房子的空间逼仄,中间没有采光,黑屋子的压抑感带来的只有生活的焦虑。狭长的户型,导致空间利用率非常有限。
想要诗和远方,就得解决眼前问题,设计师首先考虑的便是解决采光和通透性。
如何让这个老旧的小黑屋亮起来?
设计师对旧房所有窗户及窗洞进行了改造扩充,充分利用两端的光源,让远离光源的中间部分,以楼梯为隐藏的界线,进行上下的连通。这样,整个空间以楼梯为中轴线,逼仄狭长的户型便成为一个神奇的“倒 H”,整个房子瞬间有了呼吸感。
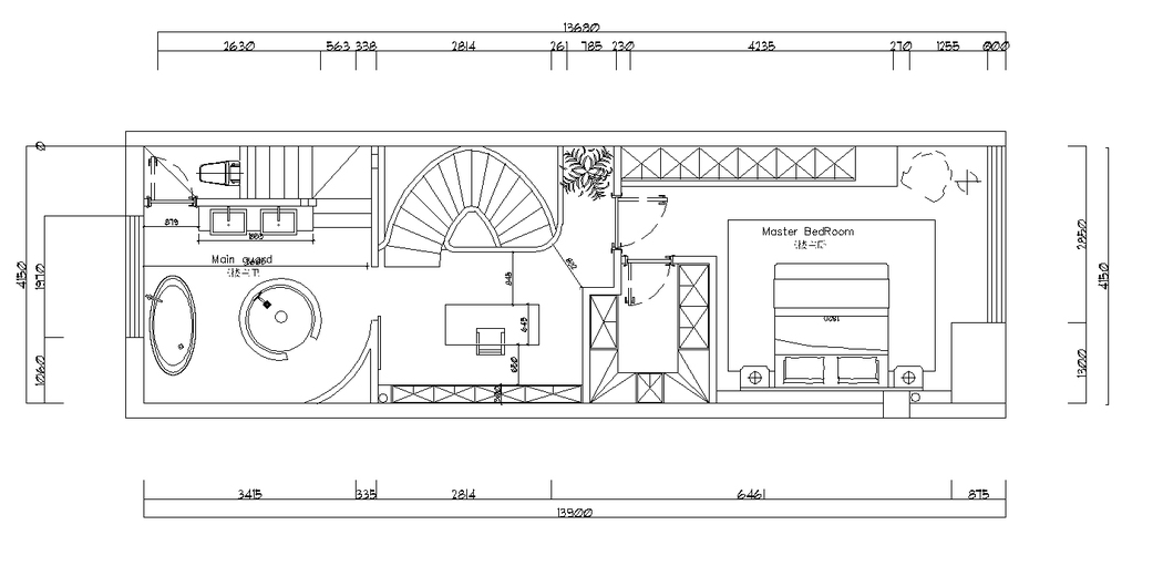
F1 平面图
F2 平面图
F3 平面图
以“H”宅设计进行延展,设计师的改造方案来了:
■利用楼顶的小天窗可以解决楼梯的整体采光,改造之前的楼梯是一个单跑直梯,后来经过设计调整修改为半旋转楼梯,结构上也做了一些改造。
■外玄关的扩展也让整个家多了过渡的玄关空间,同时也解决了收纳问题。
■餐厨一体的设计改变了老旧的分离状态,让使用空间尽量最大化。
■二楼主要由两个卧室构成,一个女儿房一个老人房。女儿房根据孩子的喜好设置成了日式床榻状态。
■三楼由三个空间组成、开放式的洗浴区(单独的马桶间)、书房及主卧空间。
02、实景:流动的空间
H 宅的设想,让房子活起来。阳光、空气,从窗外洒进,并从旋转的楼梯间流动开来,一家人对于生活的畅想,才慢慢拉开了序幕……
新的空间带来了新的生活,而一家人的生活才赋予了房子新的生命:
女主人爱烹饪,设计师给予了餐厨空间最大的解放;
男主人爱喝茶,我们在顶楼设计了一个舒适的阳光房作为茶室;
女孩喜欢安静读书的氛围,在女儿房有她最喜欢的和室;
老人的起居也得到了细致的照顾,套房式卧室有独立的衣帽间和卫生间……
新的生活,一切有了最好的安排!
微水泥不规则的肌理与流畅的旋转扶梯相呼应,或柔和或隐约,天窗透出的光与寂静的氛围交织出上下楼的动线。无装饰的空间往往对细节以及材质更为重视,感应灯使夜晚上下楼时更加方便。
旋转的楼梯连通整栋楼,灵动而舒展;上下的通道借着天窗,点亮了全部空间。
原先局促的厨房被打开了,餐厨一体的开放式厨房除了让女主人更从容地享受烹饪过程,还为家人的聚餐提供了一个宽敞明亮的场所。
光线透过纱帘柔和的引入室内,日式床榻设计,使身处空间之中的人内心易于获得安静,远离声色犬马。在榻榻米下也有大量的储藏空间,也是可躺可卧的自由空间。
视觉中没有华丽的元素,结构感和留白赋予了沉静的高级感。几处圆弧形的元素相互呼应,简洁而具有设计感,沉淀岁月的美,淡泊浮华。浓厚的木制,素净的色调和质感呈现原生态的质朴美感,可见忽隐忽现禅意之美。书房里独具高级的松恐感。
整个浴室空间采用微水泥,统一的材质使得空间更加纯粹。微水泥自然的光泽呈现出内敛的感官效果,搭配深灰色台面,整体和谐相容又富有光滑与磨砂的反差感。
03、初心:副歌与主旋律
生活?度假?究竟是生活主导,还是享乐至上?都说柴米油盐是生活的主旋律,难得的是生活中的一份闲适。闹中取静的尺度,不是逃离,不是妥协,而是家人在身边,远方就在眼前。
▲效果图:理想的生活
▲施工过程&花絮
项目改造历时两年,最终交付了一个完美答卷。是生活,亦是信念!
| 项目信息|
项目名称:1.96H 宅
项目地点:武汉·汉阳
项目类型:老房改造别墅
主案设计师:王凯西
公司团队:吾同设计
摄影:王语墨
文案编辑:城市建造家
-END-
以上项目素材由吾同设计提供,我 houzhichuanmei87545088 百度百家号、搜狐号、网易号搜索“城市建造家”
客服
消息
收藏
下载
最近

























