查看完整案例


收藏

下载
我们在城市的喧嚣中待久了,
总向往那清风白云下,
翠竹碧水间的诗意假期。
楼盘:
天马高尔夫
面积:600㎡
风格:现代简约
天马高尔夫别墅位于上海佘山宁谧山林之中,依山傍水,水光浮翠,倒映林岚。
本案是一处度假别墅,业主是一对来自异乡的夫妇,被这片天然之景所触动,从而购置下来用作度假休闲的居所。
缘于度假休闲的用处,业主在需求上要求并不多,装饰无需过多,氛围舒适休闲,窗明几净,能让人自由放松便可。
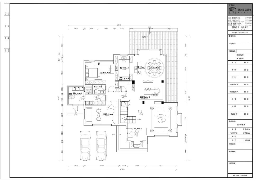
// 结构改动 //
#
进门改动:
原始北进门直接不留隐私,占据玄关位置;改动后移至侧边东进门,留予合适的空间还原玄关位置。
# 楼梯
改动:
原始楼梯过宽,割碎过道与客厅空间,改动后内收空间,将更多空间还给客厅与过道,动线更宽阔舒适。
设计平面图
<< 滑动查看下一张图片 >>
客厅
休闲度假的客厅,不必局限于单一的形式,设计师正是深谙此道,放弃了形式化的设计符号,挖掘情感深处的不同意象。
不做常规奢靡吊灯的设计,巧用无主灯设计,配合高窄落地窗引光入室,衔接内外景致,让光景流转于两面之间。
打破传统做新设计,摈弃电视墙,平行放置沙发,使客餐厅区域视觉上更宽敞通透。
而客厅休闲一角的灵感来源于业主夫妇的爱书之好,也是源于摆脱世俗喧嚣,用简约的桌椅和书柜堆砌出一处休闲角落。
慵懒午后,看书也好,小憩发呆也罢,亦或是和朋友一起享受下午茶,尝一口酥软点心,呷一口好茶。此时此处无须刻意,独处、共享两相宜。
餐厨
打开封闭式厨房后,使餐厅与中西厨得以通透串连,各司其职又各自为主,相互成为盈满欢笑声的前后端景。
节日的时刻里,餐厨空间的烟火不再忙碌,变得富有仪式和治愈,柴米油盐伴着轻松自由的味道,平凡又美好。
影视厅
敞亮开阔的窗,将阳光和绿意引入室内,使居住空间与自然空间相依相融,让生活更接近自然的生机。
阅读区
沿梯踏步而上,二层楼梯平台处设立一角舒适阅读区,休闲单椅搭配靠墙小榻,以墙作书架,延伸了空间的高级感与时尚感。
破一面屋顶三角形大落窗,联动上下,通透,带来明亮采光。
闲暇之际,捧一本书,倚坐在飘窗边静静阅读,享受偷得浮生半日闲的悠然自得。
书房
书房嵌于主卧的套间中,双面采光的书房空间,通墙的书架搭配简约的书桌椅,一株千年木,清新简约。
卧室
卧室的空间褪去繁杂的造型和修饰,简单的线条描摹出纯粹的休息环境。寝居与自然的间隔被简化,人随着建筑一起自由呼吸。
月上柳梢时分,静下心,感受深夜的寂静,享受一夜好眠。
沐浴或许是现代人生活中为数不多能用于冥想的时刻。一个干净舒适的卫浴空间于业主而言,正是度假时刻里必不可少,躺进浴缸,城市的喧嚣已慢慢走远,慵懒的泡一个澡,枕在大山的怀里呓语入梦。
在城市喧嚣之外,往自然里安置生活。
如林语堂曾写在人生二十四件快事中描述的那样:“宅中有园,园中有屋、屋中有院,院中有树、树上见天,天中有月,不亦快哉!”
设计主张
“人生的第二空间”,是个性、是爱好、是理想,是自在真我的空间表达和梦想呈现,兼顾别墅生活的多样性和个性化,完美平衡家庭空间与私属空间之间的关系,让每一位别墅大宅居住者拥有“共处悦他,独处悦己”的别墅生活方式。
做好选择 ,事半功倍
快来星杰
开启全新别墅生活
客服
消息
收藏
下载
最近




































