查看完整案例


收藏

下载
大豪山林别墅可谓是大虹桥最美丽的原生态美式别墅区之一,位于青浦区徐泾镇盈港东路 2588 弄,居于大虹桥徐泾别墅生态休闲居住带的中心。
由美国 JY 建筑规划设计事务所创造性地将东方的居住理念融入现代西方别墅设计中,更适合东西方人的居住理念。
整个别墅园区可以在一年四季的不同时间里都能欣赏到大自然四季更替的不同风景,真正体现出原生态的风貌,演绎了大豪山林别墅三分居住,七分养生的特性。
案例一
-Location- | Shanghai 大豪山林
-Area- | 面积 700㎡
-Style-| 风格现代法式
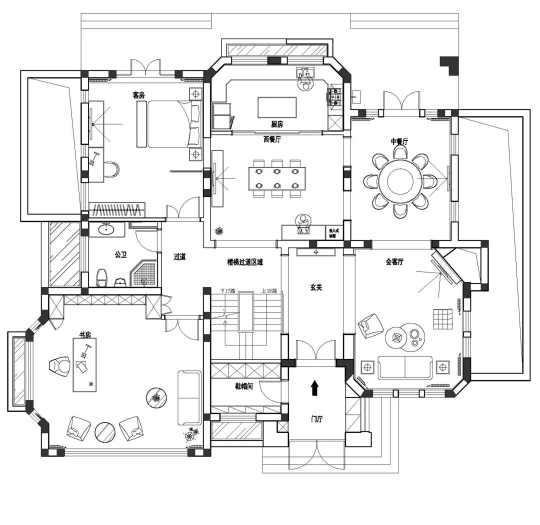
原始图一层
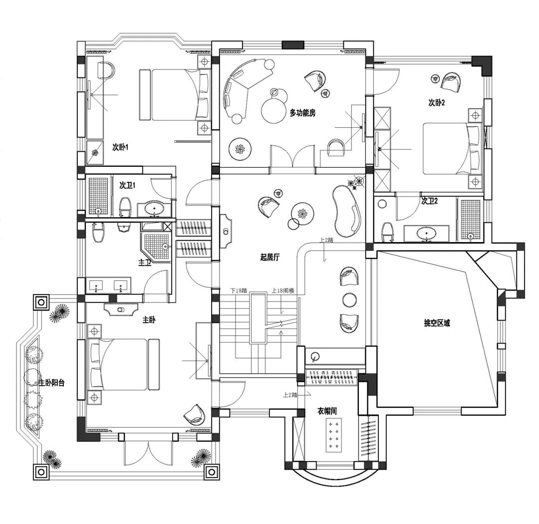
原始图二层
原始图地下层
左右滑动查看更多
以现代法式,展示时光的温润,勾勒生活的美好,承袭家的意义,让空间因生命而丰盈。
# 业主需求 #
本案居者是一个四口之家,儿女双全。希望厨房大一点,衣帽间大一点,希望有欧洲底蕴。
1F 层:茶室会客厅、12 人餐桌、客厅挑空、中西厨房、早餐区、卫生间、入户鞋帽间、一间房间。
2F 层:主卧衣帽间套房,书房、休闲区。
B1F 层:保姆房两间、专业影音室、开放式 KTV、SPA 间、雪茄房、德州扑克。
# 空间亮点 #
点击查看大图
业主希望有一个大一点的衣帽间,设计师通过变更进门方向,在入户两边设置通高鞋帽柜和一个独立衣帽间,配上换鞋长凳,不仅是实用功能上的满足,也是豪宅仪式感的体现。
设计师删繁就简的布局,将一处的空间做成了钢琴功能区和收藏品区,摒弃繁杂的设计呈现出低调奢华的生活细节。业主在闲暇之后可以陪伴子女在钢琴上弹奏美妙的曲子,为空间融入更多的生活元素。
设计师将原有封闭的传统楼梯改成开放的椭圆形艺术楼梯,通透灵动的玻璃质感,让业主在楼梯向上和弯曲时,它与眼睛一起共舞,成为整个空间夺目的焦点。
客厅设计为下沉式,满足居者对大空间的念想。一家人围坐,感受家的幸福和温馨。在软装上,设计师将业主内心对法式浪漫的憧憬在客厅中体现得淋漓尽致。灰白硬冷的硬装,搭配红黄蓝三原色的软装,无以言喻的和谐与浪漫。
案例二
-Location- | Shanghai 大豪山林
-Area- | 面积 460㎡
-Style-| 风格 简约欧式
# 平面布置 #
平面布置一层
平面布置二层
平面布置地下层
向左滑动查看更多
简约欧式,是一种慵懒的优雅,极具格调,通过搭配以及玻璃金属质感的点缀,打造轻松的空间氛围。
# 业主需求 #
本案居者是一位互联网行业企业家,平时工作繁忙却也想拥有一方属于太太和自己的舒适天地。
居者和设计师反复多次的沟通和交流,希望空间给人以放松的舒适感,最终一致协商确定将简约欧式作为本案的主风格。大量运用白、咖、灰为主色调营造简约现代的氛围。空间内穿插玻璃、镜面、金属元素,让平淡的空间显得更为出彩通透。
原外立面的石材整体偏红色,窗洞较小,设计师考虑到和室内风格的匹配,将别墅建筑外立面也作了一些调整与改造。原先偏红色的花岗石改为米黄色,所有的窗、洞尺寸也做了合理化的调整,使外观既保持了良好的采光又呈现出低调、内敛的简欧风格。
# 空间亮点 #
点击查看大图
一楼建筑原始结构从客厅入户,会客厅与餐厅之间还夹杂着一个楼梯,空间显得压抑且不完整。
设计师更改了入户大门位置,将西进门改成了北进门,同时入口设置玄关走道,客人一进门就能感受到惊艳的纵深感。
将楼梯位置移到玄关边上,用镜面玻璃增加空间的开阔感,客餐厅之间以休闲厅过渡衔接。
设计师在楼梯的设计上也花了许多功夫。将原始直跑楼梯改为旋转楼梯,完美圆弧线,释放整体空间,在考虑美观的同时增加楼梯舒适感。
利用侧面铁艺屏风来做走道和楼梯之间的一个光线的互通,屏风上方设置采光窗口,保证楼梯处采光充足,不会带来压抑的感觉。
透过铁艺屏风踏入会客厅,映入眼帘的是整个大面积的户外景观,拉开窗帘,四季流转的信号便能第一时间传达到这里。
案例三
-Location- | Shanghai 大豪山林
-Area- | 面积 554㎡
-Style-| 风格 简约欧式
# 平面布置 #
平面布置一层
平面布置二层
平面布置地下层
向左滑动查看更多
与时俱进的现代设计让欧式风格变得华而不俗,在极具现代感的家具配饰和对色彩独有的把控下,让整个空间自由灵动又不失大气之息。
# 业主需求 #
本案居者是 60 岁左右的企业家,此套房为这个小区的第二套住宅,希望儿子及第三代小朋友都能住到一起,创建一个其乐融融的大家庭。
本案居者平时很忙,几乎没有时间在家,所以他需要一个相对轻松又彰显自已身份的家居格调。
设计师为更好地帮居者打造理想家,设身处地感受居者的生活,多次和业主一起去市场进行材料的调研,感受他们的喜好以及对色彩的偏向,最终定位简欧风格。
高挑空客厅,从墙面、窗帘一直延展至天花板,线条流畅利落。细心挑选的家居配饰,冷暖色的交替搭配,蓝调稳重,红调热情,视野内收尽空间层次感。
居者喜欢大空间,大空间设计的西厨区提供足够的空间使主人与亲友能在此侃侃而谈。金属灯具的精致,更彰显轻松简约的空间氛围。
书房的欧式风格备显浓郁,空间感很足。整面木饰柜子里装满藏书,还要出现在书房的跑步机,居者身体和心灵在这片专属的私人空间都得到了放松。
家从来都不是简单的风格而言,每一位居者都有不一样的喜好和需求。他们的经历、思维、眼界、习惯各有不同。
星杰全案设计依托国际化的设计理念和独创的海派精工体系,秉持严选产品的标准,通过数字化工具,为客户实现“专业设计、价格公道、预算可控、工期有保障、效果可还原”的装修体验。
专业设计师团队,坚持原创,300 位设计大咖平均 12 年以上的别墅大宅设计经验,揽获多项国内外设计作品大奖。通过系统化设计能力及高度还原,为高净值人群定制个性化空间。
21 年专注高端家居服务,通过对超过 15288 名精英业主生活方式的理解,推出并不断迭代星杰全案,让用户体验“专业、时尚、省心”的一站式私宅定制服务。
别墅生活,从星杰开始。
———— READ MORE
>>>>>
(点击图片查看往期文章)
长泰西郊 3 套 700㎡案例
上海桃花源 3 套 700㎡案例
客服
消息
收藏
下载
最近












































