查看完整案例


收藏

下载
为理想的现实生活,才会生意盎然。
-Location- | Shanghai 上坤明月
-Area- | 面积 420㎡
-Chief Designer- | 设计师 刘时洋
-Style- | 风格 现代简约
居者一家三口,视野和审美比较的西方化,喜好与友人聚会、度假旅游,热情好客。需求一处简约大方之余,充满时尚感,能满足日常居住与度假休闲的居所。
| 结构改动 |
STRUCTURAL MODIFICATION
原始结构进门后墙体较多,视觉隔绝,层高稍低,有限空间带来感官的压抑与不适,且原始结构面宽大于径深。
将多余的墙体拆除,大面积吊顶,舍弃主灯,采用无主灯设计,最大化地打开空间与视觉感官,将客餐厅区域糅为一体,巧用原始面宽的建筑特性,设立大客厅,大开落窗,揽景入室。
| 餐厨客厅一体化设计 | INTEGRATED DESIGN OF KITCHEN AND LIVING ROOM 基于居者会客与聚会的日常需求,开放式的空间莫过于将餐厨客厅一体化设计。
让中西厨在一线之上,各司其职高效兼顾居住需求与生活情绪,转折是开放式的大客厅,将主要的生活社交的交流空间、客厅与餐厨串联,设为开放式的布局,自然而然的让空间功能互交。
巧用面宽大于径深的独特优势,在完美解决纵向空间感受与结构性的问题之余,开一面将户外美景揽入室内。让人无论在厨房还是餐厅抑或是客厅,开帘即见晨曦暮阳,春风秋雨。
把握空间思维与造型,就要把握住节奏,舍弃大主吊灯,埋入平衡走向的线灯,沙发简约有序的摆放报以邀请随意的姿态。窗外景与室内似有若无的互交,不再单独的空间开始拥有弹性,美与舒适的旋律应运而生。
| 极致的空间利用 | EXTREME SPACE UTILIZATION 过于饱满的空间容易带来拥挤感,最佳解决办法莫过于解放空间的“体量感”,最大化的视线通透,打开空间。
摒弃多余的装饰,打破传统兼顾各个使用功能区的做法,巧妙利用素色反客为主,弱化界限抛开拘谨,让空间回归自然开放的状态。
| 冷暖对比色与材质 |
COLD AND WARM CONTRAST
简约风格少而精,随性而不刻意。
大面积黑、白、灰的交织使用,在规律的色系中感受经得起视野协调的推敲、包括功能与细节,同时,以跳脱的几抹黄其中挑逗视觉,冷暖对比,生动与趣味性随之而来。
不做繁复饱满的造型,用简约大方去凸显居者的个性与时尚感。冷硬大理石、通透玻璃、低奢金属,材质婉转低调递出空间层次感。
| 恰当的留白 | LEAVE BLANK 空间,作为生活的容器,需留出呼吸的空间,才能让未来更有温度。结合居者大面积吊顶与遮盖梁的需求,最大化将吊顶做高,同时留与素净的白,从视觉上扩大空间,无中生有。
卫生间则不单做单调的素白,反其道而行之,白色纹理大理石自然随意的点缀其中。
让空余的白留与家的成长。
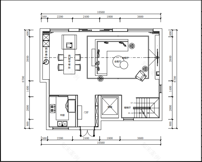
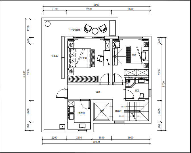
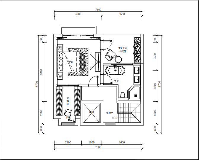
设计平面图
<< 滑动查看下一张图片 >>
—— DESIGNER PROFILE >>>>
CHIEF DESIGNER | 刘时洋
- 主任设计师 12 年从业经验 -
中国室内装饰协会设计师
国家注册高级室内设计师
上海市注册高级设计师
2016 年 APDC 亚太室内设计精英邀请赛入围奖
2015 年度国际空间设计大奖 艾特奖 入围奖
设计理念:空间设计源于生活是一种艺术表现形式,是一种文化,是对生活方式的完美诠释。
———— READ MORE
>>>>>
(点击图片查看往期文章)
地下室功能区规划
350㎡北欧风
客服
消息
收藏
下载
最近


































