查看完整案例


收藏

下载
“你如果问我,人们应该如何生活才好呢?我说,就顺着自然所给的本性活着,像草木虫鱼一样。”
- Location- | Shanghai 兰乔圣菲
-Area- | 面积350㎡
-Chief Designer- |设计师 沈兵
-Style-| 风格 北欧现代
本案以自然北欧风格为主,设计上的主要精力在改造整体空间规划上,贴近居者生活,让其更具生命力和延展性,呈现出趣味格调。
大量运用原木与温馨的白色调贯穿于空间之中,自然的纹理在空间中肆意流通,带来只属于家的温润质感。
踏入玄关,圆润云朵灯饰散发的昏黄光线,化解石岩板背景的硬朗,自然的纹理为整个家奠定了温馨自然的基调。
客厅呈方正、挑空的状态,放松、舒适。大胆舍去原始蒸火壁炉的设计,结合斜坡屋顶原生态自然感,加入藏书架,自然而然的将浓郁读书氛围引入家中。
餐厨延续原木主调,温馨不乏烟火气。
踏梯而上,楼梯中顶自开天窗,光线自上而下贯穿流动,实用至上之余自有一番格调。
二层玄关拓宽,柱体加入温馨夜灯,圆润弧形通透玻璃扶手的处理,让起夜或平日走动多了几分舒适明亮。
门洞、窗框多以圆润拱形设计,全不锈钢拉丝无缝接,光影流动,绿植清新淡雅,自成一处端景。
儿童房给人以活泼的色调,卫生间巧借主卧空间,双洗台盆,巧开天窗,采光通风一应俱全。
男孩房的布置清爽不失温馨,墙面自开一处框窗,四季流转的光景是好不过的装饰画。
主卧格局方正,线条利落大方,侧边延伸一处阳光房,衔接内外之景,视野层次错落,春风、夏荷、秋雨、冬雪,四时风光不与同。
主卫的折线设计贴切细化生活习惯,将实用功能性与风格毫无痕迹糅合,强调着空间中的温馨气质。
花园留出大片草坪,给予家中孩童快乐成长的空间。余下一池鱼,假山,青苔流水设于茶室一侧,品茗赏好不惬意。
而花园的阳光房茶室与餐厅、花园互为关联,进可高堂谈笑,退可东隅自饮。
三面大落地玻璃窗环抱内部,带来丰饶的自然天光,风动之下构筑出晴窗分茶的温柔光景。
空间中处处可见温润圆或圆弧形状,从里至外,糅合了原木的自然格调,将家的柔和温馨在无形中勾勒而出。
美好的居所不应局限于风格的定义,将居住者的需求转化为设计环节,才是真实贴近生活的样子。
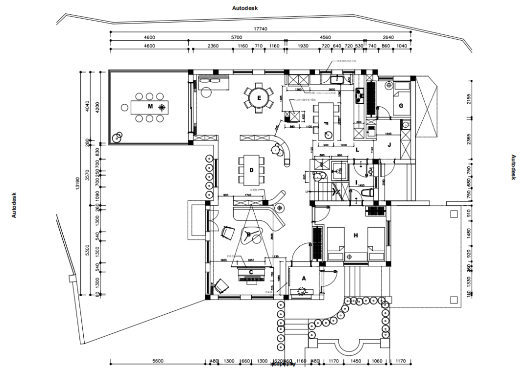
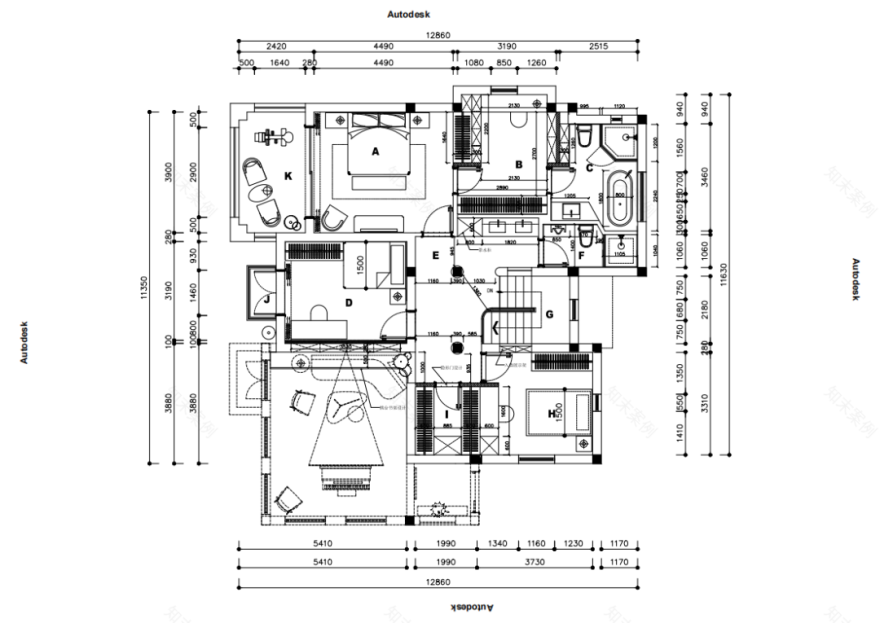
设计平面图
<< 滑动查看下一张图片 >>
—— DESIGNER PROFILE >>>>
CHIEF DESIGNER | 沈兵
- 首席设计师 19年从业经验 -
中国建筑装饰协会会员
上海市装饰设计协会个人会员
2015年通过江苏省中级工艺美术师职称考核
2015年及2016年连续两年被中装协评为年度杰出室内设计师
2018中国金鹰设计大赛作品《韵》别墅类金奖
设计理念:把实用功能与你的生活习性融入整体风格设计中,做到真正式的量身定制,合适你的才是最好的!
———— READ MORE
>>>>>
(点击图片查看往期文章)
地下室功能区规划
1200㎡新时尚前卫
客服
消息
收藏
下载
最近










































