查看完整案例


收藏

下载
简单利落能带来历久弥新的美丽。
- Location- | Shanghai漓江山水
-Area- | 面积 470㎡
-Chief Designer- |设计师 侯靖邺
-Style-| 风格 现代轻奢
本案居者为一对中年夫妻,三口之家。希望将家中的空间能最大化的利用,色彩相对干净利落,而材质上要求硬朗低调。
设计师以强调设计功能性与实用性作理念出发,以现代亦简亦奢的风格作基调,取消过于复杂的东西,最大限度的使所有家居设计陈列以最简单的方式呈现。
让其室内外呈现宽敞明亮的空间质感,线条与色彩单一但又不缺乏趣味。
正如前言所说,简单利落能带来历久弥新的美丽。
玄关
踏入玄关,简单利落的线条与纹理各司其职,开放式的空间搭配开阔的落地窗,让自然光线在室内穿梭自如,光影自在跳动。
客厅
客厅半挑空下沉式搭建,布局大开大合,大开落窗,以台阶做功能区分隔。
整体色彩对比鲜明而不跳脱,材质上采用木制、大理石、色硬包,不锈钢的刚柔结合,间中穿插通透的玻璃材质塑造干净的质感,打造流畅、浑然天成的线条感,搭配黄铜不锈钢和艺术沙发,整体折射出沉稳高贵的大气感。
整体布局干净明朗,大面积的落地窗将光线引入室内,舒适惬意。
餐厅
从客厅拾阶而上,是餐厨空间。
餐厅以石材作岛台,木制餐桌加上艺术灯的加持,整个空间氛围十足、仪式感满满。
卧室
卧室整体以优雅独特、简洁明快的设计风格为主,棕色的温暖与木地板的质感,营造整体空间庄重典雅,而不乏轻松浪漫的感觉。
家庭厅
二层家庭厅结合新中式风格作过渡空间,以一抹浓郁的水墨气质注入到空间之中,提升空间品质之余,其特有的东方韵味无限弥散。
结合了新中式的风格作为过渡空间,当一股浓浓的写意水墨气质注入到空间中,不仅可以大大提升空间品质,让东方韵味无限弥散,也让简化后的家居有了更加耐人寻味的美感。
阅读区
二层的茶室空间设立在落地窗边区域,开阔流动的窗景便是最好的背景,日过午时,捧一杯热茶,偷得浮生半日闲。
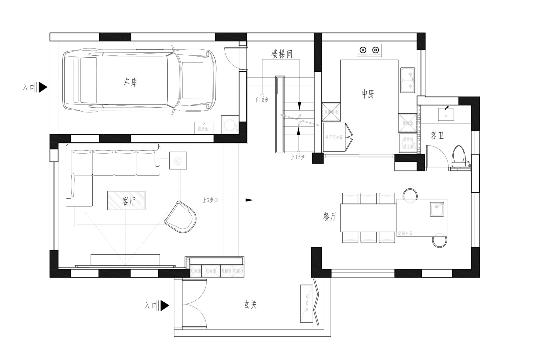
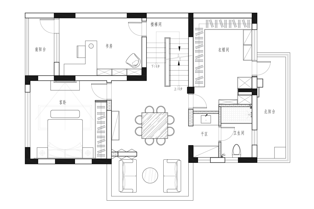
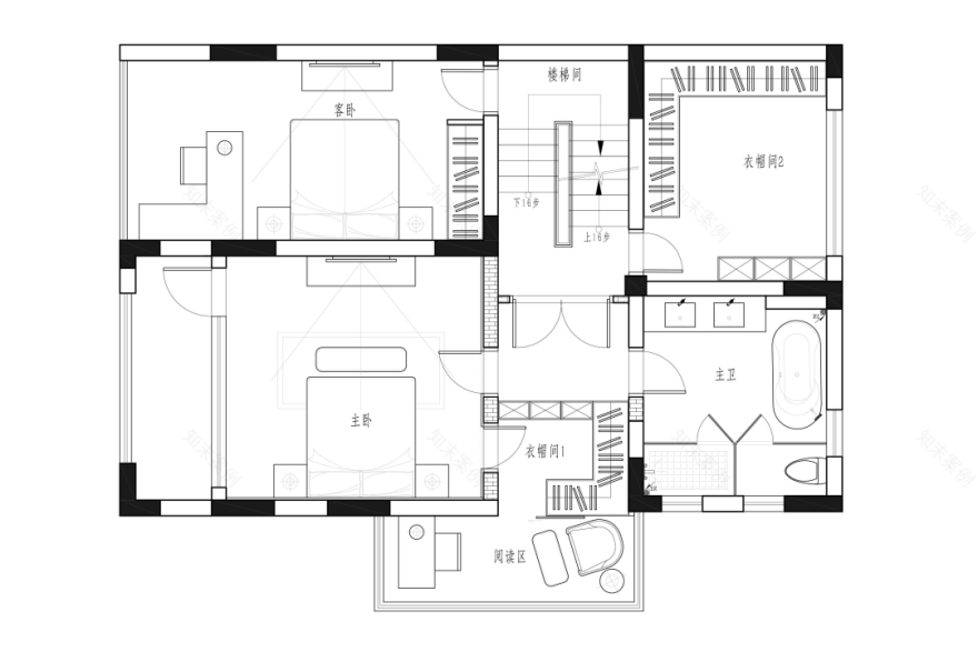
设计平面图
<< 滑动查看下一张图片 >>
—— DESIGNER PROFILE >>>>
CHIEF DESIGNER | 侯靖邺
- 首席设计师 16年从业经验 -
2008年大金杯室内设计师大赛入围奖
2013年中国国际空间环境艺术设计大赛优秀奖
2015年新浪儿童最具创意金奖
2018年大金室内设计师创意设计奖
2019年WAD世界青年设计师大会年度杰出设计师
2020年WAD世界青年设计师大会十大杰出设计师
2020年WAD世界青年设计师大会杰出软装设计师
设计理念:室内设计是建筑设计的延续,是室内空间环境的再创作。设计源于生活,细节成就品质。
———— READ MORE
>>>>>
(点击图片查看往期文章)
餐厨合集
玄关合集
客服
消息
收藏
下载
最近































