查看完整案例


收藏

下载
当白色退居幕后的时候,
绚烂的色彩方才渐渐崭露头角。
- Location- | Shanghai海域观园
-Area- | 面积 450㎡
-Chief Designer- |设计师 陶丽辉
-Style-| 风格 简约
本案的设计师在原有的结构基础上去涂抹所有的设计,以留白作设计主线与理念,贯穿整体脉络枝叶。
现代简约风格顾名思义,将所有的事物或细节简洁化,装饰偏少而视觉上简洁大气;外形简洁,功能性为主,强调室内空间形态与物件的单一性、抽象性,做到言有尽而意无穷。
对于留白,西方哲学家 Leonard Koren 曾是这样提及它的精髓处:“削减到本质,但不要剥离它的韵,保持干净纯洁但不要剥夺生命力。”
对于建筑设计而言,留白是无中生有;而空间设计却恰恰相反,留白是有中生无。是一种割舍了各种繁复以后,留给未来有机成长的余地。
生活亦然,摒弃繁复,不难发现眼前的空间一片富饶,这即是留白。
在本案中,无论是设计抑或色彩上,设计师回归生活所需,以原始的功能需求为主,用大片的留白去将这个家的故事细细道来。
在本案中,设计师不走寻常路,在色彩的搭配上反其道而行之,用充足单一的白去勾勒室内所有的色彩。
当白色退居幕后的时候,绚烂的色彩方才渐渐崭露头角。
室内以纯粹单一的白去作背景铺垫,丰富而不厚重的色彩在空间里显得更为灵动。
在室内外空间关系中,设计师以以一种开放性的方式去聚拢、拓展,拿捏隐私性与开放度之间的关系,收放之间,大开落地窗,打造通透的呼吸感之余,自然地将室内室外联动一线。
客厅对开落窗,餐厅临窗而置,墙凿一处小天窗,盈厚的白退其次位。
厚实的窗框将外景框进室内,成为一线流动的装饰画。春夏秋冬,光景变更恒流动,不变的万象灵动与美。
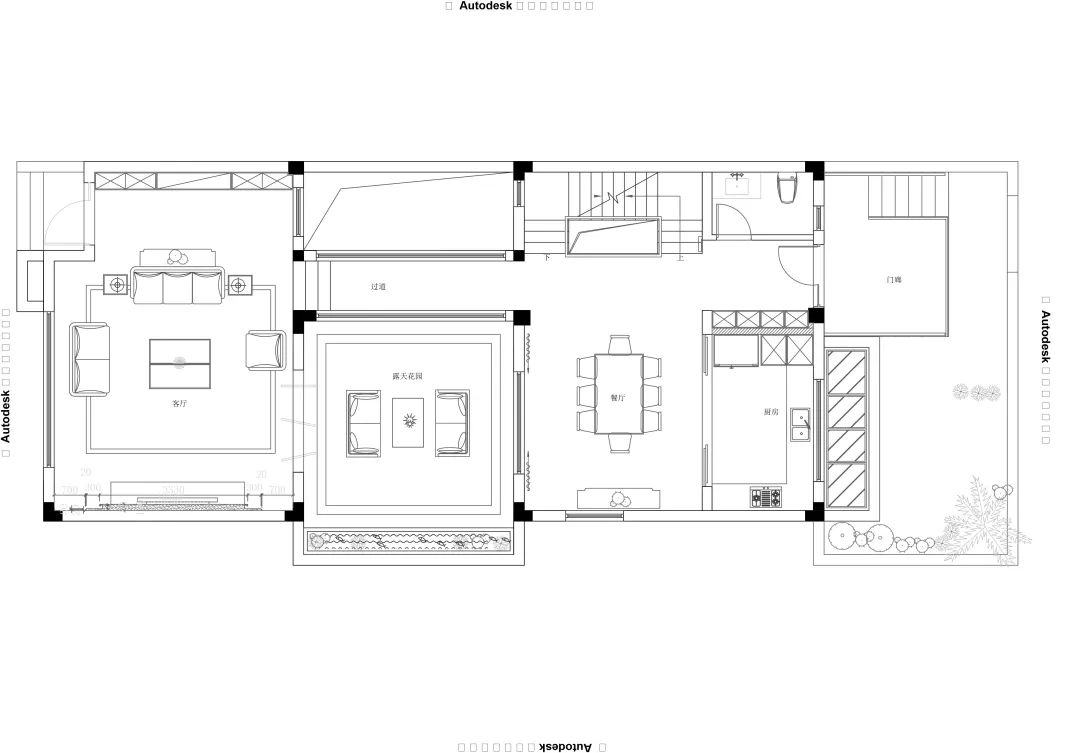
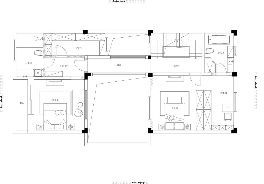
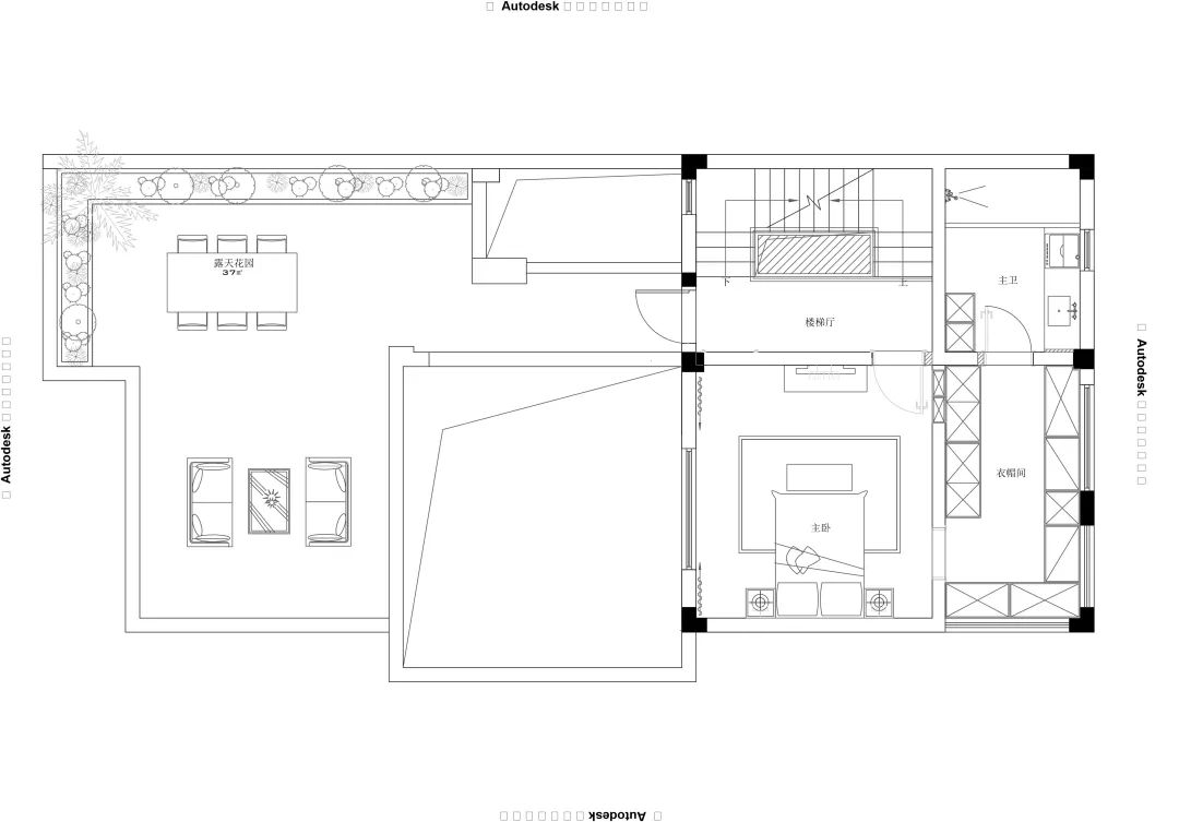
平面图
<< 滑动查看下一张图片 >>
—— DESIGNER PROFILE >>>>
CHIEF DESIGNER | 陶丽辉
- 首席设计师 15年从业经验 -
毕业于南昌大学
中国室内照明设计师注册执业证书
中国注册室内设计师
国家注册高级室内设计师
上海市装饰设计协会个人会员
中国室内装饰协会室内设计师
2017年度优秀员工
2017年度全国星杰设计师10强
2018年度全国星杰设计师10强
2019年度全国设计师10强
2020
年度全国
设计师10强
全国新锐设计师50强
卓越空间设计奖第二名
Hi-Design 第六届设计计师大赛优秀奖
第二届原创设计作品大赛最佳奖
第三届原创设计作品大赛最佳奖
作品多次刊登于精品家居/室内装饰/装修情报等媒体
设计理念:将生活之美注入居家生活。
———— READ MORE
>>>>>
(点击图片查看往期文章)
680㎡现代轻奢
650㎡简美
客服
消息
收藏
下载
最近































