查看完整案例


收藏

下载
在这里,所有的空间都不是零散孤立的。它们之间相互关联、有种微妙粘稠的关系,好比跌宕起伏的故事情节,牵连在一起,就是整个故事。
楼盘 / 泰晤士小镇
面积 / 680㎡
风格 / 简约美式
居住人口 / 夫妻 儿子 父母
空间结构 / 地下 1 层 地上 2 层带阁楼
本案业主为三口之家,女主人爱养花种草,儿子中学在读,家中父母偶尔来住。业主不爱张扬,更喜低调沉稳,欣赏自然间的轻松与高雅。
PART-1
原始的空间有着诸多的不合常理,比如:
1. 空间动线不合理;
2. 空间被分割,碎片化严重;
3. 地下室层高狭矮、采光不足。
PART-2
经过设计师重新塑造后,重新展现出亮点:
1. 空间利用率更高,功能区更完整;
2. 空间动线更明朗通透;
3. 空间层次感更强;
4. 满足所有人需求,生活方式更精致。
01 楼梯借位
户型缺陷:原户型的原楼梯正对大门,将门厅割碎,在视觉上效果别扭,空间上则造成了浪费。改造方法:设计师将楼梯巧妙靠墙侧移,进门豁然开朗,使得门厅完整,空间区域趋于完整明朗,而动线上更加舒适合理。
// 门厅 //
推门而进入,一眼是明朗典雅的门厅空间,复古的铁花楼梯蜿蜒而上。
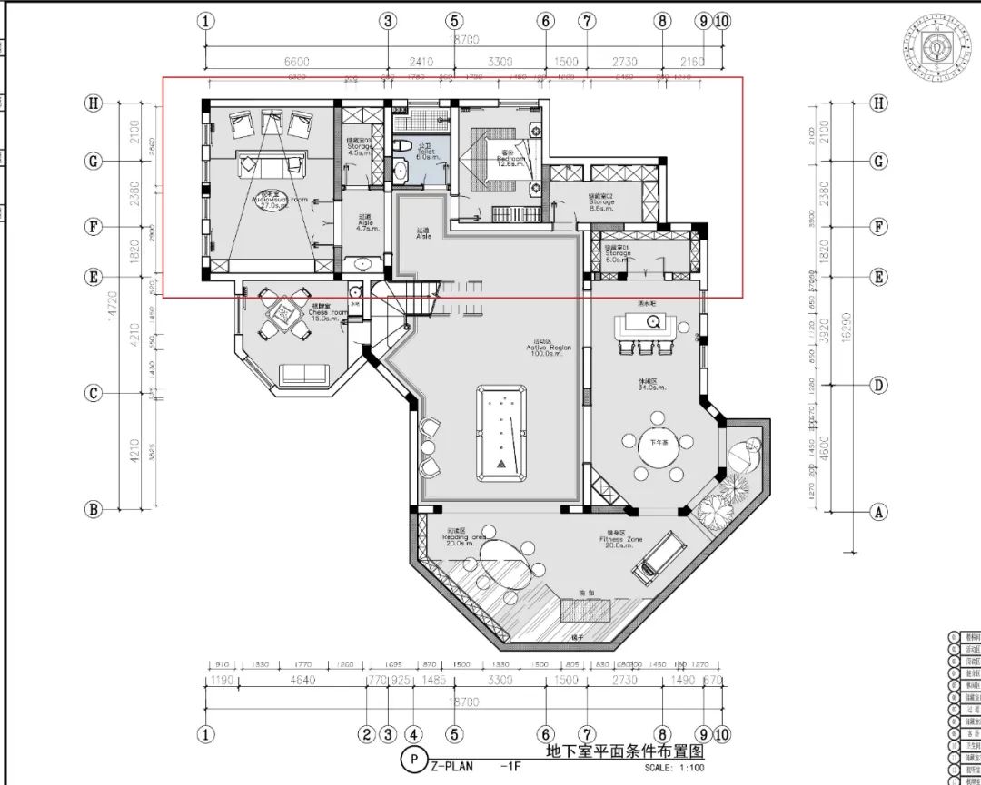
02 地下室采光
户型缺陷:地下室暗淡没有采光,由于错层缘由,虽面积宽阔,但层高矮小狭窄。
改造方法:设计师巧开半边天井窗,造一处通透阳光房,让整个地下室天光倾泻而入,采光大大增加;另一边则将多余占地的墙体敲掉,把原本压抑的房顶做了挑高,让压抑的空间瞬间变得高阔明朗。
// 地下室 //
设计师大胆巧妙的空间规划设计,将整个鸡肋空间彻底变成功能性满分的舒适区。清晨午后,充沛的阳光带来一室的明媚;雨夜晴空,莹莹星辰氲上天花。冬暖夏凉,闲暇时分,捧一杯热茶,一册小诗,静看天光流转。
// 地下室 //
03地下室功能区
户型缺陷:原户型自带地上车库与地下车库空间,地上车库空间已满足了日常需求,地下车库空间显得鸡肋无大用。
改造方法:因一个车库已满足需要,再结合业主父母亲偶尔家中小住的需求,设计师与业主的想法一拍即合,将地下车库改为酒窖、储藏室与房间区域,在地下室里增加影视空间等功能区,使得日常生活方式更加精致、丰富。
// 地下室 // 采光充沛的地下室区域幽静而明朗,影视厅、阅读区与娱乐区的加入,让家中的功能区更丰富完善,饭后闲暇之余,一家人静静在这儿看一部电影、品一杯茶,好不惬意。
// 客厅 //
04贴合需求、设计而居
在设计上,设计师空间中处处留有“彩蛋”设计,以尖顶屋顶作为设计主线,化尖锐为平淡,糅合空间细节一线牵连。客厅花砖与尖顶屋顶相互呼应,延续空间感,增加灵动之余,带来复古典雅的品质感。地下室阳光房玻璃窗户的设计亦是如此,继承主线,对应尖角造型与角型形状,一眼惊艳,充满设计感。
// 客厅 //
| 户外花园区域 |
庭院深深,女主人爱好养花种草,设计师在庭院中留出一亩地,专为女主人打造一方充满野趣的“秘密花园”。静谧的庭院里,晴时有风阴时有雨,看花草摇曳,听雨打芭蕉,处处怡人花香,醉人浪漫。
// 庭院 //| 软饰家装 |设计师结合男主人沉稳低调的个性,细细推敲搭配与设计,在家具的选择上,都选择了保留木质纹路、没有繁复雕刻的美式风格。深色纹理更加沉稳而与主人一家的美好特性契合,智慧知性而内敛、练达,虚怀若谷。
// 餐厅 //
// 卫生间 //
外面的世界各有精彩,回到家中,有属于我们的所欢喜所期待,也是细碎的朝朝暮暮里,细水长流的幸福温情。
—— DESIGNER PROFILE >>>>
CHIEF DESIGNER | 关晓宝
- 首席设计师 15 年从业经验 -
上海市装饰装修行业协会会员
上海市室内装饰行业协会会员
工艺美术师中级职称
2010 年 第八届中国室内设计双年展获 银奖
设计理念:体现生活艺术,实现艺术生活!为客户打造梦想中的家居生活!
点“阅读原文”为泰晤士小镇打 call 吧!
客服
消息
收藏
下载
最近






























