查看完整案例


收藏

下载
BUILDING
设计之美
///
星杰优秀实景案例赏析
THE BEAUTY
OF///
BUILDINGS
Millennium Falcon 千年隼,是星球大战里绝对的主角载具,没有之一。
1977年在「星球大战:新希望」中首次登场,由船长游侠索罗和忠实的大副楚巴卡驾驶,随义军们久经沙场。至今,千年隼号已经在太空中驰骋了41年,作为经典传奇成为科幻符号广为人知。
而今天,这艘千年隼号降落在家居设计领域,在设计师何国军天马行空的畅想设计中,以“停在美国街头的千年隼”为名,从情怀的文化维度结合最本质的物质维度,用极具科幻感、机能风的未来派设计,打造出科幻电影般未来空间。
从《星际迷航》到《火星救援》
从神州一号到神州十一号
从嫦娥奔月到“阿波罗”计划
多少少年在心底深藏着一个太空梦
搭乘宇宙飞船
自由翱翔太空
儿时的这个梦或许在这里可以实现
设计师说:
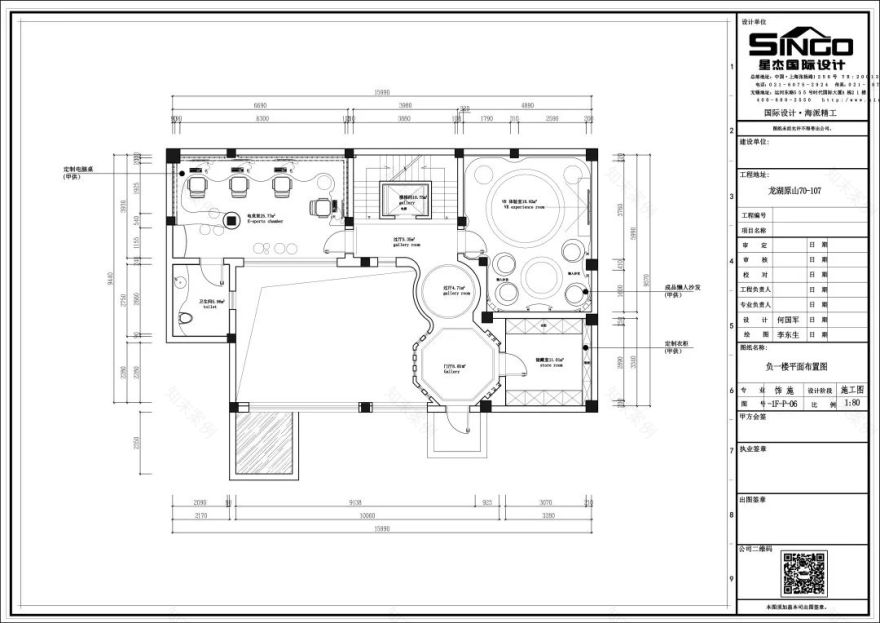
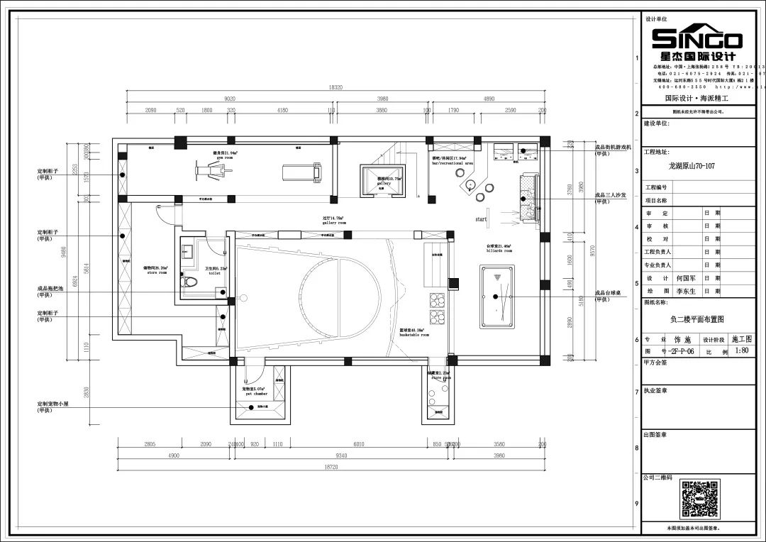
说到风格,我刚接到本案的时候,确实也纠结过。业主跟我描述的负一负二楼是作为重点设计区域,要有LOFT的感觉,功能需要室内篮球、电竞室、VR体验式、酒吧区、台球以及健身区。
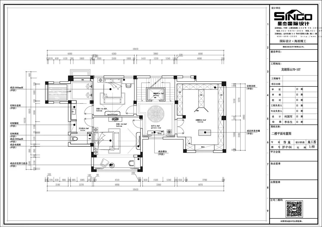
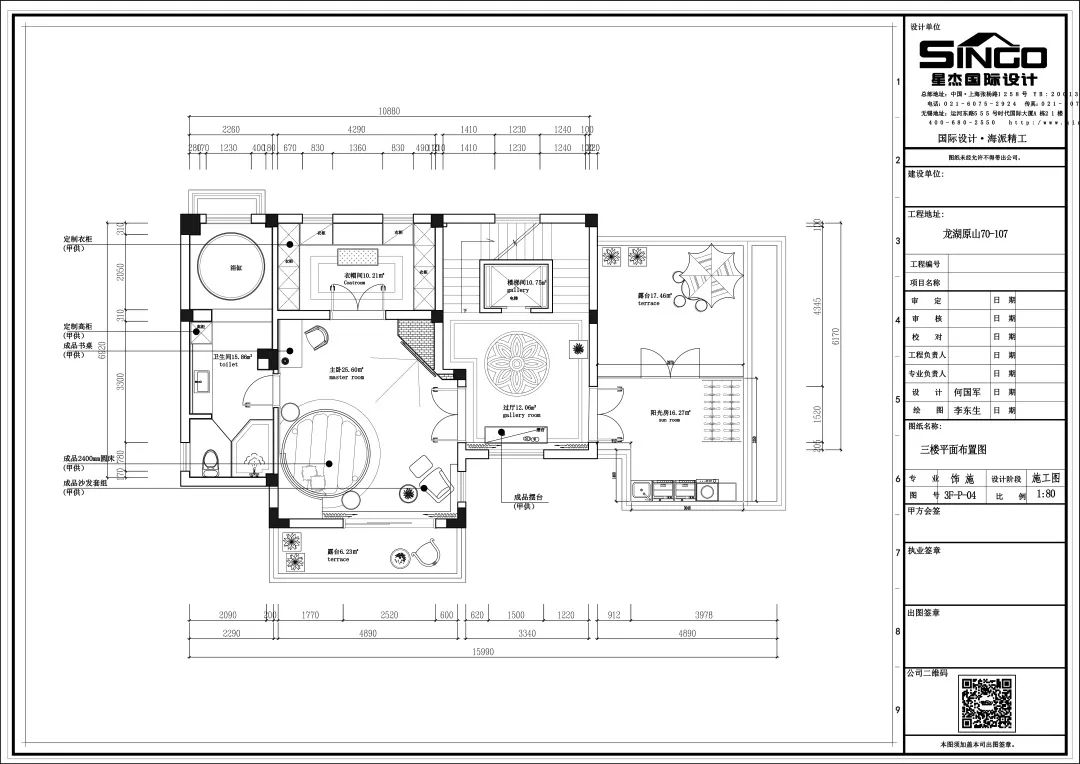
一楼二楼三楼又想做得摩登时尚,给我看过他们喜欢的家具。此时的我是纠结的,量房回来后迟迟未能下笔,后来,想到前期业主提到的想做一个星球大战主题的影视厅,给了我一个大大的思路,我何不做一个与众不同的设计呢?
我把客户的点都综合起来,把一个家从负二楼到三楼整个串通起来。一楼到三楼为美式建筑家居,负一楼为太空飞船内部结构,负二楼则为美国的街头。定义主题为“停在美国街头的千年隼”。我是一个有情怀的设计师,但是这个情怀不是我的,是客户的!
△ 负一楼
△ 负二楼
△ 一楼
△ 二楼
△ 三楼
停在美国街头的千年隼
龙湖原山
何国军
THE BEAUTY
///OF
BUILDINGS
坐落于龙湖原山的该项目,为创意落地提供了理想的土壤。
龙湖原山围绕“中西汇”的建筑理念,以“合而不群,卓而不群”的设计理念,于建筑风格、园林景观、建筑选材与设备等诸多方面,汇集世界精彩,打造新时代精品住宅的标杆。
太空的色彩
在古人眼中,夜晚的天空若无明月照耀,繁星点缀,便是漆黑的。而千百年后的今天,科技伴随着时间飞逝迅速发展,人类的视野早已透过那层看似深不见底的漆黑屏障,看到了黑夜之外的绚丽色彩。
宇宙更像是画家的调色盘,又或是无意间打翻的颜料瓶,各种色彩混在一起,形成了一幅幅陆离斑驳的作品。
时而深沉如蓝色。
蓝色是天空,是水,是空气,是深度和无垠,是自由和生命,蓝色是宇宙最本质的颜色。
永恒而持久,简洁而明快的蓝色色调,它暗示着日暮时分的天空,提供给人沉思的机会与慰藉。
在蓝色的包围中,对自我身份和宇宙起源进行思索,静谧沉默愈发彰显典雅气质。
时而活跃如橙色。
橙色代表时尚、青春、动感,有种让人活力四射的感觉;炽烈之生命,太阳光也是橙色。
在设计师何国军看来,橙色,更是自由的象征。
德国诗人里尔克在《致俄耳甫斯的十四行诗》里对少女说:“跳橙色之舞。”
考虑家居的视觉效果,高饱和度的橙色,搭配冷色调的白、墨绿、藏青等中和一下便能显出层次感。
橙色的应用成为何国军空间设计中的致敬之作——克劳德·莫奈的日出、玛莎·沃尔特的遮阳伞、格鲁吉亚·欧姬芙的红罂粟,它还在亨利·马蒂斯的作品中变得狂野而抒情。
太空的温度
宇宙的温度,从可怕的严寒,到难以想象的高温,很难用一个精确的数字来形容如此玄妙的空间。
就像人和人之间的距离,不可以用物理层面的刻度来衡量,只能用心来衡量。
秉承着对宇宙空间的思索,设计师在千年隼号内部设计了足够彰显温度、沟通情感的室内篮球、电竞室、VR体验式、酒吧区、台球以及健身区。
整体空间因为具有温度的设计开辟了更具拓展性的功能性,挥散汗水、释放激情,自由翱翔的太空梦一步步成为现实。
再来欣赏几张“座舱”内的未来美景——
从人类第一次尝试和太空建立联系,总是因为勇敢在史册中书写姓名。
当停在美国街头的千年隼横空出世,背后所庆祝的勇气和决心,亦让人所动容。
徜徉光影变幻,感受多彩世界。
设计师个人简介
滑动解锁更多帅照
毕业于天津美术学院环境与建筑艺术学院
2017年进修于日本东京艺术大学“桥本和幸”设计研究室
2018年进修于德国魏玛、德绍包豪斯(Bauhaus)设计学院
设计理念:
源于传统,更要突破传统,不仅要将自由、创新的理念值入生活空间,更能把客户的需求用心转化为现实,为客户打造一个柔和温暖的家。
专业强项:
根据客户的物质和精神生活需求,改变室内空间视觉和周围的环境,从概念到细节,实现色彩与材料的协调和最优化。
设计感悟:
比起夸夸其谈,我更喜欢踏实做事。我一般都是先根据客户需求、项目性质,确定设计的切入点,从概念到每 一个细节慢慢推进,最后实现落地。人在空间中的感受 是全部设计工作的核心。风格、材质、色彩只是设计手法而已。
获奖经历:
2019年获得中国住宅设计精英榜“全国10大住宅设计新锐奖”
2018年获得“设计源·世界观”| 2018年度设计精英人物
2017年获得“欧派杯”室内设计大赛“全国百强设计师”称号
2016年获得第七届中国国际空间设计大赛(中国建筑装饰设计奖)优秀奖
2015年获得“中国设计星”华东区入围奖
2014年广东国际设计周被评选为“为中国设计发声”精英人物
2012年荣获中国陈设艺术大赛优秀奖
2007年荣获长三角室内设计大赛入围奖
星杰设计
更多全案设计服务
请扫码联系客服
精选文章
长按扫码关注
星杰无锡小程序
客服
消息
收藏
下载
最近











































