查看完整案例


收藏

下载
什么是幸福?
那便是一家人在一起,
和和美美,简简单单,
一日三餐,不慌不忙。
设计案例
- Location- | Nanjing长岛观澜
-Area- | 面积 550㎡
-Chief Designer- |设计师 陆吉
-Style-| 风格 现代中式
在本案中,业主家庭三代同堂,设计师考量的重点在于平衡并满足每个人的喜好差异与生活功能需求,在同住一屋檐下,都可以拥有自己的舒适空间,互不打扰,又其乐融融。
考虑到整个空间的整体协调性,设计师与业主在探讨后,将风格定义现代中式,大胆的以宫墙红做为主体色系,配以浅木色系来提升空间层次质感。
而结构上保留了原有电梯与大部分的空间结构,更多的在原有基础上进行调整,重新规划调整动线与功能区布局。
在顶面的设计中,将传统徽派建筑的外檐运用到室内空间,巧妙地解决了顶面梁口的问题。
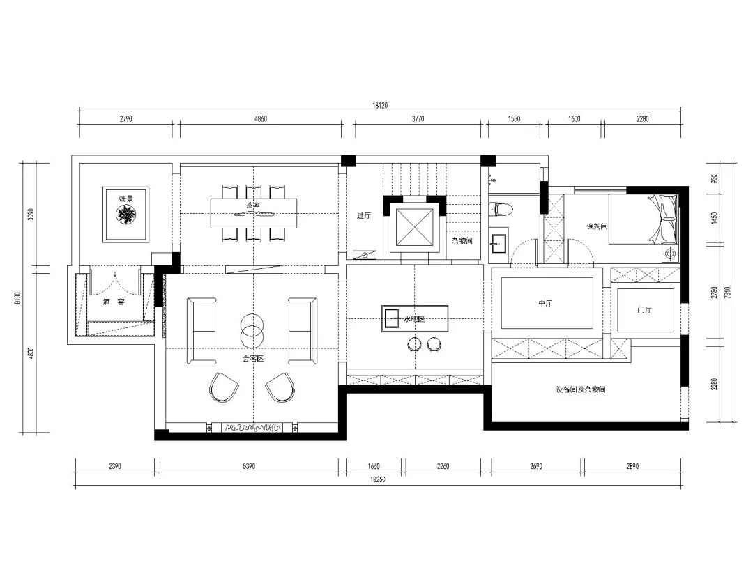
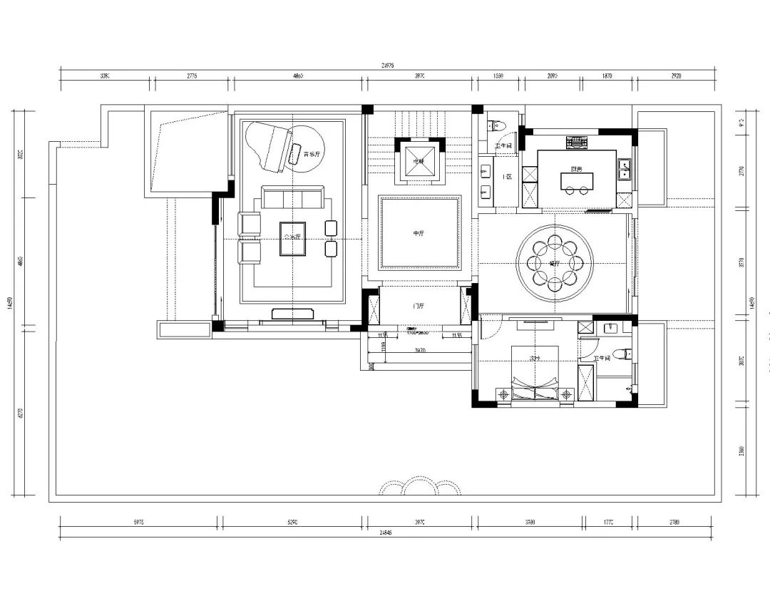
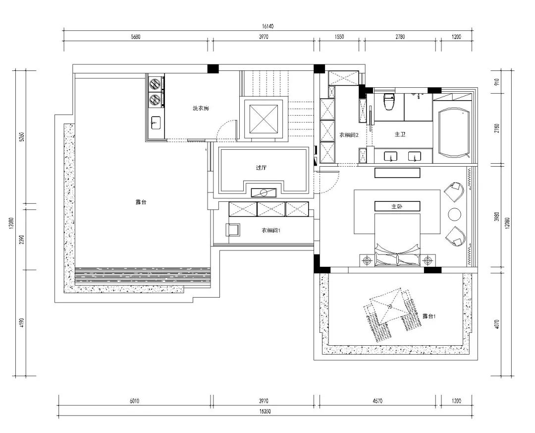
设计平面图
<< 滑动查看下一张图片 >>
<< 滑动查看下一张图片 >>
推门而入,就是古典周正的门厅,整体空间充盈着中式的韵味,玄关柜两侧设立对称装饰,地面波打线与屋顶层次互相对称呼应,中式的对称美感使得整个空间规正和谐。
客厅结合年轻业主喜好轻淡色彩的需求,设计师将中式厚重的红木色彩降下来。
以原木色调与山水墨画搭配,其中用活跃的一抹金色、红色点缀,使得整个空间鲜活、富有灵动质感。
地下会客厅保留挑空,打开视觉感官,大气端庄之余,同时感淋漓尽致地展现了中式特有的对称美——沙发、椅子、两侧的微型盆景,两两相对,和谐富有古典韵味。
而客厅与茶室之间以一面大理石墙壁划分,自然而不突兀的清楚规划两处功能区域。
同时,不设墙的设计使得整个空间通透流畅,不受阻碍,消除疏离感,让温馨轻松的家庭氛围在两个区域之间自由流淌。
主卧的装饰相对更加年轻化,官帽椅、花瓶等装饰在主风格上继承协调。
顶面的不规则设计与背景墙用线条装饰,让顶立面不至于空洞单调,使得整个空间拥有着兼具欢快的现代情绪与稳重的中式美,温馨而和谐。
长辈房整体相对稳重,背景墙设计意境悠远的水墨画,搭配自然原木材质,打造舒适的品质生活质感。
窗边对称式床头灯继承整体风格的对称美感,顶面隐藏式灯光与主灯的设计相互协调,缔造空间的层次感。
家庭儿童房在风格上不作主体延续,吊灯则延续了整体风格,以油纸伞作为造型。
墙边柜以收纳为主,铺满整面墙的设计,具有强大的收纳功能,满足了往后漫长岁月里,所有的美好有处可安置。
柔软地毯,童趣帐篷,给孩子营造一个舒适柔软的玩耍天地,满足孩童天真尽情玩耍的天性。
影音室是家人们欢聚、休憩的一处好去处。
背景墙的宫墙红连续风格上的设计,搭配浅原木色调,有秩序地凸显而出空间层次感。
娱乐室为男主人而设,是家人日常娱乐、办公的专属区域,兼具办公娱乐,一身二任。结合年轻业主喜好浅色调,以浅原木色调为主,在沉稳之中带了些许轻盈的氛围。
设计最高的境界,莫过于回归生活本身。
三代同堂,高堂颐养天年,儿女承欢膝下,一大家子共享天伦之时,既能各得其所,又能其乐融融。
家,
不仅仅只是一个生活的居所空间,
同时也是生活与幸福的载体,
更是生活品味与生活方式的体现。
—— DESIGNER PROFILE >>>>
CHIEF DESIGNER | 陆吉
- 任设计师 10年从业经验 -
国家注册高级设计师
CIDA高级设计师
第五届金鹰奖新锐设计师
设计理念:用设计创造生活,用沟通延展设计。
———— READ MORE
>>>>>
(点击图片查看往期文章)
300㎡现代风别墅设计
620㎡现代
风别墅设计
客服
消息
收藏
下载
最近










































