查看完整案例


收藏

下载
*别墅内部实景 | 点击查看客户证言
楼盘名称 | 森兰明轩
别墅户型 | 叠墅
房屋面积 | 320㎡
设计师 | 陶丽辉
室内风格 | 现代轻奢
家庭成员 | 业主夫妻和两个孩子
爱好 |喜欢阅读,爱好健身,
偶尔弹钢琴,喜欢白色清爽的空间。
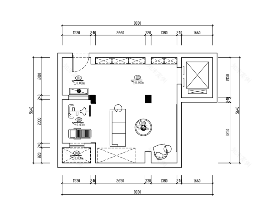
地下室
打破原始结构中的墙面,重新设计整体布局,
功能区明显
,整体空间更大.
原始结构图
平面结构图
业主需求
业主希望地下室是一个安静的阅读区,
采光窗旁开辟一个小的健身区,
放跑步机,
还有一个书房,其余空间大部分
用来
做
储物区。
设计方式
健身区,鞋帽柜,书房作为阅读区。
/ 书房 /
在设计感受上,灯的繁杂和书房的简约,一如曲径通幽处,禅房花木深。抽一丝闲暇时光,品一架书香,于浮生偷得半日闲。
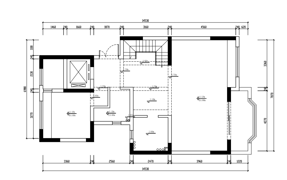
1F
新建墙面,重新设计整体布局,
功能区明显,整体空间更大.
原始结构图
平面结构图
业主需求
业主希望1F主要为客餐厅,长辈房,在实现功能区的同时,做到简约大气。
设计方式
客餐厅为主厅,中西厨分区与吧台相连,还有一间长辈房。
一字型客餐厅相连,在视觉上增大了原本客厅的空间,让家人有更多交流,通透性更好。
/ 客厅 /
如果没有家人之间的交流,空间就只是空间而已。这里承载了太多幸福的时刻,而那些点滴封存着属于每个人的家庭故事。
/ 餐厅 /
餐厅与阳台相连,在配色上尽量用简单的白色搭木色,延展了左右空间,让客厅更宽敞包容。
/ 西厨 /
西厨和中厨连接在一起,西厨做成开放式,摆放一些原汁机、破壁机、面包机,厨房小家电让生活充满烟火气。
/ 中厨 /
西厨里面就是中厨,做高低台,炒菜区低,洗菜、备菜区高一些。和西厨中间用玻璃移门隔开,既能实现分区,也能相互交流。
/ 老人房 /
你曾坐在我对面,把你开心的事,骄傲的事,成长的事讲于我听。你陪我长大,我陪你到老。
/ 楼梯/
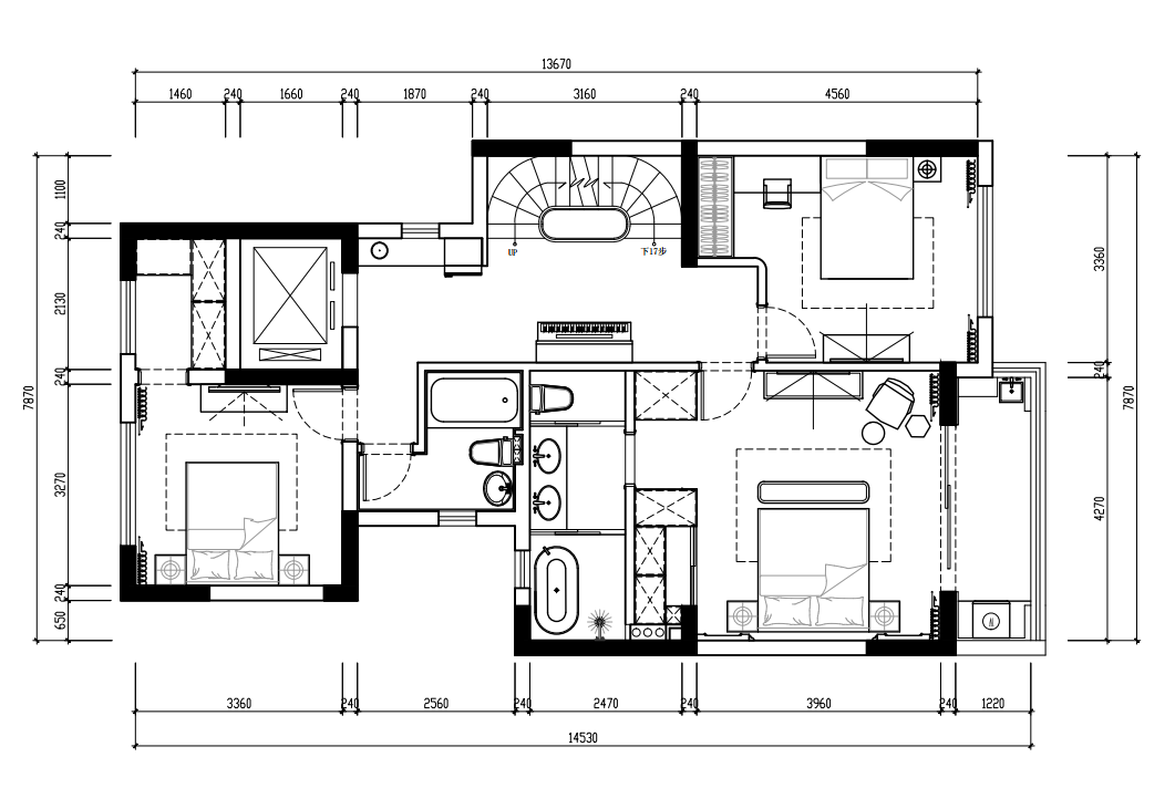
2F
新建结构中的墙面,重新设计整体布局,
功能区明显,整体空间更大.
原始结构图
平面结构图
业主需求
业主希望2F主要是儿童房,
让孩子和父母有充分的互动,小孩房有独立的衣帽间。
设计方式
一间女儿房,一间儿子房,简约大气的风格。
/ 女儿房/
女儿房主色调是浅蓝色,搭配浅卡其色,轻简的搭配,设计了超高衣柜一门到顶,让衣柜收纳空间最大化。
/ 儿子房/
两间儿童房都有落地窗,采光很好。
儿子房的设计也偏简单,孩子的成长速度很快,就没有做太多花哨的装扮。
3F
调整结构中的墙面,重新设计整体布局,
功能区明显,整体空间更大.
原始结构图
平面结构图
业主需求
3F是主卧,
主卧配有浴缸,阳台还有洗衣区,充分满足各种需求。
设计方式
一间主卧,一间次卧,一个主卫。
/ 主卧/
主卧以白、灰、木为主要配色,在装饰上也比较简单,整面定制白色衣柜镶嵌在墙上,其他空间留白比较多,住进来以后可以尽情发挥~
客服
消息
收藏
下载
最近







































