查看完整案例


收藏

下载
如果自己的衣服都无处安放,
还谈什么诗和远方?
所以幸福生活,从衣帽间开始。
今天,小编邀请了5位设计界牛人,
分享了4种款式衣帽间设计,
分分钟教你打造“女王级”衣帽间。
01
平行式独立衣帽间
楼盘 / 湖景花园
房型 / 联排别墅
户型 / 420㎡
风格 / 极简
衣帽间面积 / 约9㎡
衣帽间主人 / 女业主
毛 金 铭
主任设计师
15年从业经验
别墅豪宅空间设计奖获得者
“设计源于生活,每个空间都在倡导一种生活方式。”
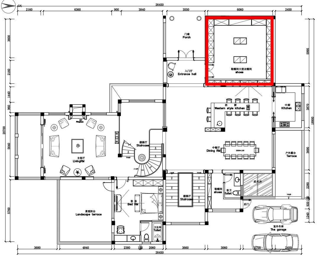
原始户型图
平面方案图
这是卧室套房内的独立式衣帽间,
从室外进入衣帽间的动线并不顺畅,
我将入室门从楼梯口改到客厅一角,
并在卧室和衣帽间之间设置一道隔墙,
不仅动线更为合理,空间相互间的私密性也更好。
衣帽间里侧的墙面设有窗户,
所以衣帽柜只能采用平行并列的设计方式;
靠近窗户的柜子上,安装了多面顶天立地的穿衣镜,
新一天开始,业主对着镜子,
借着充足的自然光线,穿搭自己喜欢的服饰,
无需开灯,效果更好。
02
隐形式独立衣帽间
楼盘 / 泰泓花园
房型 / 独栋别墅
户型 / 450㎡
风格 / 美式
衣帽间面积 / 10㎡
衣帽间主人 / 女儿
王 琪
首席设计师
16年从业经验
金堂奖别墅优秀奖获得者
“创造功能合理、舒适优美、满足人们物质和精神生活需要的室内环境”
原始户型图
平面方案图
这是一个“会消失”的衣帽间
从外部,你以为这是一个顶天立地的书柜↓↓↓
谁能想到,书柜背后竟还隐藏着一个衣帽间?↓↓↓
03
U型独立衣帽间
/
案例1
/
楼盘 / 檀溪湾
房型 / 独栋别墅
户型 / 700㎡
风格 / 现代
衣帽间面积 / 36㎡
衣帽间主人 / 女业主
华 伟
设计总监
15年从业经验
筑巢奖别墅空间金奖获得者
“融艺术于设计,崇尚自然,尊重传统”
原始户型图
平面方案图
这是一套度假型别墅里的衣帽间,
更加宽敞、更加舒适才能让主人更加放松,
所以衣帽间的设置也是足够大,
并采用最理想的U型设计,收纳空间十分充足;
衣帽间中央摆放首饰柜,
既不使空间过于空旷,也多维度满足业主收纳需求。
/
案例2
/
楼盘 / 满堂苑
房型 / 独栋别墅
户型 / 435㎡
风格 / 混搭
衣帽间面积 / 约9.5㎡
衣帽间主人 / 女业主
王 丽 东
首席设计师
19年从业经验
中国陈设艺术大赛优秀奖获得者
“捕捉生活中一切美的元素,让艺术理念与空间布局完美交汇”
原始户型图
平面方案图
整体空间被重新划分,
卧室内增加长条形衣帽间,
所以同样采用收纳空间最为充足的U型设计;
并依据业主喜好,大多是开放式收纳,
也因此,空间防尘做的很好。
04
L型半开放式衣帽间
楼盘 / 桃花源
房型 / 独栋别墅
户型 / 480㎡
风格 / 新中式
衣帽间面积 / 约9㎡
衣帽间主人 / 业主女儿
宋 云 龙
设计总监
13年从业经验
筑巢奖别墅空间优秀奖获得者
“设计是场修行,短的的旅行,长的是人生”
原始户型图
平面方案图
受套房功能空间以及纵深不足的限制,
衣帽间采用L型设计,一半隐藏一半开放,
满足业主反季节衣物的长期收纳,以及当季常穿衣服的摆放;
而蓝色主题的设计,使空间视觉更加年轻化。
在你未来的家里,
你想要拥有一个怎样的衣帽间?
发送你的户型图,
让这些设计大神们帮你设计吧~
— End —
给家人的爱
是支持他们成为真正的自己
20年专注高端别墅大宅
用品质与专业见证幸福家庭
传承、责任、梦想
客服
消息
收藏
下载
最近
































