查看完整案例


收藏

下载
楼盘 / 江山万里
面积 / 630㎡
风格 / 现代
居住人口 / 夫妻 儿子 父母
空间结构 / 地上4层 地下2层
单层面积 / 100㎡左右
装修类型 / 全案装修
全案造价 / 500万
有老人、有孩子的三代同堂之家怎么设计?
分享我家的新宅装修,
最让我满意的就是户型设计,
既满足了三代人的不同需求,
同时也极具高品质生活体验
。
实际上,
我家原始户型并不是很好
,比如:
1. 动线不合理
2. 空间碎片化严重
3. 地下室压抑不通透
然而,
经过设计师设计,却展现出了很多亮点:
1. 空间利用率更高
2. 空间更方正通透
3. 空间层次感更强
4. 满足三代人需求,生活方式更精致
1F
楼梯狭长坡陡,尤其不适合老人
改“L”型楼梯为“U”型
改造前
改造后
户型缺陷
原始户型为L型楼梯,空间狭长,坡度较陡,
家人使用不方便也不舒适,
老人腿脚不便,尤其不适合。
此外,电梯与楼梯相邻而设,电梯纵深短,
而楼梯却是电梯2倍长,造成空间浪费;
且从门厅进入,经过电梯、楼梯的动线也很不合理。
改造方法
改L型楼梯为U型楼梯,让楼梯坡度更平缓;
且减小了楼梯纵深,
改造后与电梯持平,门厅动线更加顺畅,
中餐厅空间也随之更加宽敞。
/ 客厅 /
/ 西厨 /
/ 中餐厅 /
/ 中厨 /
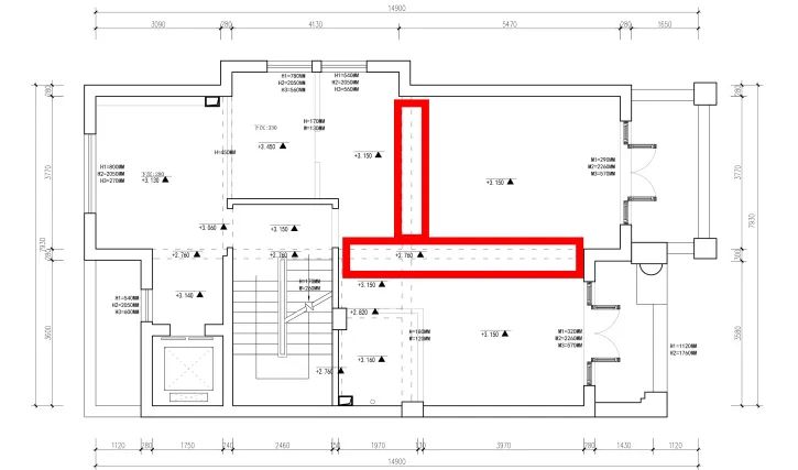
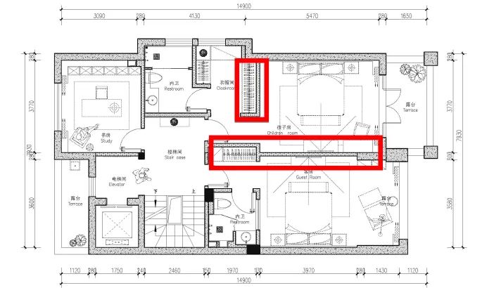
2F
儿子的专属空间
学习休息,设计思考超前20年
改造前
改造后
功能需求
这一层几乎是儿子的专属空间,
除了学习和休息外,
甚至还做了
超前20年的设计思考。
功能设计
进入楼梯间,左边为书房,是儿子学习的地方;
右边为卧室,包括内卫和衣帽间;
穿过卧室,还有一个休闲放松的露台。
儿子卧室旁边,
设了另外一间套房,未来儿子结婚生子,
这间套房便可作为儿童房;
现在暂时作为客房使用。
/ 书房 /
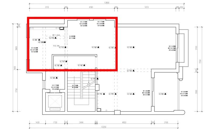
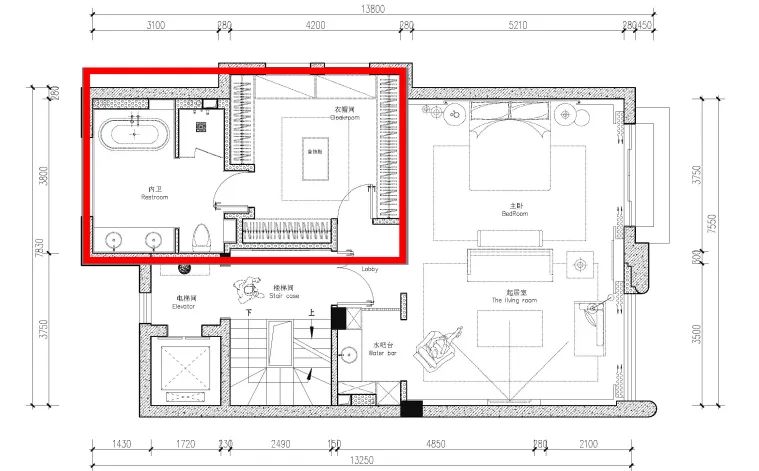
3F
我的专属空间
生活充满诗和远方
改造前
改造后
功能需求
如果衣服都无处安放,还谈什么诗和远方?
所以我首先希望有足够的空间安放衣服;
此外,我还喜欢泡澡,
喜欢在自己的空间里轻松而惬意。
功能设计
近20㎡的衣帽间三面都是衣帽柜,
我可以随心所欲地安放各种衣物;
40㎡的卧室与起居室打通合并,
休息、电视、临时办公,
缩短了各功能的动线距离,
既不拥挤,也不过分分离;
起居室旁边是一个小小的水吧台,
在这里,和爱人喝杯小酒聊个天,非常惬意;
而12㎡的卫生间也安装了我最喜欢的浴缸,
听着音乐泡着澡,
满足了我对生活所有的想象。
/ 起居室 /
/ 主卧 /
/ 主卫生间 /
4F
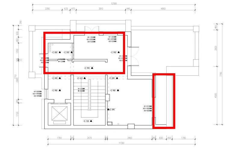
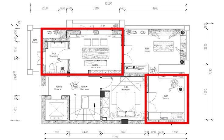
老人的专属空间
闹市里的“世外桃源”
改造前
改造后
功能需求
4楼是老人的专属空间,
他们不需要过于有格调的空间布置,
而是喜欢更加亲近自然的居家环境。
功能设计
老人不能泡澡,也不需要套间,
所以卫生间是外卫,没有浴缸,面积不大;
不需要衣帽间,也不需要奢华的卧室,
所以这些功能空间都简简单单;
他们平时最大的享受是亲近自然,
也因为家里有电梯,所以他们的空间被安排在4楼,
这一层的1/3面积都被设为露台,
有独处的小露台,还有可群聚的大露台,
在这里养鱼、观景,享受大自然,
无需远行他方,尽享悠然闲适,
俨然一片闹市里的“世外桃源”。
/ 次卧 /
地下室
-1F、-2F公共空间
部分挑空设计,全家休闲娱乐的地方
改造前
改造后
户型缺陷
这套别墅并非下沉式庭院,
所以2层地下室的空间是封闭的。
改造方法
1. 设置采光井,改善地下室1层的采光和空气流通。
2. -1F和-2F部分采用挑空设计,既改善-2F的自然空气流通,也使空间呈现错落的层次感。
功能设计
地下室安排了画室、影音室、健身房、酒吧区等空间,满足了全家三代人各种休闲娱乐功能。
/ 会客厅 /
/ 酒吧区 /
— End —
给家人的爱
是支持他们成为真正的自己
20年专注高端别墅大宅
用品质与专业见证幸福家庭
传承、责任、梦想
客服
消息
收藏
下载
最近

































