查看完整案例


收藏

下载
楼盘:檀溪湾
面积:1000㎡
类型:独栋别墅
风格:现代美式混搭度假风
全案造价:1500万
《星墅 · 星事
04
期》
自述 | 设计师 华伟
引述 | 业主 刘女士
编辑 | Eva高
SINGO STORY
檀 溪 湾
○ 别墅外观 & 园艺
“这是个假业主!”
全员请注意!前方“高能”!
回想起当初刘姐的出场方式,
客户经理说她只有一种感觉,
“她是个假业主!”
刘姐与星杰的结缘,纯粹是场顺路逛街的意外。
踏进门的第一句话:
“把你们最好的设计师叫过来!”
这感觉更像是手握大把资源的供应商。
通过初步了解,
我越发觉得客户经理的判断是错的,
刘姐那种由内而外散发出的自信、干练,
是装不出来的。
但有了客户经理斩钉截铁的判断打底,
于是,我又尝试着提了个建议:
“如果谈的愉快,不如等会就交定金去看看现场?”
没想到谈完后,
刘姐非常爽快的去付了定金,
直接印证“假业主”的判断
不!成!立!
○ 二楼客厅
稍有偏差,别墅变“危楼”
错层式复杂结构,施工难,设计更难!
宅子是檀溪湾的别墅,
方位背山面湖,环境优美,
是无锡当地很有代表性的别墅,
也是当地一块超难啃的“骨头”。
为什么那么说,
是因为这套房子结构十分复杂,
每个层面都是空间错层关系,
但刘姐又很注重设计,
对这个宅子寄予厚望,
所以迟迟未定设计师和装修公司。
错层建筑设计、施工难点:
1. 空间层高有差异
处理不当,空间压迫感扑面而来。
2. 楼板结构受力难均衡
需要相当精密的计算,
偏差严重,平地变斜坡。
3. 房屋承重结构互相关联,改造难度大
稍有不慎,墙体倾斜、受损。
4. 设计难出彩
空间之间相互错开,想整体协调难。
都说好事多磨,量房后,
我开始了痛并快乐着的项目规划历程,
反复地琢磨、探讨、修改、再琢磨……
最终,拿出了一套自己还挺满意的方案↓↓↓
改造前:
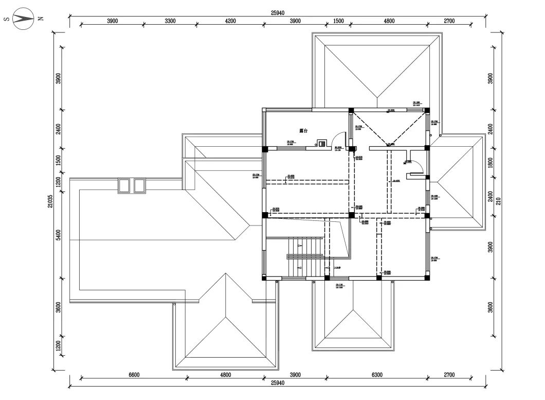
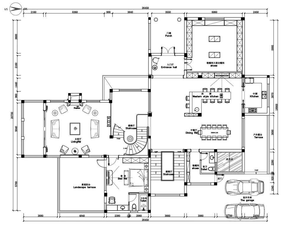
○ 一层平面图
○ 二层平面图
○ 三层平面图
改造后:
○ 一层平面设计图
○ 二层平面设计图
○ 三层平面设计图
改造亮点:
1. 贯通楼梯
在宅邸后方创造出的楼梯,以便最短路径到
达各个层面。
2. 辅助楼梯
对原有楼梯进行拆改设计,科学定位,并增加
造型美感。
3. 景观引入
室内落地窗、落地门设计,使室内外的美景融
合、衔接。
○ 楼梯改造
怎么约,都不来的业主
商务“这单子怕是要凉~”
我们约看方案的那段时间正好和刘姐的项目撞期,
商务的“十八般武艺”轮番施展了一遍,
然而,业主依旧“我自岿然不动”。
后来刘姐说:
“我很忙,真没时间,要不这样,你们先把方案发给我,我看了再回复你。”
发,还是……不发?
我自己也是好几番思量,
毕竟,为这案子花了不少心血,
但方案都做了,放着也是浪费……
最后,心一横牙一咬,先给了刘姐方案。
○ 餐厅空间
○ 厨房空间
好像…真“玩脱”了?
那段时间,我都是喝着“鸡汤”过活~
发完方案后,我松了口气。
随后,一天,两天,……
一个星期过去了,案子依旧没有动静。
又过了好长一段时间,几乎大家都放弃了。
商务的念叨从一开始的,
“你看,一发就凉了吧。”逐渐成了“心灵鸡汤”。
之后又过了几天,
她说:“那个,方案我看了,不错,我们什么时候见面签合同吧!”
你说是不是,这都是什么个故事啊,太神奇了!
○ 更衣室
“你是个有点格局的设计师”
干了刘姐的这杯治愈“鸡汤”~
随着接触,大家成了朋友。
我也就很坦然的问刘姐,
那段“沉寂”的时间都发生了什么。
刘姐表示,收到方案后,但凡有空,
她都会通过自己的渠道,
对方案进行
多!方!验!证!
刘姐和我分析,
她曾经考察过、或经历过的,几家装修公司,
从公司各自的经营状况开始,
老板都是谁,成立了多长时间,
每家公司最擅长什么,
都有哪些大牌设计师,
每个大牌设计师的个性又是什么,擅长做什么,
下面的团队有多少人等,
她说的比我都清楚,
我听完后非常震惊!
○ 书房空间
○ 后院入户
“我先不说为什么选你”
“我先说说为什么不选其他公司。”
刘姐是那种主观意识和主观能动性都很强的人,
一旦她认准好的,那就是好的,
她觉得不好的,就不会再和你啰嗦。
像我们约好时间后,
她就非常爽快地来签了合约,也付了设计费。
她对这个市场太了解了!
刘姐有好几套别墅,
无锡数得上的设计公司她基本都跑了个遍,
她说上一套别墅的设计师水平也很好,公司也不错,
但是,
这次之所以不找她,是因为,
她发现设计师下面的团队服务性不够,
在整个工程的施工中,
团队不足以支撑方案的完美落地。
○ 主卫空间
是什么“敲动”刘姐的心?
“首先,你有个靠谱的公司”
她选择我的原因大致可分为三方面:
1. 度假生活方式 ≠ 度假风格别墅
整栋建筑的采光都很好,室外风景被很好的纳入室内,将度假 的生活方式理念融入空间设计后,回家就不再是单一的动词,而是有温度的度假生活;
2. 两部楼梯的设计深得她心
一部贯通楼梯让她能以最短的路径到达每个层面,一部分段的辅助楼梯,让空间和空间的转换和衔接变得方便和自然;
3. 团队的落地服务能力+品牌力量
她对我们公司以及我的团队都做了考察,她自己也是做工程的,施工是不是足够支撑方案落地才是她关心的点。
○ 西餐厅
风格&选材是如何考虑的?
基于刘姐的生活习惯和需求进行设计
宅邸的设计是度假风格,
整体非常现代,
我会尽量选线条简练的装饰和家具,
极大胆的留白,让宅子变“空”,
又会在细节上加一点点的美式元素,
去塑造空间的韵感,
单从空间看,很难相信这会是女性业主的别墅。
材料的选择上,
我会建议刘姐选用质感好的材料,
就像高档服装的面料一样,面料一定要好,
同样的道理,越简单的设计,
它对材料本身的质感要求会越强,
不然,这就不是简约,是简陋。
*材料清单:
瓷砖品牌:蜜蜂 木作品牌:首席公馆 橱柜品牌:诺亚娜 石材品牌:云朵拉灰 灯具品牌:澳达奇
○ 藏酒区
更多贴心设计:
1.别墅地下室改建后的防潮、防倒灌处理
在地下室墙体接近土壤的地方,重新浇筑混
凝土,以及别墅的地下引流系统
2.房梁、墙体加固
3.屋顶天沟排水系统设计
类似雨水引流,就算有大暴雨的话也能充分
的把水引流和排掉
○ 阳光房
如今,刘姐已经搬进项目一个多月,
我也正好用这套作品参加了2019的筑巢奖,
果然,磨刀不误砍柴工,功夫不负有心人,
得知自己的家获得了本届的筑巢金奖,
刘姐非常开心。
○ 设计师获奖照片
* 推文图片版权归星杰所有,盗图必究
* 温馨提示
上海星杰装饰
上海星杰装饰
客服
消息
收藏
下载
最近













































