查看完整案例


收藏

下载
项目信息
ABOUT THE PROJECT
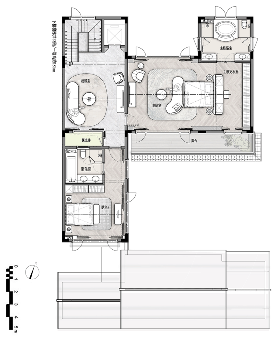
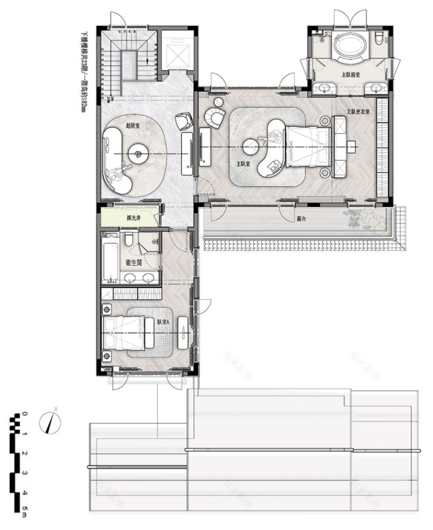
项目名称 | 台州德信 · 江山云和
主创人员 | 邱德光
项目管理 | 朱晓东
设计团队 | 刘琼文、陈惠君、林纯萱、张喻捷、张舒涵、蔡欣妤、白澍云、江鎷如、林晏辰(艺术)、赵铭、朱奕男
空间摄影师 | 朱迪
视频制作 | 李培桦(导演)、邱德光设计(监制)、李昊梦(摄影)、郑羽嘉(剪辑)
空间性质 | 样板房
坐落位置 | 浙江台州
主要材料 | 特殊石材、木饰面、烤漆、特殊墙纸、不锈钢
家具品牌 | T.K HOME, B&B, Reflex and Molteni & C
饰品品牌 | Robert KUO, Kim Syberet, Tom Dixon, Gardeco, Gilles Caffier and Georg Jensen
面积 | 900㎡
设计时间 | 2020年10月至 2021年03月
施工时间 | 2021年09月至 2021年12月
客服
消息
收藏
下载
最近





















































