查看完整案例


收藏

下载
Casas, Queenstown, Nueva Zelanda
设计师:Dorrington Atcheson Architects
面积:282 m²
年份:2018
摄影:Mark Scowen
提供协助:Fairview Architectural, Metalcraft, Sto
负责建筑师:Sam Atcheson
设计团队:Sam Lennon
业主:Bruce and Anne Stuhlmann
Constructor:Douglas Building
设计师描述 | Designer description:
Un nuevo edificio en Queenstown, con impresionantes vistas de la cordillera de Remarkables y el lago Wakatipu, inspiró una casa única que complementa el entorno.
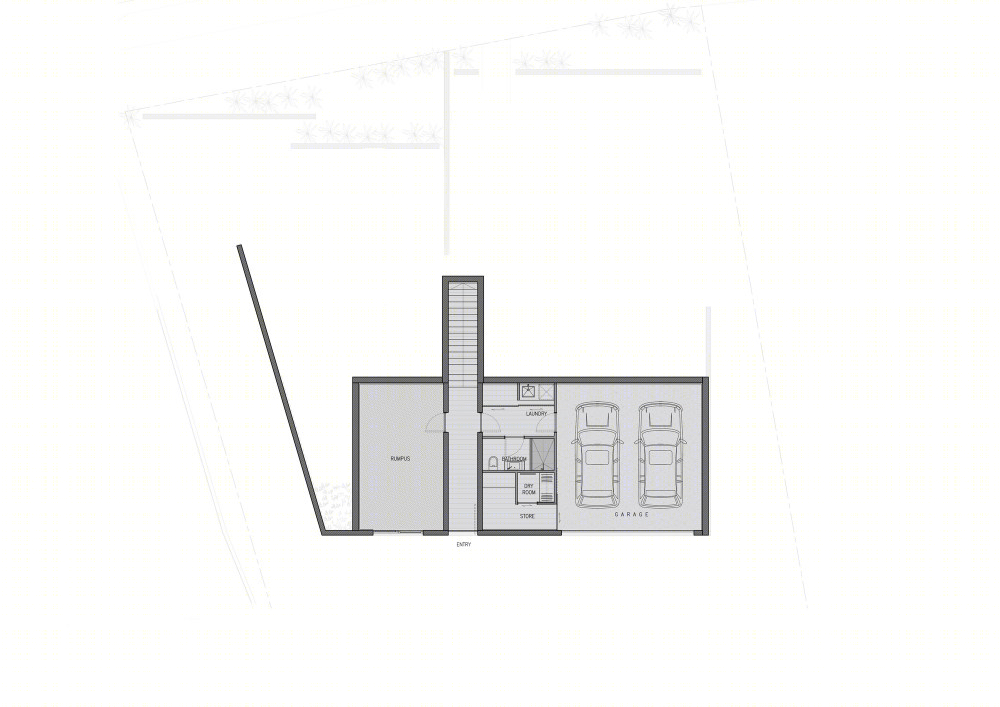
Un sólido volumen excavado en el suelo proporciona los espacios funcionales de la casa, como garaje, lavandería, sala de juegos y la sala para el equipamiento deportivo de invierno y verano. Sin embargo, la entrada a la casa, es por un patio a nivel de calle en el lado norte, perimetrado por muros moldeados en el lugar, permitiendo entrever las magníficas vistas que se revelan al ingresar al nivel intermedio. La línea del techo sigue los contornos de la cordillera y proporciona una forma llamativa.
El nivel intermedio protege la cocina, los comedores y también una sala subterránea, perfecta para una sesión de fondue frente al fuego, después de un duro día en la montaña. Las puertas corredizas se abren a la vista y una terraza sustancial. La vista de los vecinos quedó oculta por el uso de muros moldeados, que brindan privacidad y una sensación de solidez, en contraste con el acristalamiento ininterrumpido del espacio habitable.
La escalera aparece como una abertura de vidrio que atraviesa el centro de la casa y, una vez más, asegura que la vista sea despejada. Los dormitorios y los baños se encuentran en la planta superior y, a diferencia del hormigón del nivel intermedio, se envuelve con un revestimiento de metal oscuro. Los grandes ventanales permiten que el sol entre por el norte y el acristalamiento llena el vacío entre las formas del techo y las paredes.
项目完工照片 | Finished Photos
设计师:Dorrington Atcheson Architects
分类:Casas
语言:西班牙语
阅读原文
客服
消息
收藏
下载
最近
























