查看完整案例


收藏

下载
Hotels, Hotels Interiors, Hiroshima, Japan
设计师:CAPD
面积: 319 m²
年份:2019
摄影:Daisuke Shima
建造商: Toli, ADVAN, Sanwacompany
负责建筑师:CAPD
设计团队:Kazuo Monnai, Hirokazu Ohara, Dai Tsunenobu, Kazuya Masui
Planning And Management:breakfast
Construction:TS HAMAMOTO
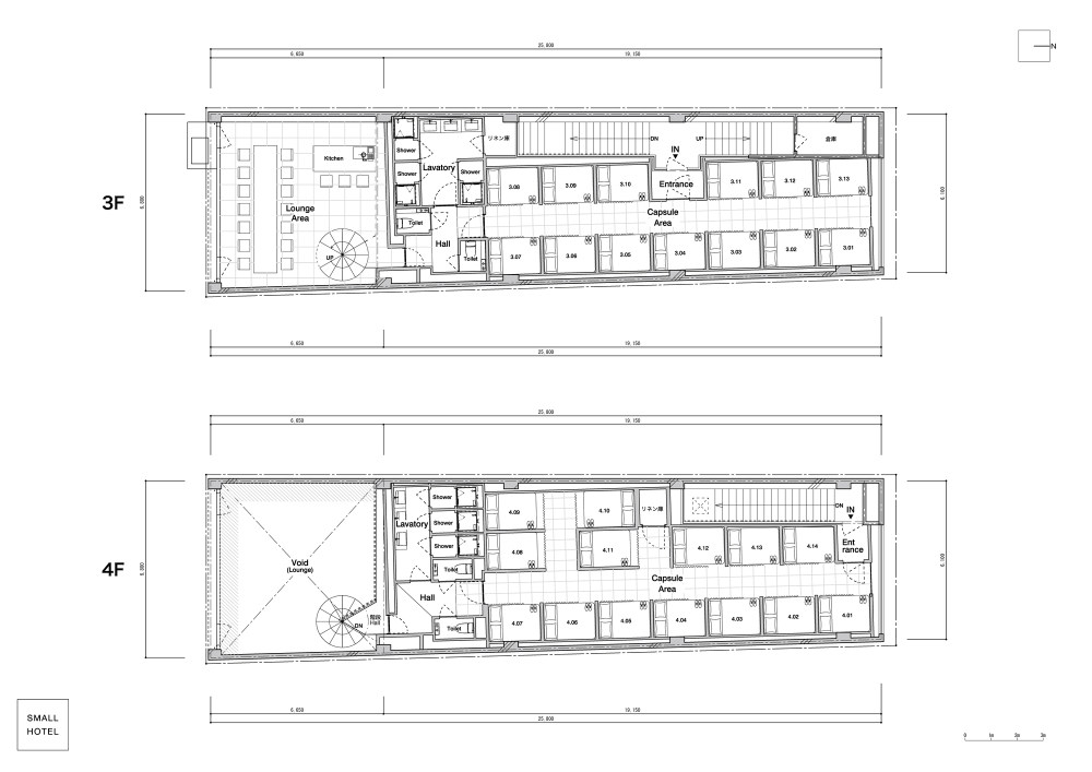
「Unmanned capsule hotels」
This hotel is a new "unmanned operation" that does not have resident staff in the center of Hiroshima City, which is close to the Atomic Bomb Dome, a World Heritage Site, and can be booked and settled online.
While pursuing rationality in architecture, we thought that the hard part of the building would have a large impact on the satisfaction of the guests, and aimed to design a facility that would make us want to visit again. With a wide cabin-sized opening in individual spaces, there is a double-bed-sized mattress with plenty of room for two people to stay in one space.
The structural material and the base are finished as it is, and it does not have a cheap impression by the balance with other materials, the color scheme, and the lighting while keeping the cost down, and it was a calm space like the accommodation.
项目完工照片 | Finished Photos
设计师:CAPD
分类:Hotels
语言:英语
阅读原文
客服
消息
收藏
下载
最近















