查看完整案例


收藏

下载

附件
莫里茨工厂始建于1856年,是巴塞罗那最早的啤酒厂之一,也是最早酿造精酿啤酒的工厂之一。尽管这家工厂关闭了33年,但在2011年由建筑师让·努维尔(Jean Nouvel)进行了改造,在经历了这一重大飞跃之后,我们的客户要求我们根据这种改造来改变空间。
我们决定保留入口的外壳,吧台和架子,以增加与酿酒手工艺文化有关的啤酒酿造美学。这也正成为啤酒周围的一个整体反映。
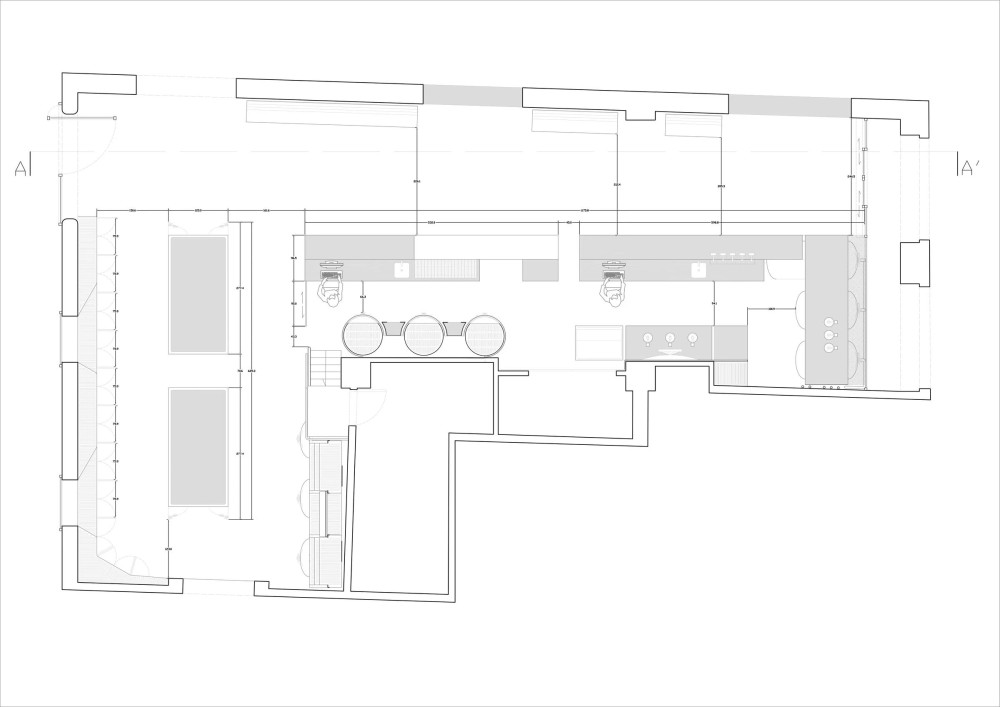
我们要做的第一件事是移动现有的吧台,为新的吧台提供空间,使其达到大约6米的“ L”形,并到达窗户,这是向外部的宣言,同时又与内部融为一体。该酒吧的下部有3个水箱,上部有3个水箱,这些水箱直接连接到位于啤酒生产下方的工厂的水箱。这些长管将未经过巴氏灭菌的啤酒从生产到消费的整个过程。这款新杆的特点是Jean Nouvel杆的材料和美学品质。
此外,此酒吧在1升瓶中装有限量版啤酒。图形元素和标牌可根据要求进行修改。
储存啤酒的储罐也成为参展商,以玻璃灯的形式出售面包,带领您从入口处进入独特的家具,该家具是在M店的“ L”空间第二部分的储罐部分制成的。
第二个空间的特点是在墙壁上殖民,陈列着与啤酒世界有关的品牌T恤,小玩意,促销元素和书籍
客服
消息
收藏
下载
最近













