查看完整案例


收藏

下载
项目地点/北京
风格/现代中式
设计师/李占龙
古朴典雅是人们对中式风格设计的第一印象。这种风格能够反映出强烈的民族文化特征,特别是对我们中国人而言,更是从骨子里流露出一股亲切感,因此,受到很多屋主和设计师的喜爱。
但被大多数人认同的中式风格一定不是对古代风格照搬照抄,否则就会造成空间老气横秋、繁琐无趣。
本案例位于北京团河苑小区,建筑面积为120㎡,是比较传统常见的两居室户型,居住着幸福的一家三口。
房子是旧房,屋主一家希望能通过重新装修设计,改造成为偏爱的中式风格。在设计师的建议下,最终决定融入现代设计,打造温馨典雅的现代中式家居。
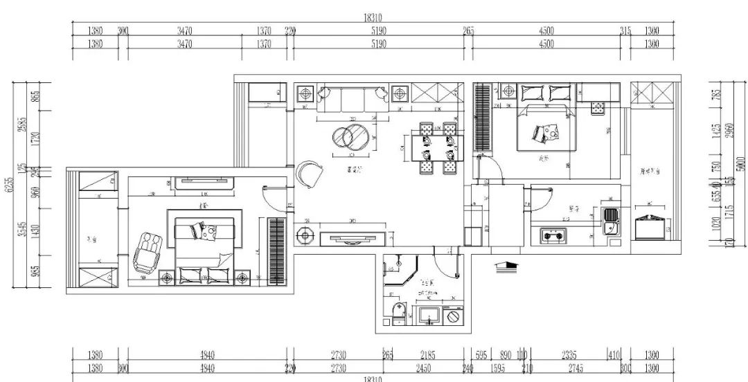
#户型分析#
改造后平面布局
设计师李占龙对整体空间进行详细划分,以胡桃木作为主要材料,通过用局部的胡桃木家具衬托典雅的格调,为空间带来独特端庄的成熟气质。
客餐厅
电视背景墙为纯白色,而沙发背景墙则是采用中式壁纸搭配,既保留了中式的典雅,又摒弃了杂糅的色调,柔和温馨。
客厅与餐厅相接,不仅节省空间,而且通透性和层次感也更加丰富,门厅处做了鞋帽柜区分,满足屋主的生活需求。
厨房
厨房橱柜做了L型设计,窄条纹型瓷砖可以更好地延伸空间感,花砖做色彩点缀,L型柜体使用便捷。嵌入式的厨电收纳柜加上高柜,整个空间规划得当,厨房干净整洁,下厨也有好心情!
主卧
主卧空间是居家私密的空间,主卧的设计主要以舒适温馨为主:卧室通铺木色地砖,衣柜采用木制线条,用造型突出家具的色彩。
不同于现代简约的灰白色调,木色地砖衬托得整个空间更有生活气息,让家更暖。
次卧
次卧为女儿居住,需要容纳睡床、衣柜、写字台等齐全的配备功能。采用定制柜体做床铺,颜色搭配得很跳跃,充满活力,增加储物空间同时保证房间的开阔。
卫生间做的干湿分离,增加卫生间的使用空间,卫生间墙砖采用灰色瓷砖做搭配,整体简洁干净。花洒区域单独搭配两组造型花砖做搭配。
卫生间
卫生间做的干湿分离,增加卫生间的使用空间,卫生间墙砖采用灰色瓷砖做搭配,整体简洁干净。花洒区域单独搭配两组造型花砖做搭配。
▪ THE END ▪
关于设计师
从业时间
:10年
主要荣誉:
中国室内装饰协会会员
别墅项目设计获得设计之星
美化家居优秀作品奖
作品多次在《时尚家居》等杂志刊登
擅长风格:
简欧/北欧/新中式/
现代/轻奢
代表作品:
丽园、原生墅、枣园、首邑上城、南庭新苑、龙湖时代天街、公园1872国际公寓、中信
城、百旺杏林湾、艾力枫社、长安新城、山水文园、远洋山水、首邑溪谷、御翠尚府、四合上院……
扫码进群,享更多优惠
将我们设为
「星标★」
▼戳
阅读原文
,快速获取装修报价
客服
消息
收藏
下载
最近










