查看完整案例


收藏

下载
Apartments, Social Housing, Historic Preservation, Münster, Germany
设计师:MS PLUS ARCHITEKTEN Bücker Holling Schwager PartGmbB
面积: 5100 m²
年份:2019
摄影:Roland Borgmann
建造商: Nemetschek, ABC-Klinkergruppe, Hörstel, DE, COMETEC-Bausysteme GmbH, Wuppertal, DE, Henke Fensterbau, Münster, DE
设计团队:MS PLUS ARCHITEKTEN Bücker Holling Schwager PartGmbB
业主:Wohn+Stadtbau GmbH, Münster
Structural 工程师:Ingenieurbüro Eggersmann GmbH, Warendorf
Buidling Services:Hatting & Kuhlmann TGA GmbH & Co. KG, Recklinghausen and FHP Frye Haustechnikplanung, Nottuln
The new housing project with 33 apartments was completed in Dec 2019. It was designed by the young architectural office MS PLUS ARCHITEKTEN, who won the competition with a convincing design in 2016. At this stage, the demolition of the profane conciliation church was undertaken. The main challenging topic was to keep the site’s character based on the iconic church, built in the 1960s.
The project closes the street corner by an angular volume, which helps to blend in with the large-scaled buildings along the ring road and the neighboring from the end of the 19th century. Based on the given urban structure the project develops a silhouette, that is stepped from 4 stories down to 2 stories. A noise protected court was planned, using the combination of two duplex-houses and two protected trees, which are embraced within the project.
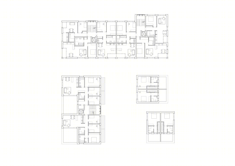
The Kreuzviertel-district is one of the most popular and moreover valuable residential areas in Münster. The New building project generates 33 apartments, sized from 40qm up to 115qm. The design includes differing typologies such as floor apartments, multi-story apartments, and duplex-houses.
The center of the new quarter is based on the noise-protected court which includes a lounge and playing area for all the residents, connected to the private gardens from the ground floor apartments. The integration of the big existing trees creates a favorable atmosphere and a green center of the quarter.
The light brick façade with the structure giving surface is a reminiscence to the ornament pieces of the old church and additionally continues the red colors of the neighboring brick façades. The bold relief continues the openings in the vertical and horizontal way and attends as a dividing element, which connects the openings on the edges of the building.
The compact design permits a significant and contemporary integrating façade within a building budget appropriate to affordable and social housing.
项目完工照片 | Finished Photos
设计师:MS PLUS ARCHITEKTEN Bücker Holling Schwager PartGmbB
分类:Apartments
语言:英语
阅读原文
客服
消息
收藏
下载
最近





























