查看完整案例


收藏

下载
Casas, Interiroes De Casas, La Plata, Argentina
设计师:Gianserra + Lima arquitectos
面积:400 m²
年份:2017
摄影:Luis Barandiarán
建造商:Grupo Anacleto, Guanzetti SA, Hormicova, Lograsso, Ventex
设计师描述 | Designer description:
Situada em um bairro nos arredores da cidade de La Plata, esta residência unifamiliar foi construída em um lote de esquina, com dimensão de 20 por 60 metros, na intersecção das ruas 23 e 510. O Código de Ordenamento Urbano exige, para esta região, recuos tanto dos eixos das empenas, quanto das linhas municipais de ambas as ruas.
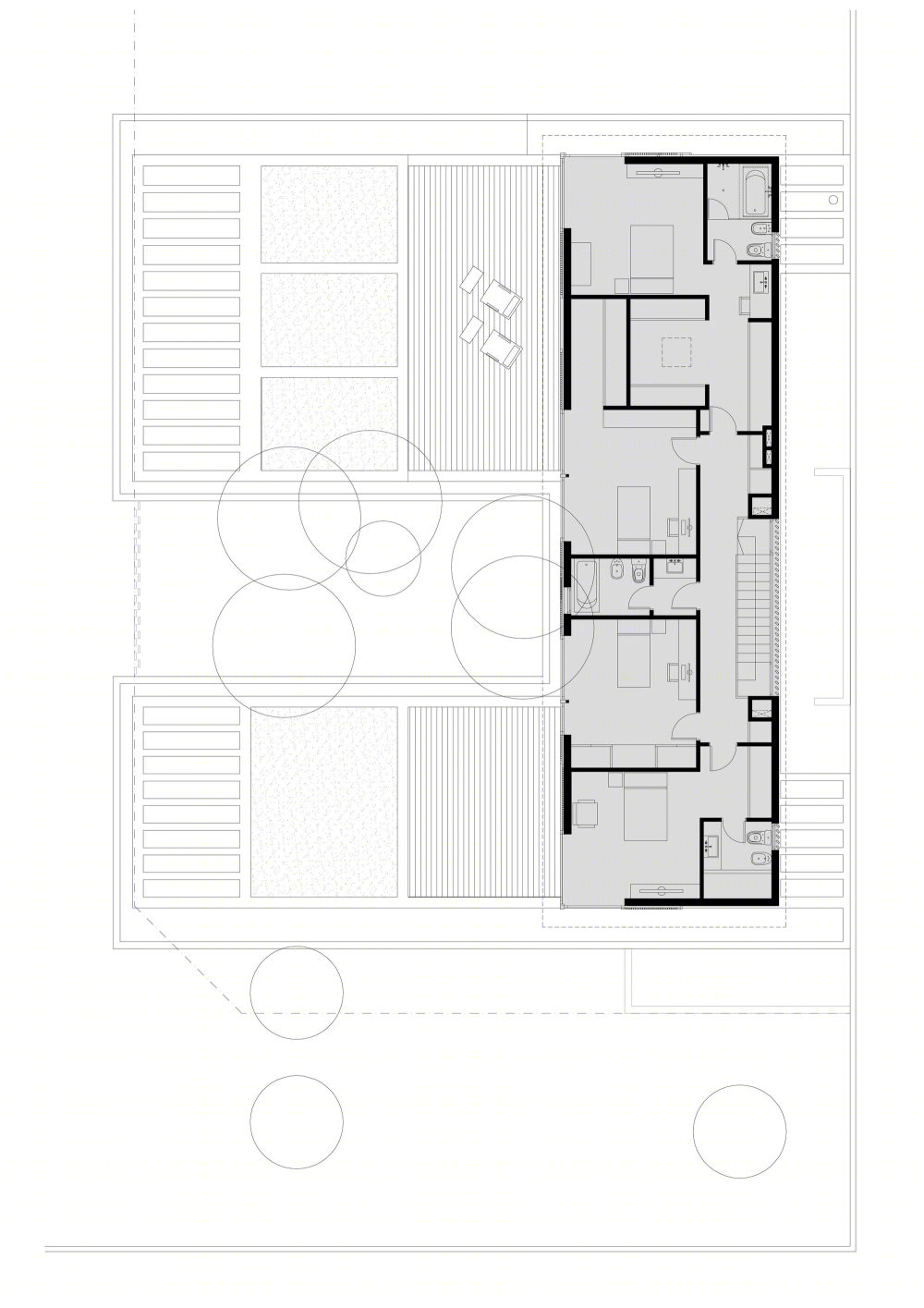
O programa do projeto é uma residência de quatro dormitórios que se desenvolve em dois pavimentos, com especial foco na flexibilidade do uso dos espaços coletivos cobertos (salas estar e jantar, além da cozinha) e descobertos (pátio central e galeria), e sua relação com os espaços externos.
Com essas premissas de projeto, desenvolveu-se uma planta em "U" no térreo, ao redor de um pátio central, permitindo transparências visuais cruzadas em todo o edifício, onde se se desenvolvem as áreas sociais da casa; além de um pavimento superior compacto que contempla a área privada da residência.
A materialidade se define pelo uso de diversas texturas de concreto aparente em lajes e divisórias, paredes brancas, marcenaria externa em PVC e brises fixos, além de um mobiliário com elementos de controle solar e fechamento.
Esta casa mantém certas diretrizes de projeto que foram desenvolvidas em outros trabalhos, tais como a busca de continuidade interior-exterior e flexibilidade espacial através de grandes painéis de vidro e amplas galerias; resolução estrutural-construtiva como eixo do projeto; e o desenvolvimento exaustivo do projeto executivo como elemento fundamental do processo.
No projeto desta casa tentamos sintetizar os diferentes princípios que definem nossa atuação arquitetônica:a volumetria simples e de linhas puras; a linguagem atemporal e de design sóbrio; o desenvolvimento dos detalhes, mantendo a correlação entre o todo e as partes; e a cuidadosa escolha e utilização de materiais, cores e texturas.
项目完工照片 | Finished Photos
设计师:Gianserra + Lima arquitectos
分类:Casas
语言:葡萄牙语
阅读原文
客服
消息
收藏
下载
最近



























