查看完整案例


收藏

下载
梵境淡雅,气韵风华。于纯粹唯美中寻找人居浪漫,有简明的意蕴,有时尚的光影,藏于软装的色彩印记,匿于转角的剪影轮廓,或隐或现,游走在现代居室格局,赋予空间另一层美学价值。这是大气华美的讴歌,这是居境明媚的赞颂。在本案中,设计以最质朴的方式还原了居室原本的韵味,构造城居之间别于繁华的另一种风貌。◤客厅◢
整体设计采用业主十分喜欢的现代风,现代风格是比较流行的一种风格,追求时尚与潮流,非常注重居室空间的布局与使用功能的完美结合。浅色视觉主元素构图,唯美不失大气,通过弧形线条和空旷感相得益彰的配合,增强着空间的层次度,奠定空间的情感基调。
客厅选用整块大理石,纹理自然清新的独特构造营造了时尚感,而整体使用白色、浅灰、奶咖等浅色系,搭配跃层的超高空间,使得居境既有淡雅温润,又有引人遐想的想象留白,突出设计的高级感。整个空间张弛有度,宽敞的落地窗,使得室内在自然光线下,产生不同角度的光影变化,演变出自然层次感。软装的配饰,也在细节处体现着高贵的品质与实用的功能,以此来满足居者对生活的艺术追求。
◤厨房◢
厨房选用颜色较沉静的深蓝色为主,和碗橱瓷白更好地融汇于一体,与客厅一浅一深的色调凸显空间的差异,美化最具烟火气的气息区域,营造不同的美学体验;且深色可以舒缓视觉疲劳,提升人体精神力和感知力,以便可以更好进行清洁和家务工作。方寸之间,在简约优雅的整体氛围与雕琢的微妙细节中,把对生活的期待与想象,融为一道道美味,抚慰着凡人的心与胃。
业主经常使用厨房,因此大气整洁、简单明朗的场景式引入便是不二之选,各区域功能分明,以便于实际应用也是很重要的。简单陈列厨具,多余的空间可以用于置放桌椅等生活场景用品。
◤
吧 台 区
◢
一层设立了小型水吧区,增强生活使用功能,凸显大空间的优越性,让休闲和聚会更为便利。吧台中,设计师以最大化空间使用效果为原则,采用了镂空的壁柜,既通透又使用,在娱乐功能基础上更多考虑了整体的收纳空间。搭配极具质感与时尚感的软装配饰与器皿,没有过多繁复的元素,营造出一种有格调、有温度、干练利落的空间体验感。
设计中的不拘成法是本案中的亮点,水吧区旁的活动区域可以因人而异,满足小型聚会、生日派对的活动要求,流光灯的弧顶嵌入设计,营造着区域满满的氛围感。
◤浴室◢
浴室整体采用简单的装饰打造潮流氛围,多用大理石纹路画来提升空间视觉效果,互补搭配。无处不在的简单自然气息,构造了一方有别于客厅多彩色调的效果。
采光明朗,简约大气,线条与轮廓的交错,无需过多的装饰件去调配,体现功用至上的浴室空间,是承载家人洗去疲劳,感受清新的心灵港湾。
◤卧室◢
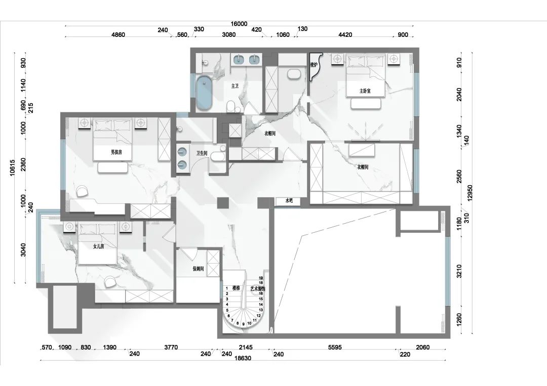
卧室采用的色彩更加丰富,软装层次度更为自由,多元的跳色更能增加空间情感活力,给居住者带来更好的体验,带来居住时的好心情。全铜装饰灯具和茶色透明柜体的融入,体现出细腻考究、高级优雅的格调,使得整个睡眠空间更为精致与有质感。全屋的设计在配合业主生活习惯基础上符合人体工程学基点,结合艺术化的现实审美体验,无论从色彩效果,还是材质选用都更为科学严谨,为业主打造一个理想的居家体验空间。项目平面图
◆ 项目·主案 ◆
徐磊
中国贸促会商业委员会创意设计中心理事会常务理事
下上空间设计创始人
客服
消息
收藏
下载
最近
















