查看完整案例


收藏

下载
设计源于生活 生活源于设计
专注 | 全案 | 设计 | 品质 | 生活
SuZhou, 2022, WEISMAN DESIGN
01/
项目信息
项目地址|Project Address 苏州平江风华
项目类型|Project Type 叠加别墅
项目面积|Square Meters 200㎡
设计公司|Design Company 苏州维斯曼全案设计
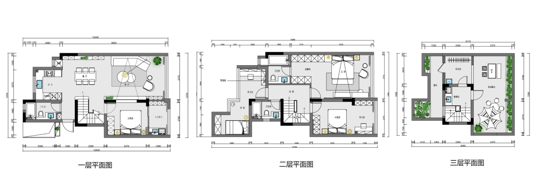
02/
户型布局
03/设计效果|客餐厅 THE LIVING-DINING ROOM↓
大片的原木和大型植物将客厅营造成一处自然秘境。木制的温暖环绕身边,天然的纹理带着原始的质朴气息扑面而来,一切的美好都沐浴在阳光下,让人充分享受到自然的惬意。
烟火气与情调并存、美好与日常同在的空间里。温馨的氛围点缀出一日三餐的无可替代,精致的水吧台与艺术品为平淡的日常增添仪式感,用热爱谱写一曲生活的赞歌。| 主卧 THE BEDROOM↓|
精神的放松是休息的最佳境界,提供睡眠之外的愉悦体验,让卧室成为取悦身心的地方。
梳妆台简约之中不乏优雅,为一天拉开精致的序幕;休闲区用开阔的视野和悠然的氛围,细数每一个在这里度过的轻松日夜。
| 次卧 THE SECOND BEDROOM|
剥去华丽的装饰,让空间回归生活的本质:实用,舒适。阳光可以穿过层层玻璃,以最柔和的方式温暖着空间以及时光,让身心得到充分的放松。|儿童房 THE CHILDREN’S ROOM|
成长需要的空间,父母对孩子的关爱,都在这一方小天地里。灰蓝色沉静又不乏生命力,奠定卧室的基调。宽敞的空间足够孩子尽情释放天性,在玩耍里收获快乐;学习区宁静而舒适,让梦想在努力里起航。|书房 THE STUDY ROOM|
当对生活感到迷茫时,就来书房寻找答案吧。暖暖的阳光洒在身上,令人短暂地告别浮躁,沉浸在书和工作里,让努力带来的充实感和心灵的丰盈带领自己冲破迷雾,回到正确的航线。
|卫生间 THE BATHROOM|
纯净的空间洗尽铅华不加修饰,呈现简约的美感与实用,也为归人洗去一天的疲累。
维斯曼全案设计创于 2014 年,位于江苏省苏州市,是一家以全案设计、软装设计、装修咨询顾问等为一体的设计公司,我们专注别墅、大平层、商业、办公空间等提供个性化设计以及配套专业施工落地服务。设计以人为本,细节决定成败是我们的座右铭。我们通过对空间的理解,对业主私人定制的理念,规划空间的个性化设计,满足客户的需求上叠加艺术渲染,更好的把握空间效果的落地性,我们坚持原创,每一套作品均由设计团队进行全案设计并且配套落地。
近期荣誉奖项:
2022 年广州设计周·她设计奖
2021 年金堂奖年度杰出作品奖
2021 年中国家装设计百强品牌
2021 年上海国际设计周·全国榜设计师
2021 年上海国际设计周·金梁中国设计奖城际榜
2021 年 40UNDER40 中国(苏州)设计杰出青年
2021 年金住奖中国(苏州)十大居住空间设计师
2021 年 TOP DESIGN 100 中国设计头条年鉴榜·城市榜
2020 年中国软装设计龍承奖专业组别墅空间设计奖
2020 年上海国际设计周·匠心中国设计奖
2020 年度苏州室内设计先锋设计师
2020 年湖南卫视《嗨,我的新家》特邀设计师
2020 年苏州好设计大赛陈设设计类十佳作品奖
2020 年金住奖中国(苏州)十大居住空间设计师
2019 年苏州好设计大赛陈设设计类十佳作品奖
2019 年苏州好设计大赛优秀陈设空间设计奖
2019 年国际空间设计大奖|金创意奖会所空间设计铜奖
2019 年苏州装饰协会青年设计师 X 人物
2019 年金住奖中国居住空间设计金住大使
2019 年金住奖中国(苏州)十大居住空间设计师
推荐阅读
点击图片查看往期案例
【维斯曼全案设计】
高端住宅| 别墅|商业空间
设计 | 产品|施工|一站式服务
扫码|预约设计↓
18912759698
联系地址↓
苏州市工业园区东环路 1118 号第六空间
客服
消息
收藏
下载
最近























