查看完整案例


收藏

下载
Casas, Nova Lima, Brasil
设计师:Bernardo Horta Arquiteto, Meius Arquitetura
面积:169 m²
摄影:Daniel Mansur
提供协助:DuPont, Arcelor Mittal, Deca, Eucafloor, Flasan, Graphisoft SE, Mathiesen®, Trimble Navigation
负责建筑师:Bernardo Horta, Giulianno Camatta, Guilherme José
Equipo De Proyecto:João Pedro Lacerda, Artur Lacerda, Thomaz Marcatto
Ingeniería Concreto :Alls Engenharia
Ingeniería Lsf:Marília Monteiro
Paisajismo:Marília Monteiro
合作者:Maurício Laje
设计师描述 | Designer description:
La casa está ubicada en un condominio en Nova Lima, un municipio de la región metropolitana de Belo Horizonte, a 25 kilómetros de la capital de Minas Gerais. Su volumetría simple consiste en dos cajas rectangulares con dimensiones idénticas y revestimientos externos que se superponen por un diseño perpendicular. El contraste entre la construcción y la presencia del paisaje delimita el espacio construido y se apropia del paisaje sin competir con la naturaleza, asumiendo la intervención humana.
El verde de la vegetación y el azul del cielo transforman el paisaje y rodean la casa, impregnando los espacios. Las grandes aberturas enmarcan y dirigen las vistas a los árboles preservados circundantes, mientras que la vegetación garantiza la privacidad y sombrea los espacios internos. Las caras externas del diseño lógico y recto, cubiertas con azulejos metálicos corrugados, contrastan las formas orgánicas y la materialidad de la naturaleza.
Al valorar las áreas externas tanto como los espacios internos, la implantación aprovecha las dimensiones del nivel disponible y diseña un patio entre los dos sectores:íntimo y social. La superposición de los volúmenes libera la mayor parte del área plana de la tierra para el uso del espacio externo contiguo al bloque social del programa.
Una gran puerta corredera abre los espacios de la cocina y la sala de estar al rellano, fomentando el uso colectivo de los espacios y proporcionando un posible uso simultáneo, externo e interno. La parte íntima del programa, tres dormitorios, una oficina y baños, está aislada del área social y posiblemente es ruidosa para un segundo piso. Las circulaciones horizontales y verticales actúan como una barrera entre los espacios y las aberturas de los otros ambientes que apuntan a la vegetación nativa y a la orientación sur del lote.
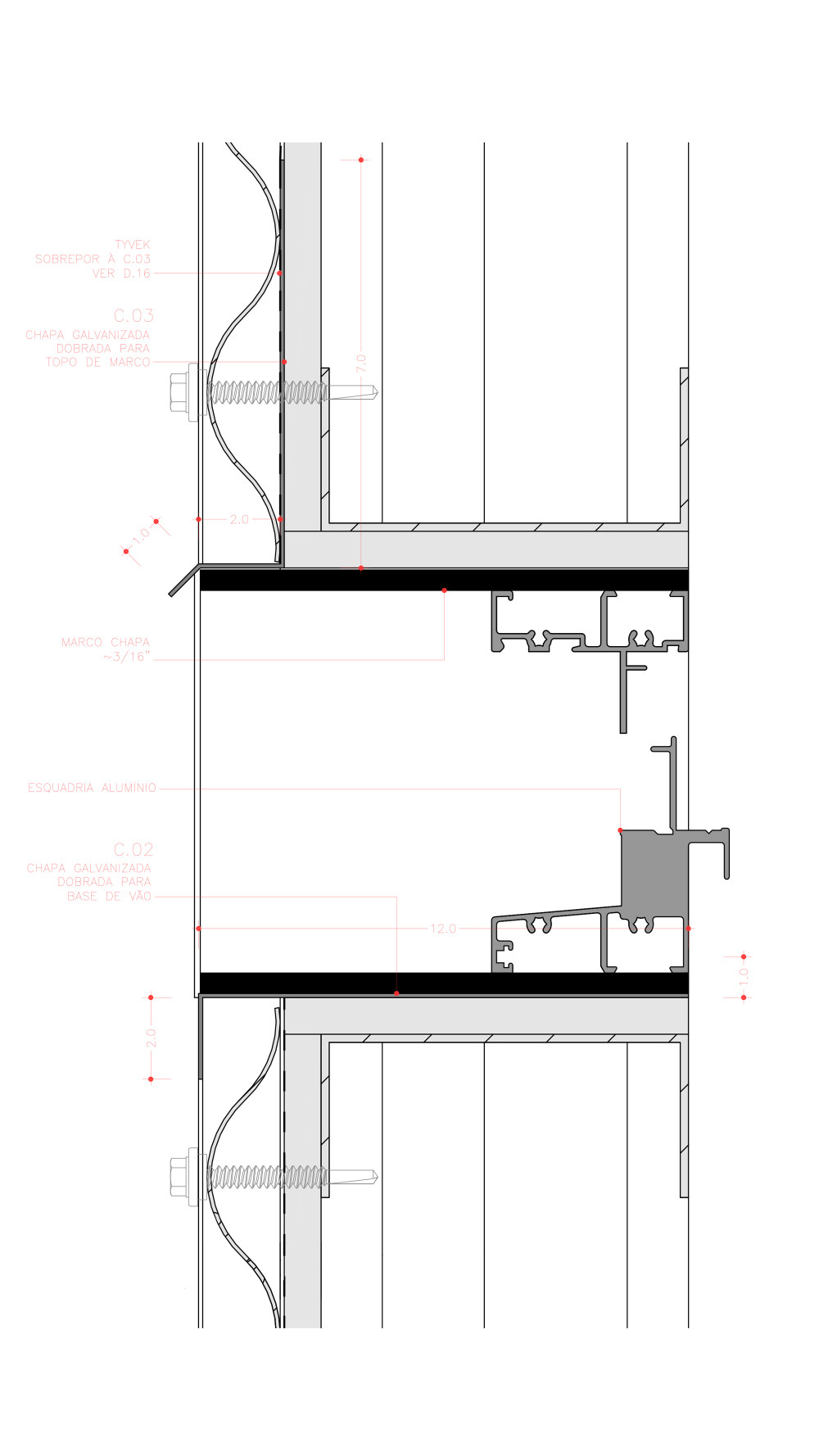
La casa fue diseñada en base a una lógica estructural mixta compuesta de perfiles de acero pesado, que estructuran el segundo piso, acero ligero (Light Steel Frame - LSF) y concreto. La malla metálica que utiliza perfiles de acero conformados en frío constituye la caja estructural completa en el primer y segundo piso. Las abrazaderas, los pernos de anclaje, las placas de conexión y el refuerzo son parte del kit de ensamblaje fijado solo por tornillos.
En el sistema de ensamblaje utilizado, las piezas vienen con el dimensionado exacto de acuerdo con el diseño estructural y con los agujeros ya hechos para conectar las piezas, evitando recortes y restos de materiales en el trabajo. Las fachadas externas, así como la estructura del techo, estaban cubiertas con una manta impermeable, asegurando la estanqueidad contra la presencia de agua o humedad. Para el aislamiento térmico y acústico, se utilizó el sistema sandwich en las paredes, formado por placas de yeso, lana de roca, losas de aglomerado y membrana permeable.
Tomando como premisa el uso de los materiales descritos anteriormente, la casa se compuso de materiales que aportaron agilidad en su montaje.
项目完工照片 | Finished Photos
设计师:Bernardo Horta Arquiteto
分类:Casas
语言:西班牙语
阅读原文
客服
消息
收藏
下载
最近
































