查看完整案例


收藏

下载
范思哲
(VERSACE)于1978年在米兰创立,品牌具有鲜明的个性:强调快乐与性感,拮取古典贵族风格的豪华、奢丽,加之流行文化的直露与大胆、激情与热烈。VERSACE品牌所衍生出的瓷砖系列,沿袭其一贯的高贵与绚丽,无可挑剔的质感与品质,时尚与权威性的设计,尽显极尽优雅和极致奢华。
项目名称:意大利范思哲瓷砖·中国·郑州红星美凯龙旗舰店
项目地点:中国 郑州
主案设计:贾利刚 张雨
软装设计:河南觅境家居设计有限公司
项目摄影:张雨
竣工时间:2021年2月
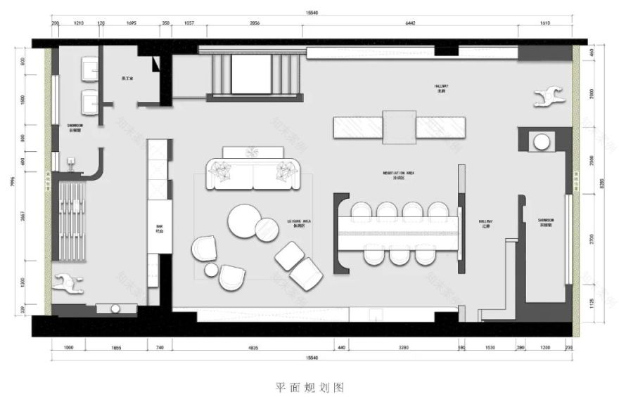
平面图
|
Plan
入口 | Entrance
过廊 | Hallway
该项目是艺术且前卫的场景设计,大胆、迷人,梦幻,纯粹又不拘一格。通过趣味的雕塑增添空间的戏剧化氛围,在审美上给人一种异轨,如艺术馆般的展厅,更好的烘托产品的艺术性与品质的同时强调产品本身与空间的融合。
主廊 | Hallway
将展厅转化为一个体验空间,摆脱传统零售空间的模式,旨在促进消费者去认知、理解和传播品牌、设计及艺术。
明亮,充满活力的蓝色调覆盖墙面,包裹家具,与空间的橙色和木质搭配,蓝色表面以明亮的能量渲染整个空间,
在消费者眼中营造梦幻般的空间场景。
洽谈区 | Negotiation area
尝试着把新鲜、大胆的想法表达于软装的各个方面,以视觉对撞来产生强烈戏剧性的空间体验,金属、布艺、陶瓷等元素不相似却又能以一种统一的语言来讲述空间故事。
休闲区 | Leisure area
这是一个能够激发对话和交流的区域,设计团队给予这个区域很多独特的设计细节,经典的美杜莎头像和希腊回纹象征着奢华与前卫、优雅与神秘,多彩的印花和巴洛克美学等元素将时尚与艺术精妙结合。打造激发好奇心的和产生强烈对比的空间环境,提供一个使人沉浸和愉悦的氛围。
吧台 | Bar
Art Deco风格的色彩明亮且绚烂,有着强烈的对比和冲突,视觉震撼力极强,常常使用原色和金属色彩搭配,如鲜艳的正红色、金黄色、宝石蓝色、橘色和金属色等,绽放着迷人且强势的效果。此外,家具、布艺、窗帘、壁画、吊灯等单品也以丰富多彩的颜色呈现,突出戏剧化的空间美学节奏和高级感。
后橱窗 | Showroom
范思哲瓷砖打造的空间,是一种生活态度,一种具有高贵品质的优越生活方式,一种格调与品味的象征,同时也是一种对比强烈、反差极大的美学风格,我们希望通过设计将视听觉艺术巧妙融合在一起,以五感之悦邂逅艺术空间,形成VERSACE独特且鲜活的体验过程,在此感受到属于VERSACE独有的温度和品质。
主案设计师 | The main designer of the project
贾利刚
JIA LI GANG
高级室内建筑师/创意总监
佛山例外空间创意设计工程有限公司
范思哲瓷砖(中国区)品牌战略合作设计师
贾利刚,建筑与室内设计工作者,用空间语言构筑艺术、表达态度。同时他是穿梭在城市与乡村之间的斜杠青年,在郑州的黄河边,和朋友一起打造经营着一家只有七间客房的小民宿,也是距离人间烟火最近的民宿主。民宿取名“柒间半”。
他最喜欢的状态是“行走”,因为旅行和游走,可以在千山万水的形色中,看见自己。他常说,走在城市,繁华不止一面,走在田野,平静回归内在,他生命的维度与深度,就在这些时刻呈现,进而转化为对设计和生活的理解
:人与自然和平共生,人和人同频相遇,自然而然,方可极度舒适。
不够爱奢华就不要碰VERSACE
因为这才是它的魅力
极致诱惑 顶级奢华
— END —
客服
消息
收藏
下载
最近







































