查看完整案例


收藏

下载
☝点击蓝色小话题,可浏览同小区话题的其他作品。DESIGN 设计效果
新中式风格更多地利用了后现代的表现手法,颜色上以素白色为主,体现中式的古朴与端庄,整个空间传统中式中透露着现代的时尚。
现代中掺杂着古典韵味,以东方的美学掌控整个空间,显出大家风范。
将餐厨空间打开,拆除原有的墙体,整个空间都呈现开放式的状态,使其通透明亮。
地下会客厅做了挑空处理。整个地下室以素白色为主色调,提亮空间的明度。深色的柜体与墙面刻画出层次感,木纹的质感展现出淳朴、自然的风情。
孩童房低饱和色调,淡淡的皮粉色似有似无,柔和的暖色系给空间带来更多的温馨与温柔。主卧设计回归到中式风格,简单的线条,极简窄框玻璃推拉门,是从卧室走向另一个空间。
DESIGN 设计效果
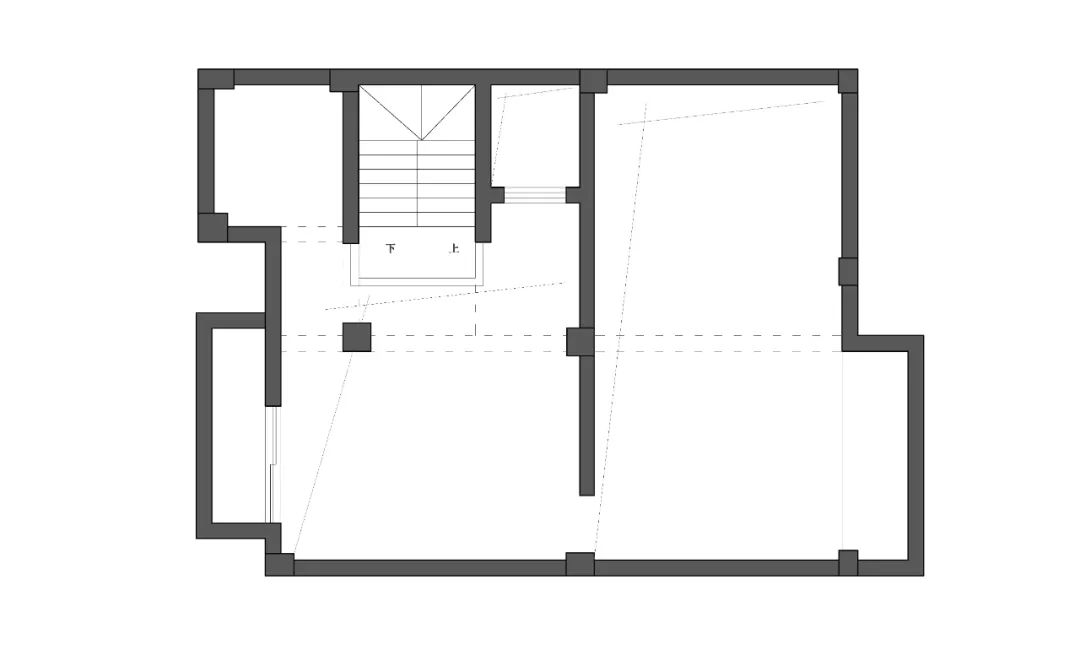
△ 负二楼
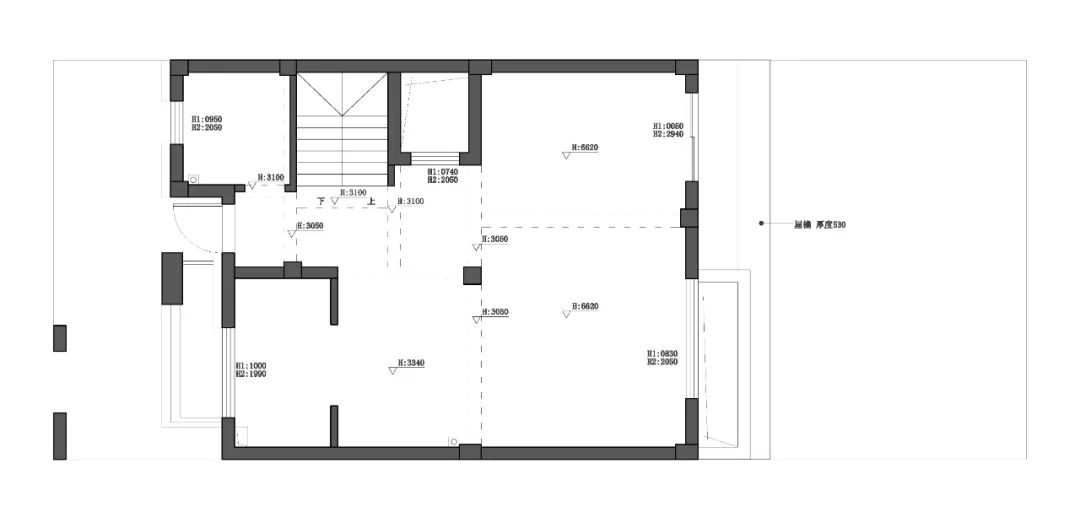
△ 负一楼
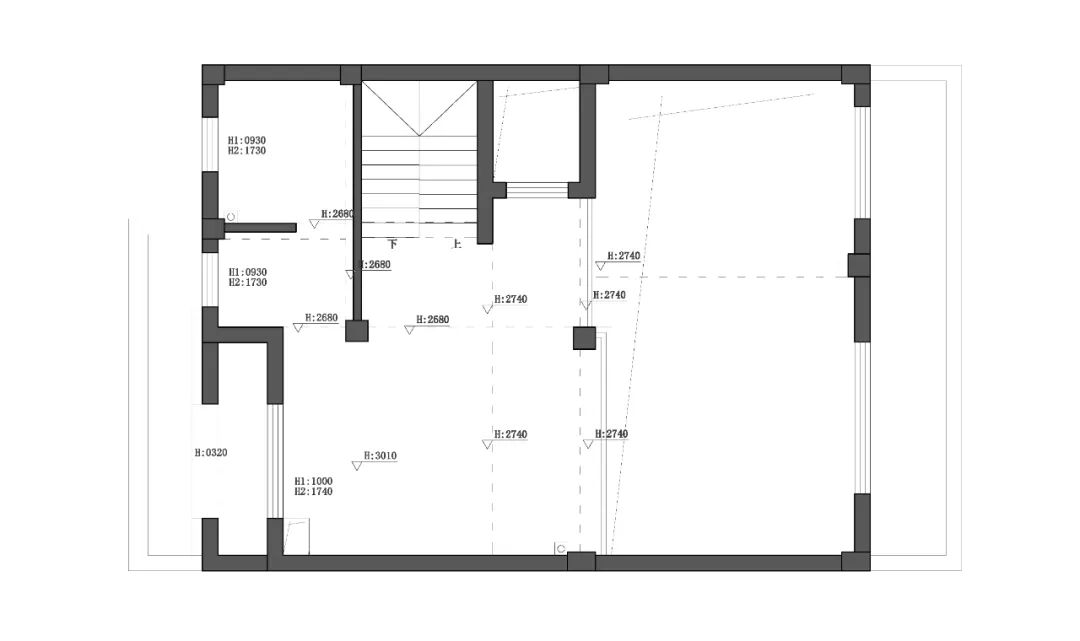
△
一楼
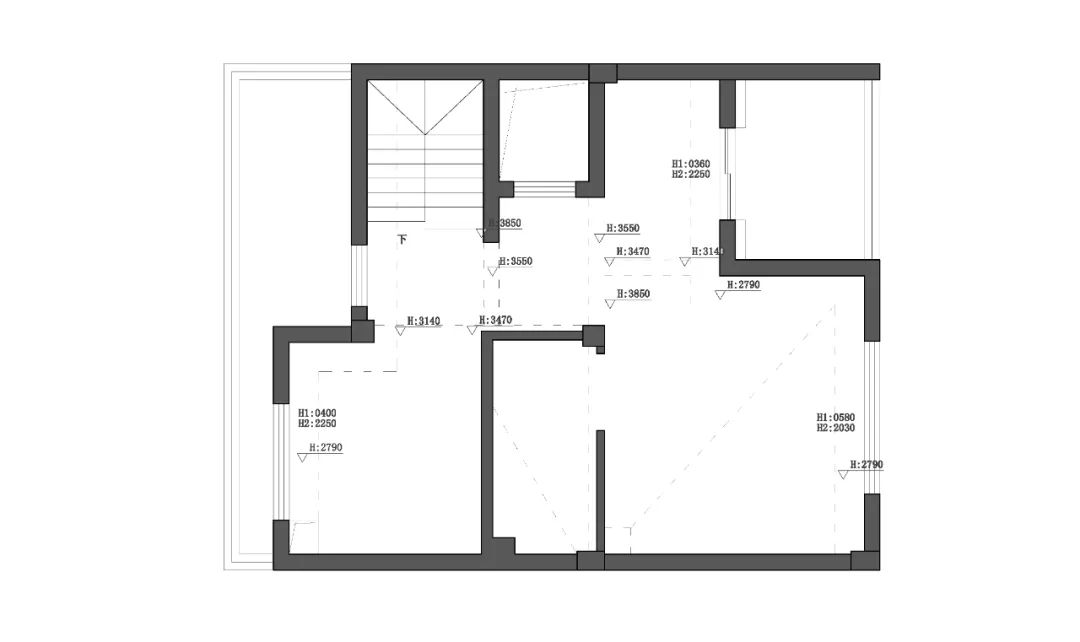
△二楼
△三楼
关注我
免费预约量房
设计传承价值 服务引导品质
END
Thanks for watching
设计传承价值 服务引导品质
线下门店地址:湖州市吴兴区潘家廊景观街区 3 号楼
实景案例欣赏
天鸿天际 178 方——极简黑与白
太湖阳光假日 420 方——Latitia
十里春风 215 方——慢说
西山辰院 407 方——Havana
西山宸院 407 方——一生独一
大港御景新城——给自己的歌
大港御景新城 506 方——轻奢是一种生活方式
钱溇自建房 820 方——一杯清茶,共待流年
天元颐城 197 方——层叙
西西那堤 396 方——绿野仙踪
客服
消息
收藏
下载
最近





































