查看完整案例


收藏

下载
☝点击蓝色小话题,可浏览同小区话题的其他作品
DESIGN
设计效果
沉寂的内心需要一点色彩的激活,斑斓的内心也需要一点安静的沉思。暖灰色,这种素雅的色彩极具治愈力,亲和力十足的颜色,加剧了温馨氛围的演化。能够在碰撞中融合多种风格,优雅内敛之中展露生活淡淡的慵懒。
当传统的现代简约,遇上做旧的肌理漆,空间处处流露着淳朴、低调的生活品味。回归自然、返璞归真,哑光材质的家具展现,迎合明亮光线,更显大气与质感。而整体上淡雅、统一的色调则更彰显出空间设计的一致性,营造出温馨、舒适的情怀与格调。
PU 材质的水泥砖代替传统的不锈钢、玻璃等材质的隔断,轻巧且造型丰富。细腻的材质,用最简单的颜色展示最真实的一面。
餐厅简洁的外表下,朴实无华。简化的云朵吊灯营造了空间温馨的画面。西厨吧台的添置增加了西厨的操作台面,同时丰富了空间感。
地下室利用采光井,做了挑空层。艺术漆刷满的墙面符合现代极简的设计理念,刚好适合用于墙面投影。一根顶天立地的预埋线性灯拉长了空间层高。一张南瓜色懒人椅,如蜻蜓点水,在空间中成为亮眼的陪衬。
暗色调的酒吧台以黑色为主,不同程度深浅的灰色相互穿插着,展示空间的层次感。
粉色是女孩房的色彩标志。灰粉色家具、软装等相呼应,打造现代版的公主房。
主卧依旧简简单单,极简的设计却高级感满满。床背景清晰的线条,结合墙体微水泥,在灯光照片的氛围下,提升了空间品质。
两开间卧室,一半作为主休息区,一半作为衣帽间及观影区,恰到好处的设计,一室多用。
强烈的对比色让空间具有层次感,简洁的空间打造简单的生活方式,浅色调在自然光线下更加明亮。
DESIGN
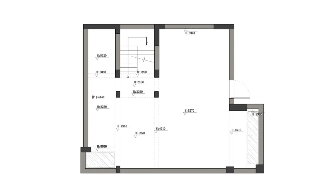
原始结构
▲地下室
原始框架
▲地下室
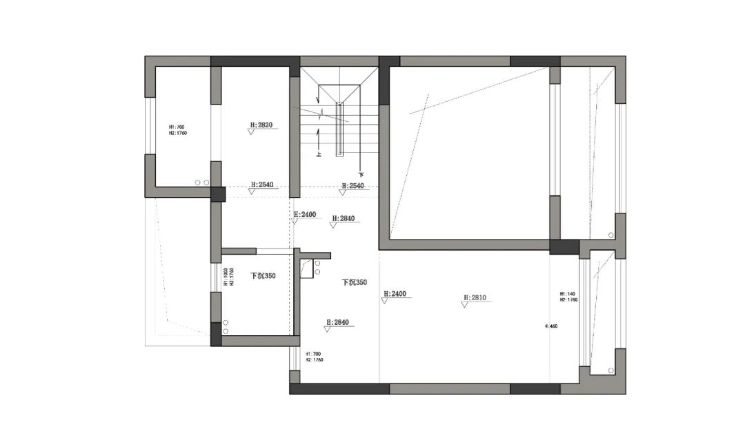
原始框架
▲一楼
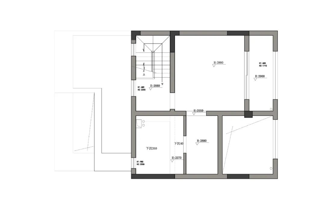
原始框架
▲二楼
原始框架
▲三楼
原始框架
关注我
免费预约量房
设计传承价值 服务引导品质
END
Thanks for watching
设计传承价值 服务引导品质
线下门店地址:湖州市吴兴区潘家廊景观街区 3 号楼
实景案例欣赏
天鸿天际 178 方——极简黑与白
太湖阳光假日 420 方——Latitia
十里春风 215 方——慢说
西山辰院 407 方——Havana
西山宸院 407 方——一生独一
大港御景新城——给自己的歌
大港御景新城 506 方——轻奢是一种生活方式
钱溇自建房 820 方——一杯清茶,共待流年
天元颐城 197 方——层叙
西西那堤 396 方——绿野仙踪
客服
消息
收藏
下载
最近


























































