查看完整案例


收藏

下载
☝点击蓝色小话题,可浏览同小区话题的其他作品。DESIGN 设计效果
法式设计散发着精致而轻松的氛围,我们能够感知到他的优雅与浪漫。棉花糖般的白色充斥着这个空间,现代式的奢美与色彩掩映间的柔美,在线条的装饰中展现着一份令人心动的温柔与华美。
沙发浅灰色的布艺材质与空间融为一体,流畅的线条衬托出层次,充分展现空间的立体感,对称的背景设计体现了法式的一大设计特点。
在餐厨这个空间,设计师将墙体拆除,打造空间一体化。
多种低饱和度色彩的组合,丰富空间,营造浪漫、活跃的气氛。
挑空的地下层通过采光井采集更多的光线照亮地下空间,通体白色的墙面结合原木质感的层板柜体,自由且随性。
主卧色系是百搭的浅灰色,它有着低调温婉的属性。浓郁的酒红色玻璃门显得格外深情。卫生间是半墙涂料+半墙瓷砖的设计,强烈的对比色增加了空间的层次。菱形的地砖彰显个性,仿佛带我们进入了上世纪的中古时代。
DESIGN
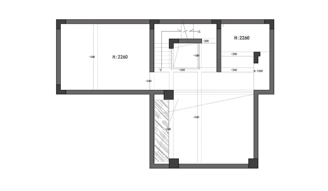
原始结构图
▲地下室
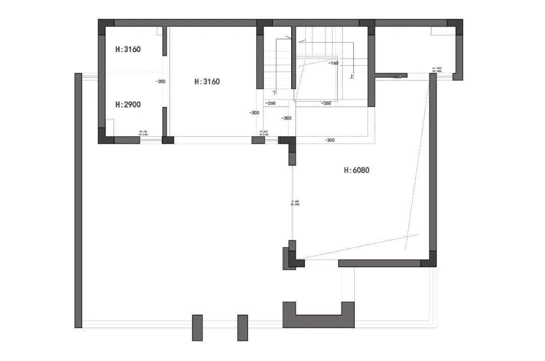
原始框架
▲地下室
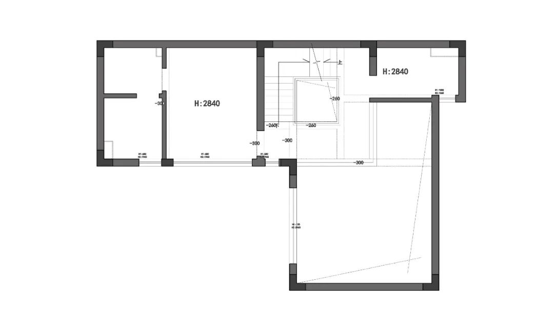
原始框架
▲一层
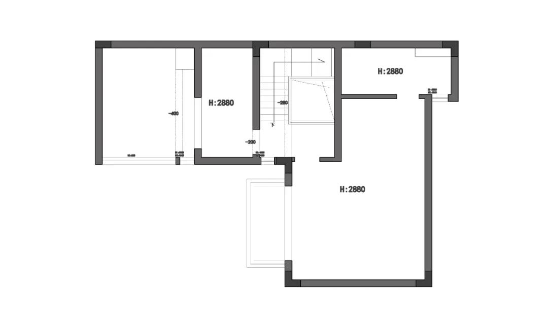
原始框架
▲二层
原始框架
▲三层
原始框架
关注我
免费预约量房
设计传承价值 服务引导品质
ENDThanks for watching
设计传承价值 服务引导品质
线下门店地址:湖州市吴兴区潘家廊景观街区 3 号楼
实景案例欣赏
天鸿天际 178 方——极简黑与白
太湖阳光假日 420 方——Latitia
十里春风 215 方——慢说
西山辰院 407 方——Havana
西山宸院 407 方——一生独一
大港御景新城——给自己的歌
大港御景新城 506 方——轻奢是一种生活方式
钱溇自建房 820 方——一杯清茶,共待流年
天元颐城 197 方——层叙
西西那堤 396 方——绿野仙踪
客服
消息
收藏
下载
最近








































