查看完整案例


收藏

下载
☝点击蓝色小话题,可浏览同小区话题的其他 DESIGN 设计效果图。
越来越多的年轻人热衷于具有古典韵味的中国风,扔掉笨重的红木家具,取而代之的是带有中国文化底蕴的原木家具,空间呈现清新淡雅,脱俗儒雅的国风效果。
一楼入户处设计采纳了中式门廊的特点,传统的白墙没有饰面装饰,简单而纯粹。
相对于其他风格,新中式有着深厚的文化底蕴,巧妙地与现代风格混搭,散发着简洁优雅、禅意的东方之美。
取其精华去其糟粕。褪去传统中式的繁琐与沉闷,大面积的留白设计,以简约利落的形式展现出来,含蓄典雅、沉静悠然。
DESIGN
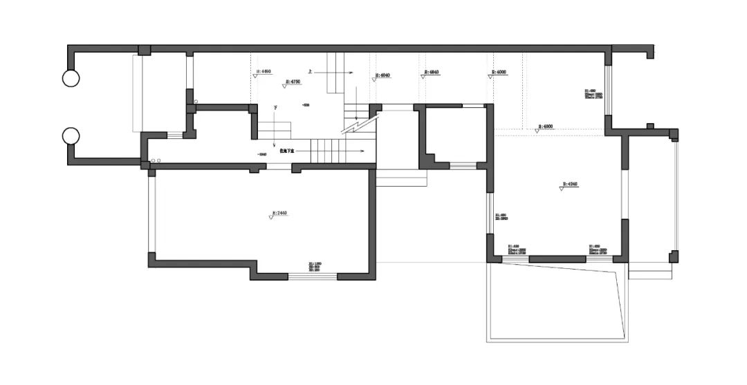
原始结构图
▲地下室
原始框架
▲一楼
原始框架
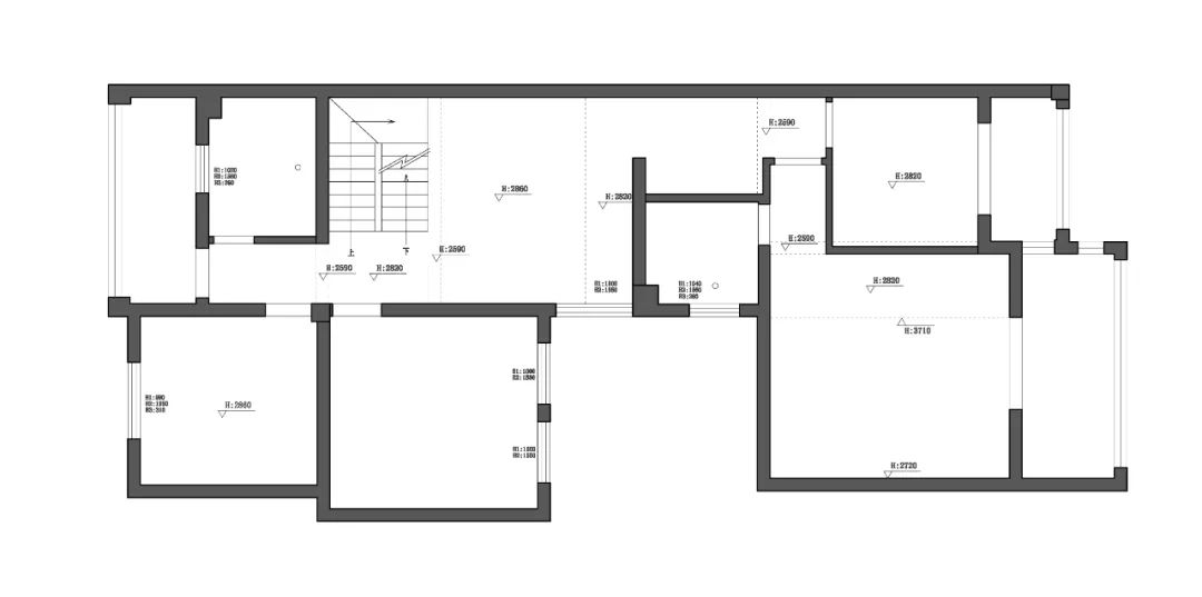
▲二楼
原始框架
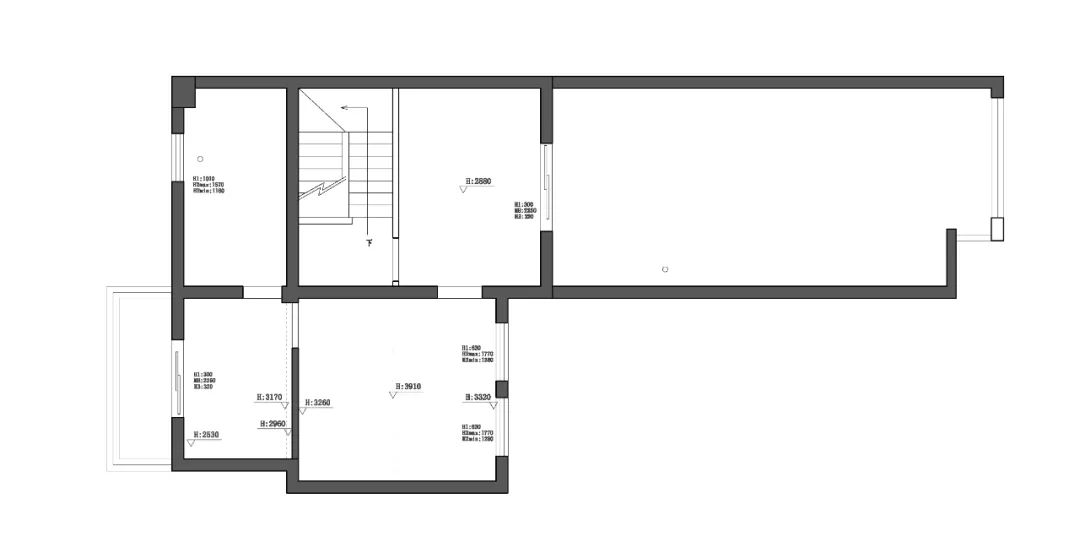
▲三楼
原始框架
▲四楼
原始框架
关注我
免费预约量房
设计传承价值 服务引导品质
END Thanks for watching
设计传承价值 服务引导品质
线下门店地址:湖州市吴兴区潘家廊景观街区 3 号楼
实景案例欣赏
天鸿天际 178 方——极简黑与白
太湖阳光假日 420 方——Latitia
十里春风 215 方——慢说
西山辰院 407 方——Havana
西山宸院 407 方——一生独一
大港御景新城——给自己的歌
大港御景新城 506 方——轻奢是一种生活方式
钱溇自建房 820 方——一杯清茶,共待流年
天元颐城 197 方——层叙
西西那堤 396 方——绿野仙踪
客服
消息
收藏
下载
最近































