查看完整案例


收藏

下载
LONGTING DESIGN
生活是创意的来源,创意源于文化,创意源于自己。
—
项目信息
Project information
项目名称|海伦堡·星悦
设计师|何梦旦
设计风格|现代简约
项目面积|395㎡
房型|排屋
该案例的设计打破常规,地下室墙面运用了仿石材饰面,这是种新型材质,轻薄,可透光,如外墙岩石般质感,凹凸不平。挑空空间的顶面两条天际线反向打光,照射出顶面圆弧造型。
细腻的饰面与粗狂的岩石材质作为墙面装饰相结合,形成鲜明对比。素色的色彩淡雅低调,优雅从容。海军蓝的边柜与茶几,让平静优雅的空间多了一些动人的波澜,更显尊贵。
银灰色的地面,既有古典的风韵,庄重而沉稳,又有洗尽铅华后的凝练,简约而时尚。它的色彩像夕阳下飘雪的世界,银装素裹里,有着余晖洒落的光晕和温度。
敞开式书房波浪形顶面造型,如海浪般起伏连绵。
酒红色的开放柜直入眼帘,与素色墙面彰显层次感。
以亮白色为基础打造了一个明亮的空间。典雅的灰褐色作为辅助色,营造出温暖柔和的客餐厅。它的视觉体验既不高冷,也不是那么张扬,随着光线的变化令人沉醉于其中。
金属色的融入给空间带来了时尚感,红色的亚克力角几,让素色典雅的空间,展现出灵动性。
—餐厅
—
客卧
饰面
平
板与
栅格
造型
错落有致,让背景更有层次感。
酒红色搭配柔和的沙色,在黑色的藤编家具辅助下,打造复古色调,营造古典浪漫空间。
—
小孩房
灰绿色,轻柔飘逸的气质中带着蓬勃的生命力,微醺的色调结合纯情与唯美,让人眼前一亮。藤编家具给空间带来自然气息,灰绿色与沙色,又是传统的复古色搭配,复古色让人迷之沉醉。
圆弧线形让空间更加柔和。
—
起居室/休闲阳台
—
主卧
红与白,一组源于宫廷贵族的配色
精巧的配色
让古典的浪花在现代的潮流中,优雅的绽放
砖红色是一款极具优雅特性的色彩,它贴近自然,低调而洒脱,给人一种如沐春风的感觉。结合乳白色的饰面柜门,简单的线条,色彩之间的对比,营造出不同的层次感。
—
卫生间
原始结构图
Original structure
—
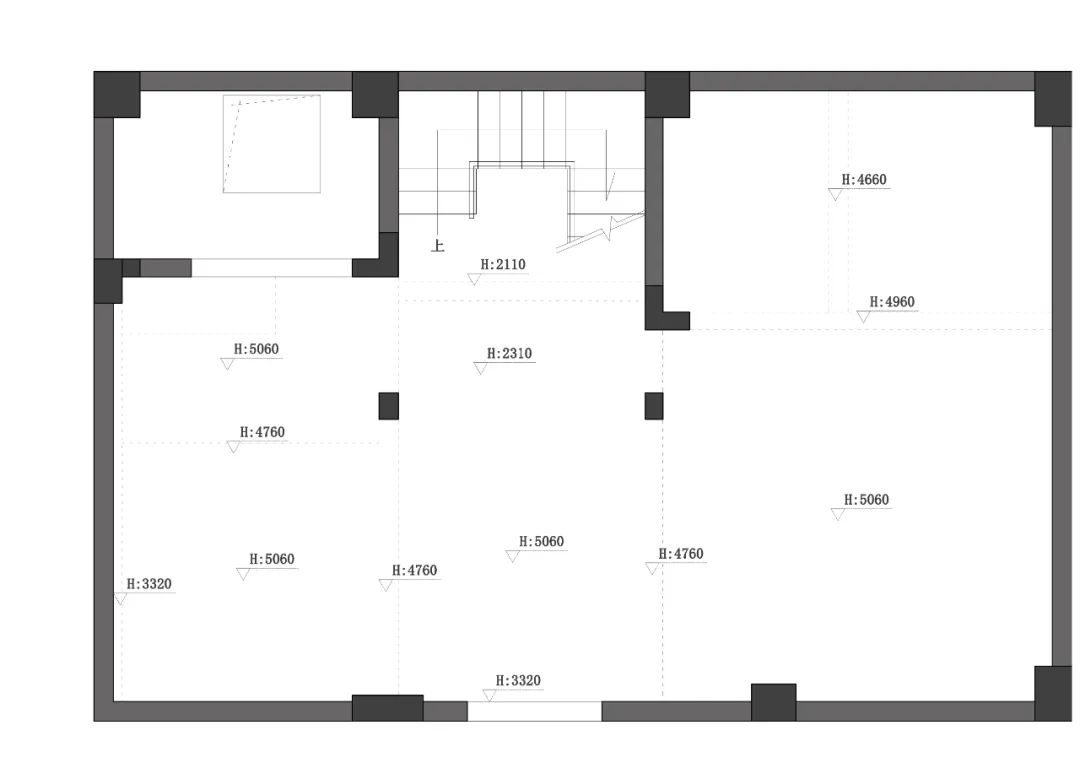
地下二层原始框架
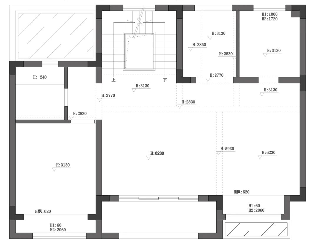
地下一层原始框架
地下一层原始框架
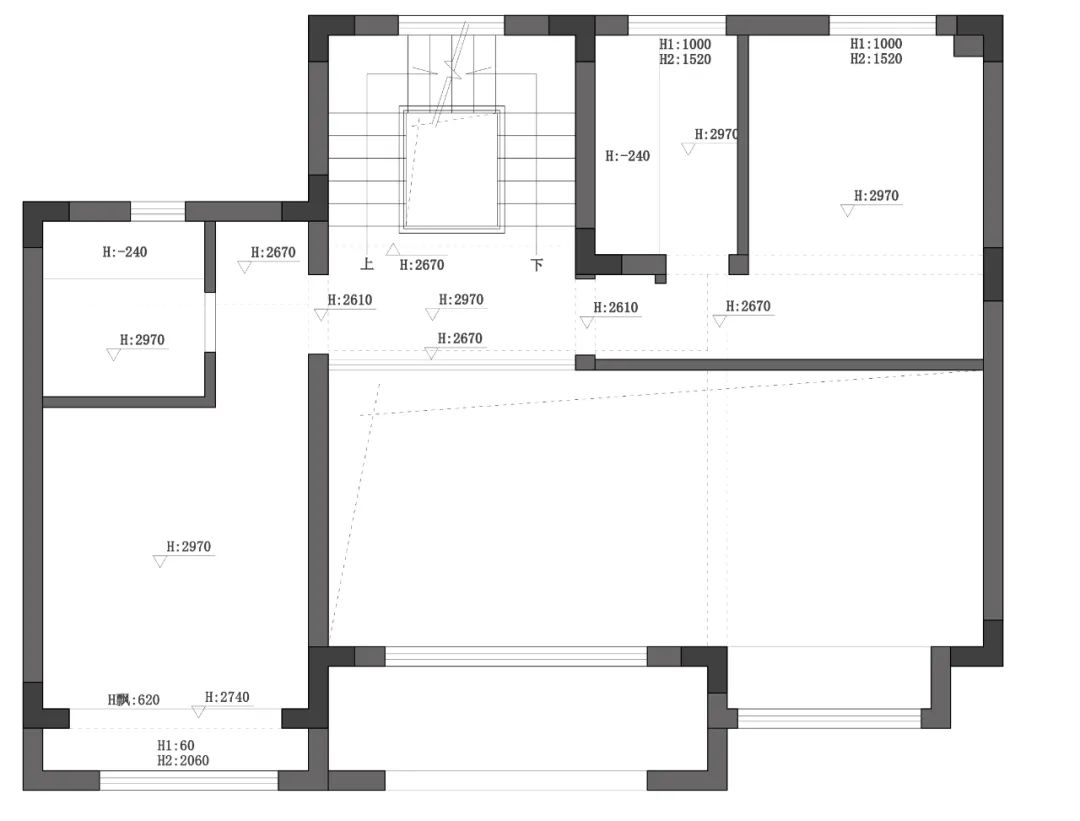
二层原始框架
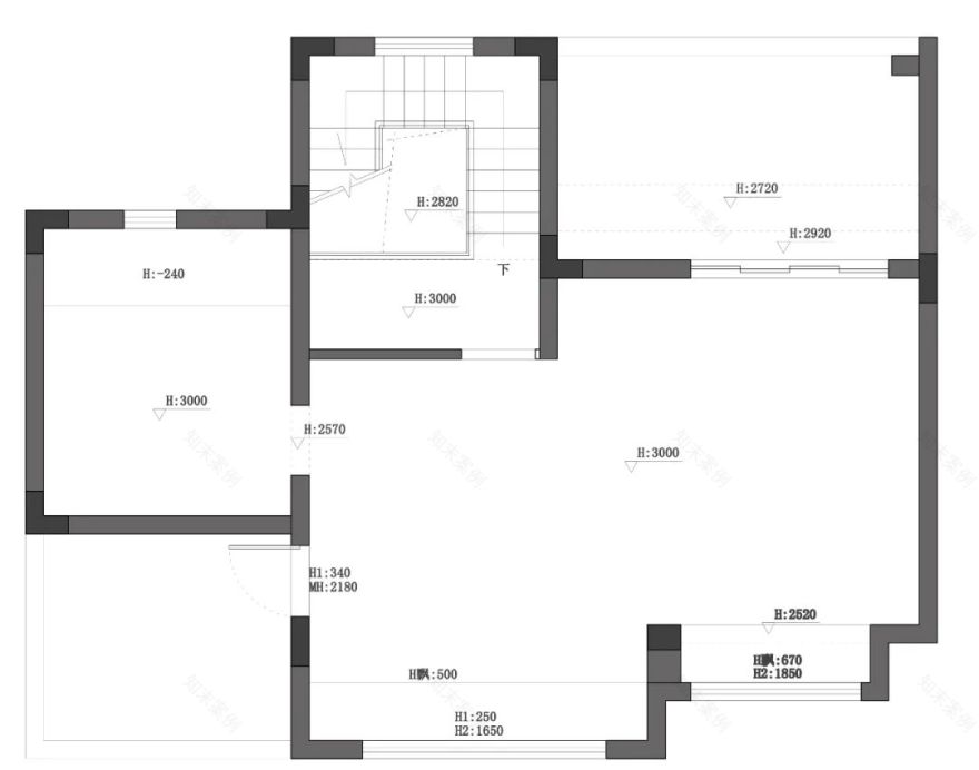
三层原始框架
官方
设计传承价值 服务引导品质
END
Thanks for watching
如果你想
了解更多关于设计和公司信息
公司地址:潘家廊 3 号
营业时间:周四至周二 9:00-20:00
实景案例欣赏
客服
消息
收藏
下载
最近

















































