查看完整案例


收藏

下载
点击上方蓝字关注我吧!
案例介绍
——————
项目地址:湖州天际玖墅
项目面积:420㎡
设计风格:港式轻奢
项目设计:陈会斌
主要用材:灰色大理石瓷砖、多层实木油漆木饰面、不锈钢线条、磁吸灯、防炫目射灯、大理石背景、米色硬包、预埋龙头、鱼骨拼地板等
设计师
Designer
陈会斌
设计碎碎念
——————
【关于整体改造】
地下室和一楼的入户门都进行了位置调整,使得动线更加舒服;
一楼进行了扩展,将南面的走廊包进了客厅,一楼公共区域面积更大;
三楼在跟业主沟通达成一致后,取消了洗晒的功能,将阳台改造成了男主人看书休息看足球比赛的休闲区,
洗晒放到了一楼的院子里。
【关于风格】
男女业主,平时喜欢出去旅游,住各种五星级酒店,酷爱酒店风格。
因此设计师的风格走向主要是以港式轻奢为主,然后色系上偏深灰色,给人以稳重感却又不失档次奢华。
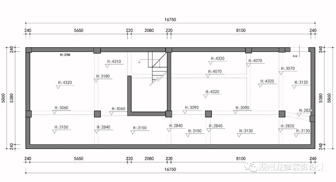
地下室设计
Design
▼地下室原始结构图
▼地下室平面布置图
地下室的进门调整了位置,原始的入户方向,要经过一条很狭长的过道,才能上楼梯电梯,很浪费空间,动线也不舒服;调整后,进门就是楼梯电梯,非常便利。
▼多功能活动室
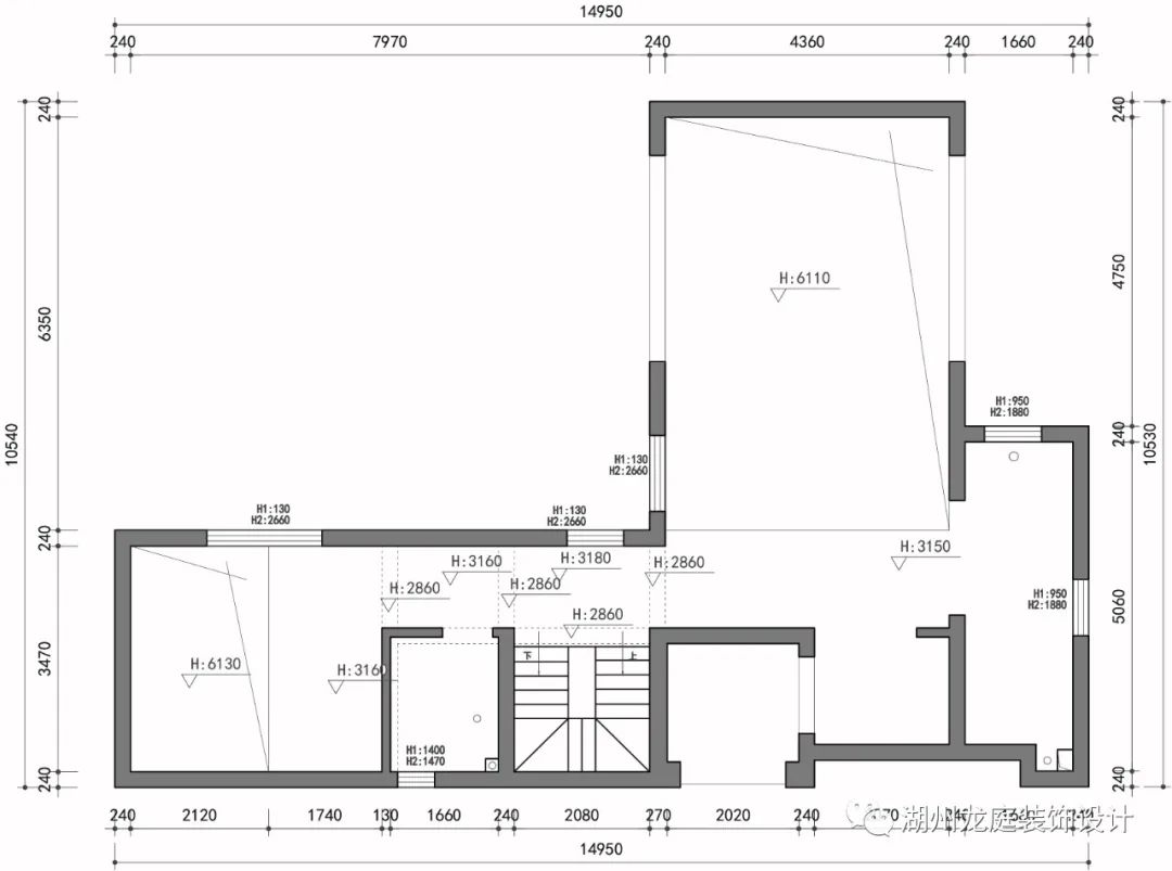
一楼设计
Design
▼一楼原始结构图
▼一楼平面布置图
一楼修改了北边的入户门位置,将南面的走廊也进行了拓展,包进了客厅,客厅看上去更加大气。
原始厨房是细长型的,经过改造后,得到了一个舒服的中厨房和一个自由开放的西厨。
▼客餐厅
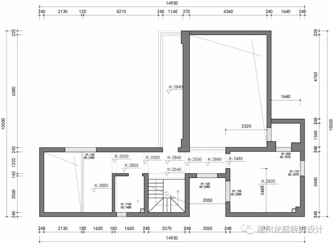
二楼设计
Design
▼二楼原始结构图
▼二楼平面布置图
二楼改动不大,在保留餐厅区域挑空的基础上,做了三个房间。
▼二楼房间一
▼二楼房间
二
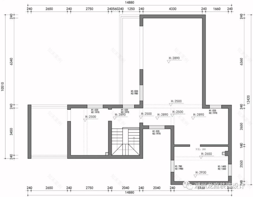
三楼设计
Design
▼三楼原始结构图
▼三楼平面布置图
三楼取消了原来开发商设计的洗晒阳台,全部包进来作为书房休息室使用,平时晚上男主人可以一个人在里面办公,工作累了,可以”瘫”在一边的休闲椅上看看足球投影,非常惬意。
书房是独立的。另外的,卧室,超大衣帽间,超大卫生间,超大露台都组成了一个超级舒服的主卧大套房。
▼主卧
▼主卫
▼书房
“通过好的设计,
能带给业主一种更好的生活方式,
一直是我们所追求的。”
END
设计传承价值,服务引导品质
龙庭,期待与您合作!
关注龙庭设计
Add:
湖州市潘家廊3号楼
湖州市织里镇汇德国际5楼
Work Time:
9:00-23:00
周三公休
往期案例赏析
142m²织里上品学府 现代风格
170m²长岛府现代法式轻奢
332m²织里汇德国际 光合美肌美容院实景照片
337m²天际玖墅现代排屋
420m²西山宸院排屋—美式硬装混搭新中式家具
115m²永晖壹号院现代轻奢
360m²西山宸院现代轻奢排屋
147m²云峰苑现代原木
420m²西山宸院现代排屋
197m²天元现代大平层
404m²祥生群现府现代轻奢排屋
720m²太湖阳光假日法式宫廷风排屋
385m²佳源都市现代排屋
224m²西西那堤现代排屋
350m²富力城现代排屋
350m²富力城现代排屋
420m²天际玖墅现代轻奢排屋
305m²富力湖州壹号现代排屋
160m²龙溪翡翠现代轻奢中式(内附手机实拍)
115m²永晖壹号现代轻奢
360m²太湖天地新中式排屋
262m²天际复式现代禅意中式
160m²大港现代简约
350m²天际玖墅现代简约
350m²西山宸院奢华宾利
200m²大港现代简约
108m²永晖壹号现代和风
350m²西山宸院现代排屋
350m²西山宸院现代禅意排屋
455m²西山宸院现代排屋
407m²西山宸院 现代简约排屋
407m
²西山宸院现代简约排屋
350m²西山宸院 美式轻奢排屋
407m
²西山宸院现代轻奢排屋
350m²西山宸院现代简约排屋
350m²西山宸院现代中式排屋
390m²天澜湾现代排屋
430m²光明御品现代排屋
420m²太湖阳光假日ins风
420m²西山宸院现代台式排屋
“
”的你,真好看
客服
消息
收藏
下载
最近
































































