查看完整案例


收藏

下载
项目地址
Location:融创西山宸院
项目类型
Type
:
家装
建筑面积
Acreage
:350m²
设计风格
Style
:现代简约+禅意
设计师
Designer
:张永强
主选材料
Material
:大理石、成品木饰面、硬包、地板砖、进口艺术涂料、磁吸灯、LED灯条等等。
设计说明
:吴老师和太太的需求就是要整体大气耐看,主卧要做出大套房的感觉。
张永强老师在设计整套作品的时候,并没有单独突出某一个面的设计,而是将所有的面统一考虑,去掉样板房的软装化,还原到真实生活本质,希望为吴老师家打造一个
“舒服,雅致”
的空间。
改造方面,吴老师生活中就喜欢锻炼,最后不考虑电梯,而是将原有的楼梯敲掉,在老位置重新浇筑,做得更加舒服。
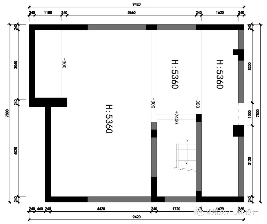
地下室设计
Design
▼地下室原始结构图
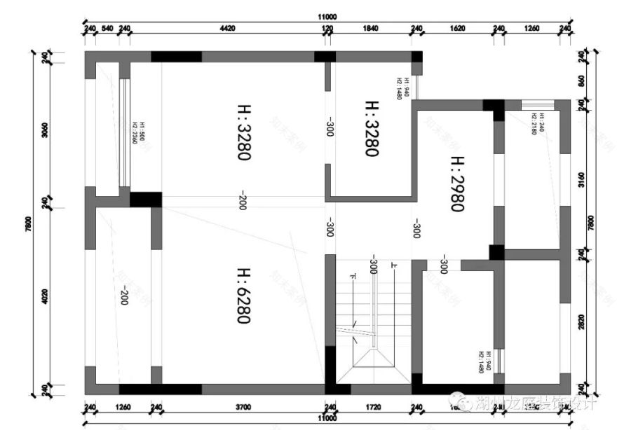
▼
负二楼平面布置图
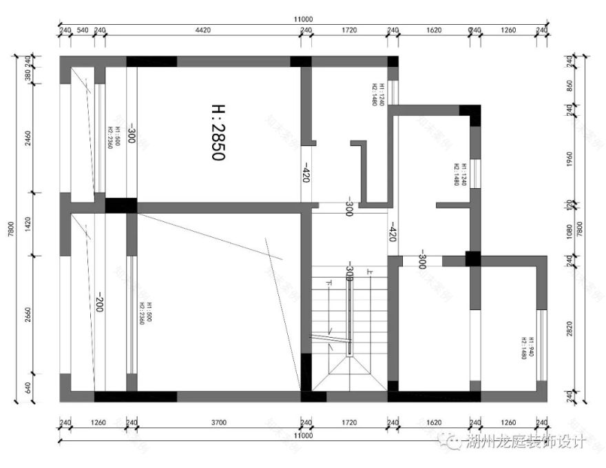
▼
负一楼夹层平面布置图
▼地下室休闲会客厅
西山宸院地下室如果夹层现浇起来后,地下负二层的柱子是可以敲掉的。但本案的设计中,却选择了保留并加宽,形成了一个进门玄关。
整个玄关以白色涂料为主,去掉了一切装饰,设计师希望人们一进门视觉焦点是绕过玄关,看到后面采光井下面的小景。
▼开放式茶室
一进门右手边是鞋帽柜,黑色的平台可以让人坐着换鞋使用,并且连着灯带一路跟通到电视背景墙直至采光井处,使整体更加连贯。
楼梯下面的最后一步拉宽,形成了一个平台,内藏灯带,平台上方进行造景。
设计师在设计地下室电视背景墙的时候,考虑过很多材质,但后来发现再怎么用其他材质,其实都是形成一块比较突兀的背景,投影幕布一放置,又遮去了许多,倒不如做减法留白。
采光井处,仿片石的瓷砖铺满了墙面,白沙平铺在地面,高仿真植物和真植物交替错落在白沙上。
由于效果图材质表现相对局限,现在
夹层书房的开窗
是用玻璃表示的,等到之后还原落地的时候,是打算采用仿旧的木窗户,加入中国传统文化元素。
沙发和楼梯间的墙,则开了一条横的窗口,颇有中式 里“窥”的味道。
一楼设计
Design
▼一楼原始结构图
▼一
楼平面布置图
一楼厨房调换位置,直接做成一个超级大的敞开式西厨,作为客厅的一个背景亮点。
中岛台则成为朋友来时,品酒聊天以及和孩子亲子互动的地方。
家里常住人口是一家三口,所以总共准备了三个房间,一楼采用挑空,整个空间全部打开,使居住者非常放松自在。
▼客餐厅
一楼中厨房移位到北面扩展区域,原有的位置变成了西厨房,将整个客餐厅的空间打开。原本吴老师对中岛台做保留态度,但看到效果后,欣然一笑,的确不错。
整个一楼空间的色调采用米白色,浅原木色,非常的雅致,没有特别突出的造型,却能让人长久舒服地停留在这个空间里。
以往南进门看过去的楼梯面,设计上不是用木质隔断就是用金属隔断。
这次设计师打破传统,采用了建筑上的构造手法,造了一个悬空的端景,也成了一楼业主最喜欢的设计。
地下室的楼梯采用大理石,一直跟通到西厨以及一楼北边,
南边的客餐厅区域以及楼上的楼梯则采用了地板砖,进行了一个区域的划分。
客厅的电视背景墙则采用了水洗的大理石,与西厨的墙面材质统一相呼应,没有重点突出设计,而是让它和谐地融入一楼整个空间中。
二楼设计
Design
▼二楼原始结构图
▼
二楼平面布置图
▼二楼父母房
父母房整体简单干净,左边的床头柜是采用和衣柜整体订制,右边则是成品床头柜。
▼二楼儿子房
儿子房间的衣柜经过业主同意后,设计在了床头背后,衣柜门形成了一整片的木饰面背景,释放了房间南北的空间,非常自由舒适。
三楼设计
Design
▼三楼原始结构图
▼三楼
平面布置图
三楼主卧,设置了小冰箱,小水吧,夫妻二人平时晚上回到家,在卧室吃个夜宵,聊聊一天的趣事,非常方便。
,偌大的水泥森林中,拥有一个看星星的地方是多么地惬意美好呀~
▼三楼主卧
整个三楼主卧全部打通,形成了一个大套房。
▼开放式书房+衣柜
三楼的承重柱利用柜子加宽隐藏起来,电视背景矮墙则和开放式书房结合起来。
吴老师一看,“嗯,这就是我想要的大套房的感觉。”
虽然没有了衣帽间,但是后面一整排的衣柜储物量其实是不容小觑,满足了入场的需求的。
设计传承价值,服务引导品质
龙庭,期待与您合作!
关注龙庭设计
Add:
湖州市潘家廊3号楼
湖州市织里镇汇德国际5楼
Work Time:
9:00-23:00
往期案例赏析
407m²西山宸院 现代简约排屋
407m
²西山宸院现代简约排屋
350m²西山宸院 美式轻奢排屋
407m
²西山宸院现代轻奢排屋
350m²西山宸院现代简约排屋
350m²西山宸院现代中式排屋
390m²天澜湾现代排屋
430m²光明御品现代排屋
347m²西山宸院现代简约排屋
420m²西山宸院现代台式排屋
客服
消息
收藏
下载
最近







































