查看完整案例


收藏

下载
Casas, Naucalpan de Juárez, México
设计师:AAE / Arquitectura
面积:560 m²
年份:2019
提供协助:Comex, AutoDesk, Grupo Arca, Tecnolite, Trimble, ABB, Chaos Group, KRITARQ
负责建筑师:Arturo Aguilar Espinoza | Javier Díaz
业主:Familia Genda
设计师描述 | Designer description:
Ubicada en una de las zonas más exclusiva de la Ciudad de México, posee riqueza arquitectónica y espacial que se disfruta al recorrer tanto su interior como su exterior, estimulando la mayoría de los sentidos del usuario. Una casa que perdurará en el tiempo y que permanecerá innovadora en su composición y lenguaje.
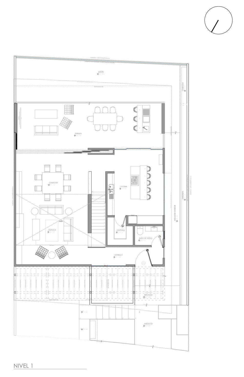
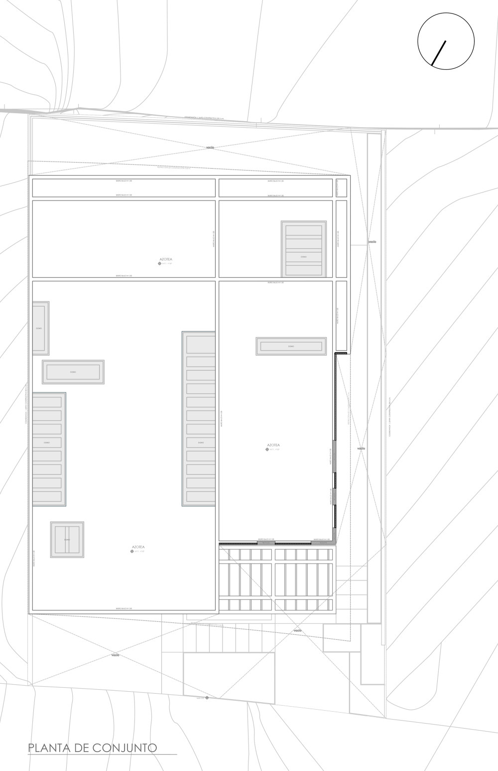
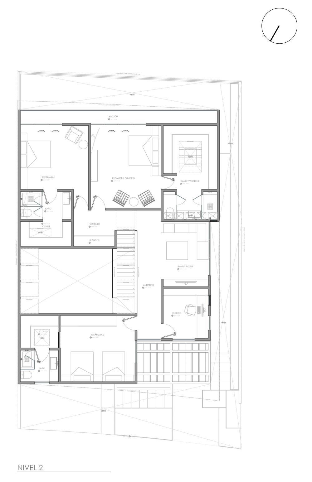
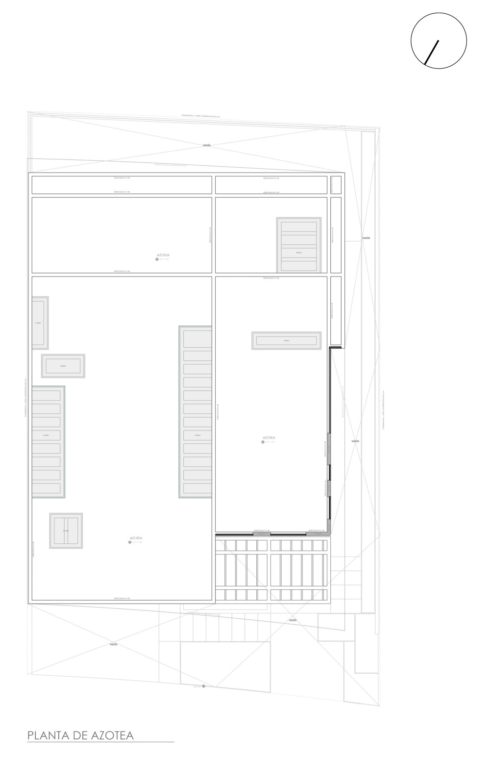
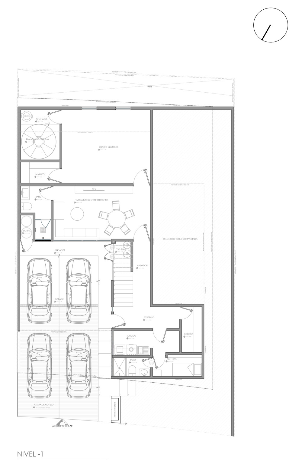
El concepto nace a partir del desplante de un prisma rectangular que alberga la mayor parte del espacio habitable, sobre el cual descansa un volumen irregular en esquema de "L" que genera volados en ambos extremos de su geometría. Empleando materiales naturales y verdaderos plasmados en una composición vertical entre estelas de concreto aparente, que se ligan por medio de elementos metálicos horizontales y qué, en conjunto, integran una composición visual armónica y contemporánea.
La casa responde a un contexto urbano de índole residencial dónde se percibe geometría simple y carácter contemporáneo, integrándose de manera análoga. Priorizando la amplitud de la vista en terrazas y balcones para la contemplación absoluta de la ciudad.
La funcionalidad en su interior fue el principal encargo de la familia, manteniendo espacios abiertos y flexibles, que se integren entre sí visualmente y a su vez, se conserve la privacidad en los espacios íntimos.
项目完工照片 | Finished Photos
设计师:AAE / Arquitectura
分类:Casas
语言:西班牙语
阅读原文
客服
消息
收藏
下载
最近






















